渋谷フランセ奥野ビル(物件No:71585036)
渋谷フランセ奥野ビルは、渋谷区渋谷にある貸事務所物件です。最寄駅は各線渋谷駅です。1995年竣工で基準階が34.88坪の賃貸オフィスビルです。床はOAフロアで、天井の高さは2400mm。トイレは男女別で、空調は個別空調です。エレベーターは2基あります。渋谷駅の近くで数多くの店舗が立ち並び、交通アクセスもよく利便性の高い渋谷区渋谷の貸事務所です。
-
物件情報
-
設備情報
- トイレ
- 男女別
- 床
- フリーアクセス
- 空調
- 個別空調
- セキュリティ
- 無
- 駐車場
- 無
- 会議室
- -
- エレベーター
- 2基
- 天井高
- 2400mm
-
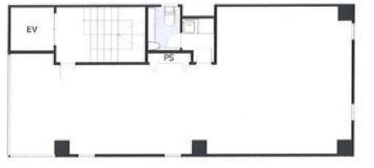
間取り図
-
近隣相場情報
渋谷2丁目(20~30坪)の相場
28550 円 (坪)
※ビルサク調べ
周辺施設情報
| コンビニ |
セブンイレブン/渋谷2丁目中央/650m(徒歩8分) ファミリーマート/渋谷一丁目店/300m(徒歩4分) |
|---|---|
| 郵便局/銀行 |
みずほ銀行/ATM 半蔵門線渋谷駅出張所/[営業時間] [ATM]平日 5:00~24:00 土曜日 5:00~22:00 日曜日 8:00~21:00 祝日・振替休日 曜日に準ずる 備考 *月曜日の5:00~7:00はご利用いただけません。*通帳はご利用いただけません/250m(徒歩3分) ゆうちょ/ATM 本店 ファミリーマート渋谷二丁目店内出張所/[営業時間] [ATM]平日 0:05~23:55 土曜日 0:05~23:55 日曜日・休日 0:05~23:55 [駐車場]なし [取扱]ATM/カードATM [備考]海外発行カードによる現金引き出しサービスにおいて、16言語でご利用いただけます/550m(徒歩8分) |
| 飲食店 |
ピッコロ ジオ/11時00分~21時00分/150m(徒歩3分) シズル・ガズル・カフェ・アンド・グリル/11時00分~21時00分/220m(徒歩4分) |
| カフェ |
ゴンチャ/渋谷スクランブルスクエア店/[営業時間]10:00~21:00 [備考]デリバリー対応店/150m(徒歩2分) ベローチェ/渋谷二丁目店/[営業時間]7:00~22:00 ※営業時間の変更情報あり。詳細についてはHPを参照 [備考]全席禁煙 喫煙ブースあり/Wi-Fiあり/【分煙区画について】喫煙ブースでの飲食は、ご遠慮いただいております/400m(徒歩6分) |
| コインパーキング |
公社駐車場/渋谷東 [料金] 20分300円(0:00~24:00) [最大料金] 入庫後12時間最大2,600円 ※最大料金の繰り返しあり 入庫から30分未満は駐車料金無料 [台数]15台 東急ライファ/渋谷ストリーム駐車場 [料金] 平日 30分/300円 土日祝 30分/400円 [最大料金] 当日1日最大 平日のみ 2,400円(1回限り)※営業時間外は通常料金が発生します [台数]254台 |
周辺地図
渋谷フランセ奥野ビルは、渋谷区渋谷にある貸事務所物件です。最寄駅は各線渋谷駅です。1995年竣工で基準階が34.88坪の賃貸オフィスビルです。床はOAフロアで、天井の高さは2400mm。トイレは男女別で、空調は個別空調です。エレベーターは2基あります。渋谷駅の近くで数多くの店舗が立ち並び、交通アクセスもよく利便性の高い渋谷区渋谷の貸事務所です。
全フロア情報
更新日:2026年1月20日
| 階 | 面積 | 賃料 | 共益費 | 敷金 | 入居日 | お問合せ | お気に入り | |
|---|---|---|---|---|---|---|---|---|
| 1F |
20.96 坪 69.29 ㎡ |
※現在空室情報はございません |
※現在空室情報は 確認する |
|||||
| 7F |
34.88 坪 115.31 ㎡ |
※現在空室情報はございません |
※現在空室情報は 確認する |
|||||
| 8F |
34.88 坪 115.31 ㎡ |
※現在空室情報はございません |
※現在空室情報は 確認する |
|||||
| 10F |
34.88 坪 115.31 ㎡ |
※現在空室情報はございません |
※現在空室情報は 確認する |
|||||
|
10F
(1区画) |
20.96 坪 69.29 ㎡ |
492,560 円 23,500 円(坪) |
73,360 円 3,500 円(坪) |
4,925,600 円 10 ヶ月 |
2026/02 |
|
|
|
お問い合わせ
似た条件の物件はこちら
-
ビラ・ビアンカ
東京都渋谷区神宮前2-33-12
坪数:20.39 坪
坪単価:16,184 円(坪)
-
渋谷3丁目ビル
東京都渋谷区渋谷3-18-4
坪数:17.43 坪
坪単価:26,000 円(坪)
-
第一暁ビルディング
東京都渋谷区道玄坂1-19-9
坪数:24.14 坪
坪単価:20,713 円(坪)
-
三貴ビル
東京都渋谷区渋谷2-12-12
坪数:15.7 坪
坪単価:22,000 円(坪)
-
倉島渋谷ビル
東京都渋谷区渋谷2-3-8
坪数:24.63 坪
坪単価:18,000 円(坪)
-
若草ビルB館
東京都渋谷区渋谷1-1-16
坪数:20.35 坪
坪単価:18,000 円(坪)
-
アクシーズ7号館ビル
東京都渋谷区渋谷3-17-4
坪数:18 坪
坪単価:20,000 円(坪)
-
越一ビル
東京都渋谷区神宮前6-19-16
坪数:19 坪
坪単価:22,000 円(坪)
-
若葉ビル
東京都渋谷区道玄坂1-22-10
坪数:16.1 坪
坪単価:15,300 円(坪)
-
ナルセビルディング
東京都渋谷区渋谷3-18-7
坪数:18.5 坪
坪単価:27,500 円(坪)