ロイクラトン虎ノ門(物件No:71584155)
ロイクラトン虎ノ門は、港区虎ノ門にある貸事務所物件です。最寄り駅は、東京メトロ銀座線、JR線の新橋駅、東京メトロ日比谷線の神谷町駅、東京メトロ銀座線の虎ノ門駅、都営三田線の内幸町駅、東京メトロ南北線の六本木一丁目駅、都営三田線の御成門駅、東京メトロ日比谷線の銀座駅、都営大江戸線の赤羽橋駅、都営大江戸線の大門駅、東京メトロ日比谷線、東京メトロ千代田線、東京メトロ丸ノ内線の霞ヶ関駅です。1989年竣工で、基準階が33.7坪の賃貸オフィスビルです。床はOAフロアとなっております。空調は個別空調で、トイレは男女別です。機械警備で、エレベーターは1基あります。複数路線利用可能な、アクセスの良い港区虎ノ門の貸事務所です。
-
物件情報
-
設備情報
- トイレ
- 室内男女別
- 床
- フリーアクセス
- 空調
- 個別空調
- セキュリティ
- 有
- 駐車場
- -
- 会議室
- -
- エレベーター
- 1基
- 天井高
- 2470mm
-
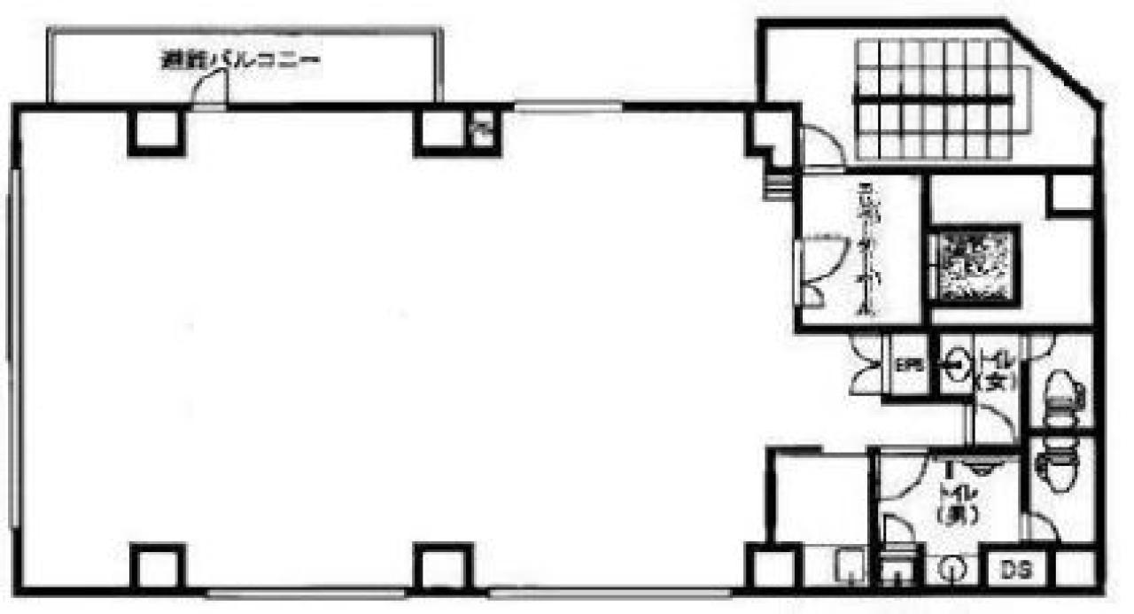
間取り図
-
近隣相場情報
虎ノ門4丁目(30~40坪)の相場
調査中
周辺施設情報
| コンビニ |
セブンイレブン/神谷町駅東/280m(徒歩4分) ローソン/ナチュラル 城山トラストタワー/230m(徒歩3分) |
|---|---|
| 郵便局/銀行 |
セブン銀行/虎ノ門4丁目店/[営業時間]24時間営業 [備考]2 台/130m(徒歩2分) イーネット/ファミリーマート神谷町駅前/[営業時間]0:00~24:00/170m(徒歩2分) |
| 飲食店 |
炭火焼干物食堂 越後屋 玄白 総本山/11時00分~14時30分、17時00分~22時00分/240m(徒歩3分) いきなり!ステーキ 神谷町店/11時00分~23時00分/25m(徒歩1分) |
| カフェ |
デリフランス/神谷町/[営業時間]平日7:00-21:00 土7:30-18:00 日祝 休/130m(徒歩2分) スターバックス/愛宕グリーンヒルズ店/[営業時間]月~金:7:00~21:00/土:8:00~19:00/日祝:9:00~19:00 [休業日]不定休 [備考]無線LAN:STARBUCKS/docomo/Softbank/au/Wi2 300/500m(徒歩6分) |
| コインパーキング |
タイムズ駐車場/ヒューリック神谷町ビル [料金] [料金] 通常料金 / 07:00-22:00 30分 400円 22:00-07:00 30分 100円 [最大料金] [全日]07:00-22:00 最大料金2800円 22:00-07:00 最大料金1000円 [台数]29 PEN/ステュディオ虎ノ門来客専用駐車場 [料金] 全日8:00~22:00 30分 400円 全日22:00~8:00 60分 200円 [台数]3台 |
周辺地図
ロイクラトン虎ノ門は、港区虎ノ門にある貸事務所物件です。最寄り駅は、東京メトロ銀座線、JR線の新橋駅、東京メトロ日比谷線の神谷町駅、東京メトロ銀座線の虎ノ門駅、都営三田線の内幸町駅、東京メトロ南北線の六本木一丁目駅、都営三田線の御成門駅、東京メトロ日比谷線の銀座駅、都営大江戸線の赤羽橋駅、都営大江戸線の大門駅、東京メトロ日比谷線、東京メトロ千代田線、東京メトロ丸ノ内線の霞ヶ関駅です。1989年竣工で、基準階が33.7坪の賃貸オフィスビルです。床はOAフロアとなっております。空調は個別空調で、トイレは男女別です。機械警備で、エレベーターは1基あります。複数路線利用可能な、アクセスの良い港区虎ノ門の貸事務所です。
全フロア情報
更新日:2024年5月13日
| 階 | 面積 | 賃料 | 共益費 | 敷金 | 入居日 | お問合せ | お気に入り | |
|---|---|---|---|---|---|---|---|---|
| 2F |
33.70 坪 111.40 ㎡ |
※現在空室情報はございません |
※現在空室情報は 確認する |
|||||
| 3F |
33.70 坪 111.40 ㎡ |
※現在空室情報はございません |
※現在空室情報は 確認する |
|||||
| 4F |
33.70 坪 111.40 ㎡ |
※現在空室情報はございません |
※現在空室情報は 確認する |
|||||
| 6F |
32.17 坪 106.35 ㎡ |
※現在空室情報はございません |
※現在空室情報は 確認する |
|||||
| 7-8F |
40.96 坪 135.41 ㎡ |
※現在空室情報はございません |
※現在空室情報は 確認する |
|||||
お問い合わせ
似た条件の物件はこちら
-
代市ビル
東京都港区新橋5-8-3
坪数:38.61 坪
坪単価:15,000 円(坪)
-
麻布台ヒルズ ガーデンプラザB
東京都港区虎ノ門5-9-1
坪数:27.2 坪
坪単価:50,000 円(坪)
-
丸万1号館
東京都港区西新橋1-11-1
坪数:24.44 坪
坪単価:15,000 円(坪)
-
新橋安達ビル
東京都港区新橋5-28-7
坪数:29.34 坪
坪単価:14,500 円(坪)
-
石井ビル
東京都港区新橋3-1-10
坪数:33.46 坪
坪単価:16,000 円(坪)
-
近鉄銀座中央通りビルⅢ
東京都港区新橋1-7-10
坪数:35.1 坪
坪単価:26,001 円(坪)
-
アヴァンセ虎ノ門ビル
東京都港区西新橋2-13-15
坪数:33.22 坪
坪単価:34,618 円(坪)
-
ル・グラシエルBLDG.5
東京都港区新橋5-20-1
坪数:27 坪
坪単価:10,500 円(坪)
-
汐留AZビル
東京都港区東新橋2-6-6
坪数:26.54 坪
坪単価:15,000 円(坪)
-
新橋五光ビル
東京都港区新橋5-27-3
坪数:30.86 坪
坪単価:13,000 円(坪)