御成門Sビル(物件No:71581134)
御成門Sビルは港区芝公園にある地下1階、地上5階建ての賃貸事務所です。最寄駅はJR線の浜松町駅から徒歩10分、東京メトロ日比谷線の神谷町駅から徒歩10分、都営三田線の御成門駅から徒歩2分、都営大江戸線の大門駅から徒歩6分です。1970年10月竣工の基準階面積が22.58坪の鉄筋コンクリート造です。設備としては、セキュリティは機械警備です。トイレは室外男女別です。空調は個別空調です。床仕様はフリーアクセスです。天高は2500mmです。複数路線利用可能なアクセスの良い港区芝公園の賃貸オフィスです。
-
物件情報
-
設備情報
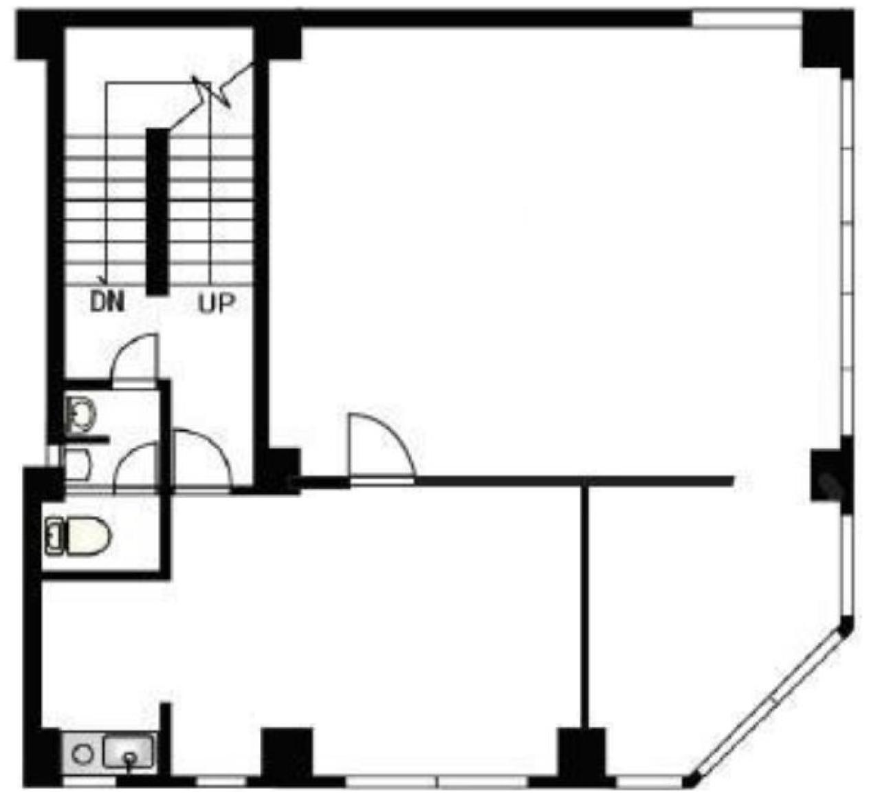
- トイレ
- 室外男女別
- 床
- フリーアクセス
- 空調
- 個別空調
- セキュリティ
- 有
- 駐車場
- -
- 会議室
- -
- エレベーター
- 0基
- 天井高
- 2500mm
-
間取り図
-
近隣相場情報
芝公園1丁目(20~30坪)の相場
17121 円 (坪)
※ビルサク調べ
周辺施設情報
| コンビニ |
ファミリーマート/芝公園一丁目店/110m(徒歩1分) セブンイレブン/芝公園1丁目/240m(徒歩3分) |
|---|---|
| 郵便局/銀行 |
イーネット/ファミリーマートミヤモトドラッグ御成門/[営業時間]0:00~24:00/170m(徒歩2分) ローソン銀行/NL 芝大門一丁目共同出張所/[営業時間]7:00~23:00 [取扱]海外発行カード対応、視覚障害者対応 [備考]ご利用可能な金融機関 当店のATM管理はローソン銀行です/400m(徒歩5分) |
| 飲食店 |
華珍楼/11時00分~15時00分、17時00分~23時00分/ Bangkok Smile/平日 11:00~23:00(L.O.22:00)、土祝 11:00~21:00(L.O.20:30)/500m(徒歩7分) |
| カフェ |
3206 Toranomon/8時00分~20時00分/650m(徒歩9分) グリーングラス/7時30分~18時00分/450m(徒歩6分) |
| コインパーキング |
PEN/港区芝公園1丁目パーキング [料金] 月~土(祝日除く)【通常】8:00~22:00 20分 300円 22:00~8:00 60分 100円 日・祝【通常】8:00~22:00 20分 300円 22:00~8:00 60分 100円 [最大料金] 月~土(祝日除く)【最大】8:00~22:00 最大3800円(繰り返し可) 日・祝【最大】8:00~22:00 最大1500円(繰り返し可) [台数]8台 三井のリパーク/芝NBFタワー駐車場 [料金] 全日 00:00~24:00 30分/400円 [最大料金] 【全日】最大料金入庫後24時間以内3500円 [台数]30 |
周辺地図
御成門Sビルは港区芝公園にある地下1階、地上5階建ての賃貸事務所です。最寄駅はJR線の浜松町駅から徒歩10分、東京メトロ日比谷線の神谷町駅から徒歩10分、都営三田線の御成門駅から徒歩2分、都営大江戸線の大門駅から徒歩6分です。1970年10月竣工の基準階面積が22.58坪の鉄筋コンクリート造です。設備としては、セキュリティは機械警備です。トイレは室外男女別です。空調は個別空調です。床仕様はフリーアクセスです。天高は2500mmです。複数路線利用可能なアクセスの良い港区芝公園の賃貸オフィスです。
全フロア情報
更新日:2023年3月2日
| 階 | 面積 | 賃料 | 共益費 | 敷金 | 入居日 | お問合せ | お気に入り | |
|---|---|---|---|---|---|---|---|---|
| 2F |
22.58 坪 74.64 ㎡ |
※現在空室情報はございません |
※現在空室情報は 確認する |
|||||
|
4F
(401区画) |
3.63 坪 12.00 ㎡ |
※現在空室情報はございません |
※現在空室情報は 確認する |
|||||
|
4F
(402区画) |
3.48 坪 11.50 ㎡ |
※現在空室情報はございません |
※現在空室情報は 確認する |
|||||
|
4F
(403区画) |
2.72 坪 8.99 ㎡ |
※現在空室情報はございません |
※現在空室情報は 確認する |
|||||
|
4F
(404区画) |
2.06 坪 6.81 ㎡ |
※現在空室情報はございません |
※現在空室情報は 確認する |
|||||
|
4F
(405区画) |
2.12 坪 7.01 ㎡ |
※現在空室情報はございません |
※現在空室情報は 確認する |
|||||
お問い合わせ
似た条件の物件はこちら
-
芝松下ビル
東京都港区芝3-3-12
坪数:26.42 坪
坪単価:11,000 円(坪)
-
マリンクス・タワー
東京都港区海岸1-9-11
坪数:17.73 坪
坪単価:16,000 円(坪)
-
芝パークビル
東京都港区浜松町2-1-15
坪数:26 坪
坪単価:17,000 円(坪)
-
武藤ビル
東京都港区芝浦3-11-9
坪数:21.35 坪
坪単価:12,000 円(坪)
-
芝サニーハイツ
東京都港区芝5-27-4
坪数:17.28 坪
坪単価:11,574 円(坪)
-
山口ビル
東京都港区芝公園1-7-7
坪数:22 坪
坪単価:11,364 円(坪)
-
EARTH SHIBA BLD
東京都港区芝2-10-6
坪数:22.47 坪
坪単価:29,000 円(坪)
-
奥山ビル
東京都港区芝5-20-10
坪数:23.74 坪
坪単価:12,637 円(坪)
-
TTD PLAZA
東京都港区三田1-2-18
坪数:19.97 坪
坪単価:16,024 円(坪)
-
日本女子会館ビル
東京都港区芝公園2-6-8
坪数:21.2 坪
坪単価:12,500 円(坪)