中野ビル(物件No:71580118)
中野ビルは豊島区巣鴨にある地下1階、地上8階建ての賃貸事務所です。最寄駅はJR線の巣鴨駅から徒歩2分、JR線の駒込駅から徒歩10分、都営三田線の千石駅から徒歩8分です。1994年3月竣工の基準階面積が77.32坪の鉄骨鉄筋コンクリート造です。設備としては、エレベーターが1基あり、駐車場もあります。セキュリティは機械警備です。トイレは男女別です。空調は個別空調です。耐震設計となっている、複数駅利用可能なアクセスの良い豊島区巣鴨の賃貸オフィスです。
-
物件情報
-
設備情報
- トイレ
- 室内男女別
- 床
- -
- 空調
- 個別空調
- セキュリティ
- 有
- 駐車場
- 有
- 会議室
- -
- エレベーター
- 1基
- 天井高
- -
-
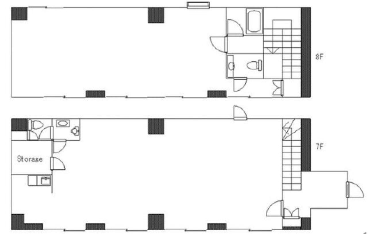
間取り図
-
近隣相場情報
巣鴨1丁目(40~50坪)の相場
9043 円 (坪)
※ビルサク調べ
周辺施設情報
| コンビニ |
ファミリーマート/巣鴨三丁目店/400m(徒歩6分) セブンイレブン/豊島巣鴨1丁目/150m(徒歩2分) |
|---|---|
| 郵便局/銀行 |
ビューアルッテ/JR巣鴨駅南口/[営業時間]全日/4:30~25:00※毎月第二土曜日23:00~翌日8:00はご利用になれません。※駅や店舗の営業時間により、ATM営業時間が変更となる場合があります [取扱]お引出し・残高照会のみ/200m(徒歩3分) セブン銀行/都営地下鉄 三田線 巣鴨駅/[営業時間]5:00~24:00 [備考]1 台/300m(徒歩4分) |
| 飲食店 |
ベックスコーヒーショップ巣鴨店/6時45分~20時00分/190m(徒歩2分) KaKaチキン巣鴨店/11時00分~23時00分/300m(徒歩4分) |
| カフェ |
コメダ珈琲/巣鴨店/[営業時間]7:00~23:00 [休業日]なし [備考]電源/Wi-Fi/デリバリー(UberEats)/300m(徒歩5分) デリフランス/巣鴨/[営業時間]8:00~22:00 土日祝 8:00~21:00 [備考]Web予約受け取り/カフェスペース/フリー Wi-Fi/禁煙/分煙/客席充電コンセント/客席USBポート/200m(徒歩3分) |
| コインパーキング |
エコロパーク/巣鴨第2 [料金] 全日 昼 8時~20時 20分200円 全日 夜 20時~8時 60分100円 [最大料金] 全日 24時間 最大1400円 [台数]5 タイムズ/巣鴨第19 [料金] [全日]通常料金 0:00~0:00 15分 220円 [最大料金] [全日]最大料金(繰り返し適用)8:00~19:00 最大料金1540円 [全日]19:00~8:00 最大料金440円 [台数]6台 |
周辺地図
中野ビルは豊島区巣鴨にある地下1階、地上8階建ての賃貸事務所です。最寄駅はJR線の巣鴨駅から徒歩2分、JR線の駒込駅から徒歩10分、都営三田線の千石駅から徒歩8分です。1994年3月竣工の基準階面積が77.32坪の鉄骨鉄筋コンクリート造です。設備としては、エレベーターが1基あり、駐車場もあります。セキュリティは機械警備です。トイレは男女別です。空調は個別空調です。耐震設計となっている、複数駅利用可能なアクセスの良い豊島区巣鴨の賃貸オフィスです。
全フロア情報
更新日:2025年11月4日
| 階 | 面積 | 賃料 | 共益費 | 敷金 | 入居日 | お問合せ | お気に入り | |
|---|---|---|---|---|---|---|---|---|
| B1F |
32.85 坪 108.59 ㎡ |
※現在空室情報はございません |
※現在空室情報は 確認する |
|||||
| 7-8F |
41.59 坪 137.48 ㎡ |
※現在空室情報はございません |
※現在空室情報は 確認する |
|||||
お問い合わせ
似た条件の物件はこちら
-
はい原ビル
東京都豊島区巣鴨1-19-12
坪数:32 坪
坪単価:21,875 円(坪)
-
岩田ビル
東京都豊島区北大塚3-10-4
坪数:37.9 坪
坪単価:7,124 円(坪)
-
大塚HTビル
東京都豊島区南大塚3-43-1
坪数:33.92 坪
坪単価:14,000 円(坪)
-
三恵大塚ビル
東京都豊島区北大塚3-1-2
坪数:37.82 坪
坪単価:7,932 円(坪)
-
リードシー大塚ビル
東京都豊島区南大塚2-38-1
坪数:46.09 坪
坪単価:18,000 円(坪)
-
駒込2丁目貸店舗・事務所
東京都豊島区駒込2-6-1
坪数:36.15 坪
坪単価:6,237 円(坪)
-
ORPLAC PLACE
東京都豊島区駒込3-3-19
坪数:49.74 坪
坪単価:17,000 円(坪)
-
ランドマークビルディング
東京都豊島区巣鴨3-20-3
坪数:37.09 坪
坪単価:11,765 円(坪)
-
ラウンドブリッジ
東京都豊島区駒込4-2-35
坪数:40 坪
坪単価:9,000 円(坪)
-
巣鴨第一ビル
東京都豊島区巣鴨2-11-5
坪数:34.97 坪
坪単価:12,868 円(坪)