氷川パークビル(物件No:71389165)
氷川パークビルは港区赤坂にある地下1階、地上4階建ての賃貸事務所です。最寄駅は東京メトロ千代田線の赤坂駅から徒歩3分、東京メトロ南北線の溜池山王駅から徒歩8分、東京メトロ銀座線の溜池山王駅から徒歩8分です。2001年竣工の基準階面積が40.26坪の鉄筋コンクリート造です。設備としては、エレベーターが1基あり、駐車場もあります。セキュリティは機械警備です。トイレは男女別です。空調は個別空調です。床仕様はフリーアクセスです。天高は2650mmです。耐震設計となっている、複数駅利用可能なアクセスの良い港区赤坂の賃貸オフィスです。
-
物件情報
-
設備情報
- トイレ
- 室外男女別
- 床
- フリーアクセス
- 空調
- 個別空調
- セキュリティ
- 有
- 駐車場
- 有
- 会議室
- -
- エレベーター
- 1基
- 天井高
- 2600mm
-
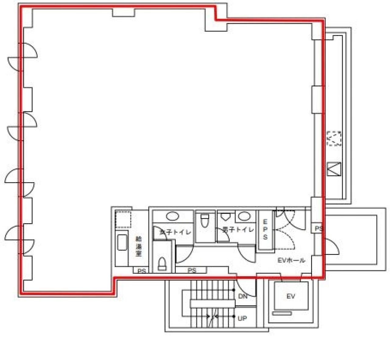
間取り図
-
近隣相場情報
赤坂6丁目(40~50坪)の相場
19395 円 (坪)
※ビルサク調べ
周辺施設情報
| コンビニ |
セブンイレブン/赤坂6丁目/400m(徒歩5分) ファミリーマート/赤坂五丁目店/350m(徒歩5分) |
|---|---|
| 郵便局/銀行 |
りそな銀行/赤坂支店/[営業時間]平日/9:00~17:00 [ATM]平日/7:00~23:00 土/7:00~21:00 日・祝/8:00~21:00/700m(徒歩8分) 三菱UFJ銀行/ATM 国際新赤坂ビル東館/[営業時間] [ATM]平日 8:00~21:00 土曜日 8:00~21:00 日・祝日 8:00~21:00/300m(徒歩3分) |
| 飲食店 |
赤坂璃宮 赤坂本店/11時30分~15時00分、17時00分~22時30分/550m(徒歩7分) 楽々/[月~金]11:30~14:00 [月~土]17:30~翌0:00(L.O.23:00)/160m(徒歩2分) |
| カフェ |
DEAN&DELUCA/CAFE 赤坂アークヒルズ/[営業時間]月-金 7:00~22:00 土日祝 8:00~21:00 [備考]Wi-Fi利用可 電源利用可 ペット同伴可(テラス席のみ)/800m(徒歩10分) プロント/espressamente illy 赤坂Bizタワー店/[営業時間]平日:カフェ 7:00~23:00 土曜:カフェ 7:00~22:30 日曜:カフェ 7:00~22:30 [休業日]無休 [備考]72席/空間分煙/550m(徒歩7分) |
| コインパーキング |
タイムズ駐車場/赤坂6丁目 [料金] [月~土]通常料金 / 00:00-00:00 15分 300円 [日・祝]通常料金 / 00:00-00:00 15分 300円 [最大料金] [月~土]08:00-19:00 最大料金3400円 19:00-08:00 最大料金600円 [日・祝]08:00-19:00 最大料金2400円 19:00-08:00 最大料金600円 [台数]14 三井のリパーク/六本木2丁目第4 [料金] 全日 08:00~00:00 25分/300円 全日 00:00~08:00 60分/100円 [最大料金] 【全日】最大料金入庫後12時間以内3000円 [台数]5 |
周辺地図
氷川パークビルは港区赤坂にある地下1階、地上4階建ての賃貸事務所です。最寄駅は東京メトロ千代田線の赤坂駅から徒歩3分、東京メトロ南北線の溜池山王駅から徒歩8分、東京メトロ銀座線の溜池山王駅から徒歩8分です。2001年竣工の基準階面積が40.26坪の鉄筋コンクリート造です。設備としては、エレベーターが1基あり、駐車場もあります。セキュリティは機械警備です。トイレは男女別です。空調は個別空調です。床仕様はフリーアクセスです。天高は2650mmです。耐震設計となっている、複数駅利用可能なアクセスの良い港区赤坂の賃貸オフィスです。
全フロア情報
更新日:2019年3月19日
| 階 | 面積 | 賃料 | 共益費 | 敷金 | 入居日 | お問合せ | お気に入り | |
|---|---|---|---|---|---|---|---|---|
| 3F |
44.24 坪 146.25 ㎡ |
※現在空室情報はございません |
※現在空室情報は 確認する |
|||||
お問い合わせ
似た条件の物件はこちら
-
第4文成ビル
東京都港区赤坂7-10-9
坪数:38 坪
坪単価:14,000 円(坪)
-
リバービル
東京都港区赤坂6-3-12
坪数:45.08 坪
坪単価:15,084 円(坪)
-
赤坂伊藤ビル
東京都港区赤坂7-10-9
坪数:43.7 坪
坪単価:15,000 円(坪)
-
T-FRONTビル
東京都港区赤坂1-3-3
坪数:53.32 坪
坪単価:18,755 円(坪)
-
赤坂見附KITAYAMAビル
東京都港区赤坂3-9-18
坪数:45.73 坪
坪単価:22,000 円(坪)
-
BIC赤坂ビル
東京都港区赤坂3-9-18
坪数:40.96 坪
坪単価:23,022 円(坪)
-
紀陽ビル
東京都港区赤坂3-9-1
坪数:47.92 坪
坪単価:16,000 円(坪)
-
アンフィニ赤坂ビル
東京都港区赤坂8-7-15
坪数:41.97 坪
坪単価:21,000 円(坪)
-
陶香堂ビル
東京都港区赤坂3-21-12
坪数:36 坪
坪単価:18,000 円(坪)
-
赤坂FS
東京都港区赤坂7-10-7
坪数:35.12 坪
坪単価:17,000 円(坪)