いろいろ聞いてみる

平沼の賃貸オフィス

三石ヨコハマビル(物件No:71387876)

  • 三石ヨコハマビル
  • 三石ヨコハマビル
  • 三石ヨコハマビル
  • 三石ヨコハマビル
面積 賃料 共益費 敷金 入居日 お問合せ お気に入り
8F

(802区画)

52.57 坪

173.78 ㎡

※現在空室情報はございません

※現在空室情報は
ございません

最新情報を
確認する
  • 物件情報

    住所
    神奈川県横浜市西区平沼1-39-3
    最寄り駅
    JR横須賀線 横浜駅 徒歩8分
    横浜市ブルーライン 横浜駅 徒歩8分
    東急東横線 横浜駅 徒歩8分
    竣工
    1984年
    耐震
    新耐震基準
    規模・構造
    1F - 9F  鉄骨造
  • 設備情報

    トイレ
    -
    フリーアクセス
    空調
    個別空調
    セキュリティ
    駐車場
    会議室
    -
    エレベーター
    2基
    天井高
    2470mm
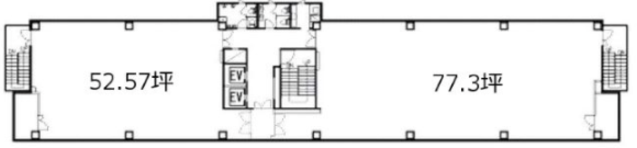
  • 間取り図

    間取り図

  • 近隣相場情報

    平沼1丁目(50~100坪)の相場

    調査中

周辺地図

全フロア情報

更新日:2024年10月9日

面積 賃料 共益費 敷金 入居日 お問合せ お気に入り
3F

80.7 坪

266.78 ㎡

※現在空室情報はございません

※現在空室情報は
ございません

最新情報を
確認する
3F

(302区画)

56 坪

185.12 ㎡

※現在空室情報はございません

※現在空室情報は
ございません

最新情報を
確認する
4F

(401区画)

77.3 坪

255.54 ㎡

※現在空室情報はございません

※現在空室情報は
ございません

最新情報を
確認する
4F

(402区画)

52.57 坪

173.78 ㎡

※現在空室情報はございません

※現在空室情報は
ございません

最新情報を
確認する
5F

(501区画)

77.3 坪

255.54 ㎡

※現在空室情報はございません

※現在空室情報は
ございません

最新情報を
確認する
5F

(502区画)

52.57 坪

173.78 ㎡

※現在空室情報はございません

※現在空室情報は
ございません

最新情報を
確認する
6F

(601区画)

77.3 坪

255.54 ㎡

※現在空室情報はございません

※現在空室情報は
ございません

最新情報を
確認する
6F

(602区画)

52.57 坪

173.78 ㎡

※現在空室情報はございません

※現在空室情報は
ございません

最新情報を
確認する
7F

(701区画)

77.3 坪

255.54 ㎡

※現在空室情報はございません

※現在空室情報は
ございません

最新情報を
確認する
7F

(702区画)

52.57 坪

173.78 ㎡

※現在空室情報はございません

※現在空室情報は
ございません

最新情報を
確認する
8F

(801区画)

77.3 坪

255.54 ㎡

※現在空室情報はございません

※現在空室情報は
ございません

最新情報を
確認する
8F

(802区画)

52.57 坪

173.78 ㎡

※現在空室情報はございません

※現在空室情報は
ございません

最新情報を
確認する

お問い合わせ

必須
必須
必須
必須
必須

お問い合わせ

物件に関してのお問い合わせ

「失敗しないオフィス移転サポート」物件探しから移転までスムーズで担当者様がとにかく楽になるサービスです。

050-7587-0049平日 9:00~18:00

メールでお問い合わせ

フリーワード検索