梅山ビル(物件No:71384076)
梅山ビルは、渋谷区道玄坂にある貸事務所物件です。最寄駅は各線渋谷駅です。1973年竣工で基準階が30坪の賃貸オフィスビルです。床はOAフロア、タイルカーペットとなっています。トイレは室外で、空調は個別空調です。エレベーターは1基あります。渋谷駅の近くで数多くの店舗が立ち並び、交通アクセスもよく利便性の高い渋谷区道玄坂の貸事務所です。
-
物件情報
-
設備情報
- トイレ
- 室内男女共用
- 床
- タイルカーペット
- 空調
- 個別空調
- セキュリティ
- 無
- 駐車場
- 無
- 会議室
- -
- エレベーター
- 1基
- 天井高
- -
-
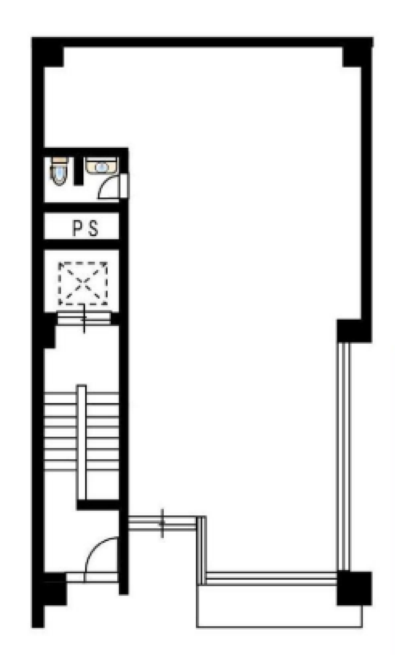
間取り図
-
近隣相場情報
道玄坂1丁目(20~30坪)の相場
35830 円 (坪)
※ビルサク調べ
周辺施設情報
| コンビニ |
ファミリーマート/渋谷道玄坂店/450m(徒歩6分) セブンイレブン/京王渋谷駅改札内/150m(徒歩2分) |
|---|---|
| 郵便局/銀行 |
スルガ銀行/渋谷支店/[営業時間]平日 09:00-15:00 土曜日 ー 日曜・祝日 ー [ATM]平日 9:00-18:00 土曜日 ー 日曜・祝日 ー/250m(徒歩3分) きらぼし銀行/ATM 渋谷駅出張所/[営業時間] [ATM]平日 7:00~23:00 土曜日 7:00~21:00 日・祝日 7:00~21:00/250m(徒歩3分) |
| 飲食店 |
たんと渋谷1号店/11時30分~23時00分/ 和風ダイニング きざみ 渋谷南口店/17時00分~23時00分/77m(徒歩1分) |
| カフェ |
喫茶館キーフェルグローバルクラブ 渋谷店/11時00分~23時00分/350m(徒歩4分) 珈琲専門店シャルマン 道玄坂店/9時00分~19時00分/400m(徒歩6分) |
| コインパーキング |
エコロパーク/渋谷道玄坂第3 [料金] 全日 終日 10分500円 [最大料金] 全日 3時間 最大3200円 全日 夜 17時~8時 最大1800円 [台数]3 PARKS PARK/渋谷区桜丘町第1 [料金] 【昼間】8:00~23:00 400円 / 15分 【夜間】23:00~8:00 100円 / 30分 [最大料金] 全日 8:00~23:00 3時間まで一律 2400円(繰り返し可) [台数]3台 |
周辺地図
梅山ビルは、渋谷区道玄坂にある貸事務所物件です。最寄駅は各線渋谷駅です。1973年竣工で基準階が30坪の賃貸オフィスビルです。床はOAフロア、タイルカーペットとなっています。トイレは室外で、空調は個別空調です。エレベーターは1基あります。渋谷駅の近くで数多くの店舗が立ち並び、交通アクセスもよく利便性の高い渋谷区道玄坂の貸事務所です。
全フロア情報
更新日:2025年12月9日
| 階 | 面積 | 賃料 | 共益費 | 敷金 | 入居日 | お問合せ | お気に入り | |
|---|---|---|---|---|---|---|---|---|
| 1F |
23.91 坪 79.04 ㎡ |
※現在空室情報はございません |
※現在空室情報は 確認する |
|||||
| 4F |
30 坪 99.17 ㎡ |
※現在空室情報はございません |
※現在空室情報は 確認する |
|||||
| 5F |
30 坪 99.17 ㎡ |
※現在空室情報はございません |
※現在空室情報は 確認する |
|||||
| 6F |
18 坪 59.5 ㎡ |
※現在空室情報はございません |
※現在空室情報は 確認する |
|||||
お問い合わせ
似た条件の物件はこちら
-
ビラ・ビアンカ
東京都渋谷区神宮前2-33-12
坪数:20.39 坪
坪単価:16,184 円(坪)
-
第一暁ビルディング
東京都渋谷区道玄坂1-19-9
坪数:24.14 坪
坪単価:20,713 円(坪)
-
三貴ビル
東京都渋谷区渋谷2-12-12
坪数:18.67 坪
坪単価:22,035 円(坪)
-
倉島渋谷ビル
東京都渋谷区渋谷2-3-8
坪数:24.63 坪
坪単価:18,000 円(坪)
-
若草ビルB館
東京都渋谷区渋谷1-1-16
坪数:20.35 坪
坪単価:18,000 円(坪)
-
アクシーズ7号館ビル
東京都渋谷区渋谷3-17-4
坪数:18 坪
坪単価:20,000 円(坪)
-
越一ビル
東京都渋谷区神宮前6-19-16
坪数:19 坪
坪単価:22,000 円(坪)
-
ナルセビルディング
東京都渋谷区渋谷3-18-7
坪数:18.5 坪
坪単価:27,500 円(坪)
-
宮益坂ビルディング
東京都渋谷区渋谷2-19-15
坪数:18.11 坪
坪単価:31,489 円(坪)
-
郁文堂青山通りビル
東京都渋谷区渋谷2-1-11
坪数:22.82 坪
坪単価:21,000 円(坪)