ジブラルタ生命池袋ビル(物件No:71382168)
ジブラルタ生命池袋ビルは、豊島区東池袋にある貸事務所物件です。最寄り駅は、JR線、東武東上線、東京メトロ副都心線、東京メトロ丸ノ内線、東京メトロ有楽町線の池袋駅、東京メトロ有楽町線の東池袋駅、都電荒川線の向原駅、東池袋四丁目駅です。1986年竣工の賃貸オフィスビルです。天高は2800mmで、床はOAフロアとなっております。空調は個別空調で、トイレは室外にあり、男女別です。機械警備で、エレベーターは2基あります。駐車場があり、複数路線利用可能な、アクセスの良い豊島区東池袋の貸事務所です。
| 階 | 面積 | 賃料 | 共益費 | 敷金 | 入居日 | お問合せ | お気に入り | |
|---|---|---|---|---|---|---|---|---|
|
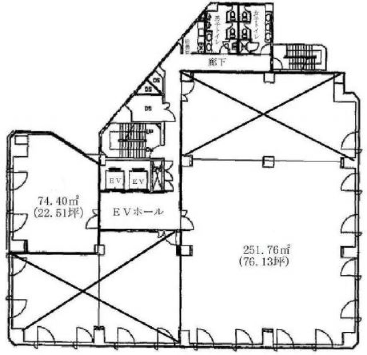
5F
(503区画) |
22.51 坪 74.41 ㎡ |
※現在空室情報はございません |
※現在空室情報は 確認する |
|||||
-
物件情報
-
設備情報
- トイレ
- 室外男女別
- 床
- フリーアクセス
- 空調
- 個別空調
- セキュリティ
- 有
- 駐車場
- 有
- 会議室
- -
- エレベーター
- 2基
- 天井高
- 2800mm
-
間取り図
-
近隣相場情報
東池袋4丁目(20~30坪)の相場
16368 円 (坪)
※ビルサク調べ
周辺施設情報
| コンビニ |
ファミリーマート/としまエコミューゼタウン店/400m(徒歩5分) セブンイレブン/豊島東池袋5丁目/550m(徒歩7分) |
|---|---|
| 郵便局/銀行 |
ゆうちょ/ATM 本店 ファミリーマート東池袋四丁目店内出張所/[営業時間] [ATM]平日 0:05~23:55 土曜日 0:05~23:55 日曜日・休日 0:05~23:55 [駐車場]なし [取扱]ATM/カードATM [備考]海外発行カードによる現金引き出しサービスにおいて、16言語でご利用いただけます/350m(徒歩4分) 三井住友銀行/ATM 東京メトロ東池袋駅出張所/[営業時間] [ATM]平日 7:00~24:00 土曜 7:00~24:00 日曜 7:00~21:00/250m(徒歩3分) |
| 飲食店 |
ジョナサン 池袋サンシャイン前店/9時30分~23時00分/120m(徒歩2分) 一久庵/11時00分~21時00分/250m(徒歩3分) |
| カフェ |
伊豆高原ケニーズハウスカフェ サンシャイン池袋店/10時00分~20時00分/350m(徒歩5分) ラシーヌ ファーム トゥー パーク/8時00分~22時00分/400m(徒歩6分) |
| コインパーキング |
NTTル・パルク/東池袋第2バイク [料金] オールタイム 60分/100円 [最大料金] 駐車後24時間 最大料金 700円(繰返しOK) [台数]:12台 タイムズ/東池袋第19 [料金] [全日]0:00~0:00 20分 330円 [最大料金] [全日]最大料金(繰り返し適用)8:00~19:00 最大料金1700円 [全日]19:00~8:00 最大料金440円 [台数]3台 |
周辺地図
ジブラルタ生命池袋ビルは、豊島区東池袋にある貸事務所物件です。最寄り駅は、JR線、東武東上線、東京メトロ副都心線、東京メトロ丸ノ内線、東京メトロ有楽町線の池袋駅、東京メトロ有楽町線の東池袋駅、都電荒川線の向原駅、東池袋四丁目駅です。1986年竣工の賃貸オフィスビルです。天高は2800mmで、床はOAフロアとなっております。空調は個別空調で、トイレは室外にあり、男女別です。機械警備で、エレベーターは2基あります。駐車場があり、複数路線利用可能な、アクセスの良い豊島区東池袋の貸事務所です。
全フロア情報
更新日:2023年8月3日
| 階 | 面積 | 賃料 | 共益費 | 敷金 | 入居日 | お問合せ | お気に入り | |
|---|---|---|---|---|---|---|---|---|
|
1F
(101区画) |
100.60 坪 332.56 ㎡ |
※現在空室情報はございません |
※現在空室情報は 確認する |
|||||
| 2F |
169.88 坪 561.59 ㎡ |
※現在空室情報はございません |
※現在空室情報は 確認する |
|||||
|
3F
(1区画) |
147.38 坪 487.21 ㎡ |
※現在空室情報はございません |
※現在空室情報は 確認する |
|||||
|
3F
(北区画) |
38.28 坪 126.55 ㎡ |
※現在空室情報はございません |
※現在空室情報は 確認する |
|||||
|
3F
(南区画) |
109.10 坪 360.66 ㎡ |
※現在空室情報はございません |
※現在空室情報は 確認する |
|||||
|
4F
(405区画) |
39.16 坪 129.45 ㎡ |
※現在空室情報はございません |
※現在空室情報は 確認する |
|||||
|
5F
(1区画) |
112.72 坪 372.63 ㎡ |
※現在空室情報はございません |
※現在空室情報は 確認する |
|||||
|
5F
(503区画) |
22.51 坪 74.41 ㎡ |
※現在空室情報はございません |
※現在空室情報は 確認する |
|||||
|
5F
(504区画) |
34.66 坪 114.58 ㎡ |
※現在空室情報はございません |
※現在空室情報は 確認する |
|||||
|
5F
(北区画) |
38.28 坪 126.55 ㎡ |
※現在空室情報はございません |
※現在空室情報は 確認する |
|||||
|
5F
(南区画) |
74.44 坪 246.08 ㎡ |
※現在空室情報はございません |
※現在空室情報は 確認する |
|||||
|
6F
(601区画) |
60.78 坪 200.93 ㎡ |
※現在空室情報はございません |
※現在空室情報は 確認する |
|||||
|
6F
(602区画) |
76.13 坪 251.67 ㎡ |
※現在空室情報はございません |
※現在空室情報は 確認する |
|||||
|
6F
(603区画) |
34.66 坪 114.58 ㎡ |
※現在空室情報はございません |
※現在空室情報は 確認する |
|||||
|
8F
(D区画) |
22.93 坪 75.80 ㎡ |
※現在空室情報はございません |
※現在空室情報は 確認する |
|||||
|
9F
(A区画) |
27.24 坪 90.05 ㎡ |
※現在空室情報はございません |
※現在空室情報は 確認する |
|||||
|
9F
(C区画) |
36.02 坪 119.07 ㎡ |
※現在空室情報はございません |
※現在空室情報は 確認する |
|||||
お問い合わせ
似た条件の物件はこちら
-
すやまビル
東京都豊島区西池袋3-30-10
坪数:20.89 坪
坪単価:13,506 円(坪)
-
明昌KSビル
東京都豊島区東池袋3-9-9
坪数:21.8 坪
坪単価:13,000 円(坪)
-
フェイマスショップビル
東京都豊島区長崎4-9-5
坪数:23.69 坪
坪単価:6,332 円(坪)
-
SF千川
東京都豊島区千川1-1-13
坪数:17 坪
坪単価:9,412 円(坪)
-
メゾンサンシャイン
東京都豊島区東池袋3-1-4
坪数:19.27 坪
坪単価:10,379 円(坪)
-
オスカービル
東京都豊島区池袋2-42-3
坪数:22.53 坪
坪単価:37,727 円(坪)
-
東池袋ビル
東京都豊島区東池袋4-3-3
坪数:19.59 坪
坪単価:15,824 円(坪)
-
カドラービル
東京都豊島区南池袋1-1-11
坪数:25.83 坪
坪単価:9,679 円(坪)
-
山の手ビル
東京都豊島区西池袋1-29-5
坪数:19.06 坪
坪単価:28,045 円(坪)
-
スタックスビル
東京都豊島区東池袋1-35-11
坪数:20.96 坪
坪単価:13,359 円(坪)