ACN京橋ビル(物件No:71188163)
ACN京橋ビルは、東京都中央区京橋2-12-9にある賃貸オフィスです。最寄駅は都営浅草線宝町駅徒歩1分、JR線東京駅徒歩9分、東京メトロ銀座線京橋駅徒歩2分、東京メトロ有楽町線銀座一丁目駅徒歩6分と、複数路線利用可能なアクセス良好な立地です。2015年竣工の鉄骨造、地上12階建てのビルで、基準階面積は34.96坪です。天井高は2700mmあり、設備としてはエレベーターが1基あります。トイレは室外、空調は個別空調、床仕様はフリーアクセスです。セキュリティも完備しており、耐震構造も備えています。
| 階 | 面積 | 賃料 | 共益費 | 敷金 | 入居日 | お問合せ | お気に入り |
|---|---|---|---|---|---|---|---|
|
2F
(A区画) |
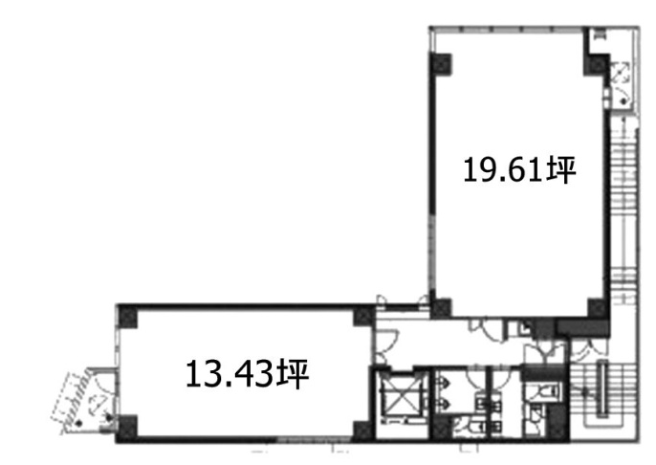
13.43 坪 44.4 ㎡ |
相談 |
込 |
8ヶ月 |
2026/06 |
|
|
| 階 | 面積 | 賃料 | 共益費 | 敷金 | 入居日 | お問合せ | お気に入り |
|---|---|---|---|---|---|---|---|
|
2F
(A区画) |
13.43 坪 44.4 ㎡ |
相談 |
込 |
8ヶ月 |
2026/06 |
|
|
-
物件情報
-
設備情報
- トイレ
- 室外男女別
- 床
- -
- 空調
- 個別空調
- セキュリティ
- 有
- 駐車場
- 無
- 会議室
- -
- エレベーター
- 1基
- 天井高
- 2700mm
-
間取り図
-
近隣相場情報
京橋2丁目(20坪以下)の相場
23183 円 (坪)
※ビルサク調べ
周辺施設情報
| コンビニ |
ファミリーマート/ホテルインターゲート東京 京橋店/43m(徒歩1分) ローソン/京橋駅前/170m(徒歩2分) |
|---|---|
| 郵便局/銀行 |
郵便局/ATM ファミリーマートホテルインターゲート東京 京橋店内出張所/[営業時間]全日/24H営業/42m(徒歩1分) 郵便局/京橋通/[駐車場]なし [取扱]郵便/貯金/保険/ATM/180m(徒歩3分) |
| 飲食店 |
BLESS COFFEE 京橋店/7時30分~22時00分/110m(徒歩1分) レストランサカキ/不定休/28m(徒歩1分) |
| カフェ |
タリーズ/東京スクエアガーデン店/[営業時間]平日:7:00~22:00( L.O. 21:30 ) 土:10:00~22:00( L.O. 21:30 ) 日祝:10:00~18:00( L.O. 17:30 )/210m(徒歩3分) ドトール/京橋中央通り店/[営業時間]平 日:06:45 - 21:00 土曜日:08:00 - 19:30 日 祝:08:00 - 19:00/230m(徒歩3分) |
| コインパーキング |
NPD/日土地京橋ビル駐車場 [料金] 最初 700円/60分 通常 350円/30分 [最大料金] 平日 1800円/1日 宿泊料金 1000円 タイムズ駐車場/相互館110タワー [料金] 通常料金 / 07:00-21:00 60分 600円 21:00-07:00 60分 600円 [最大料金] [全日]駐車後24時間 最大料金2000円 [台数]35 |
周辺地図
ACN京橋ビルは、東京都中央区京橋2-12-9にある賃貸オフィスです。最寄駅は都営浅草線宝町駅徒歩1分、JR線東京駅徒歩9分、東京メトロ銀座線京橋駅徒歩2分、東京メトロ有楽町線銀座一丁目駅徒歩6分と、複数路線利用可能なアクセス良好な立地です。2015年竣工の鉄骨造、地上12階建てのビルで、基準階面積は34.96坪です。天井高は2700mmあり、設備としてはエレベーターが1基あります。トイレは室外、空調は個別空調、床仕様はフリーアクセスです。セキュリティも完備しており、耐震構造も備えています。
全フロア情報
更新日:2026年3月3日
| 階 | 面積 | 賃料 | 共益費 | 敷金 | 入居日 | お問合せ | お気に入り | |
|---|---|---|---|---|---|---|---|---|
|
1F
(A区画) |
5.94 坪 19.64 ㎡ |
※現在空室情報はございません |
※現在空室情報は 確認する |
|||||
|
1F
(B区画) |
14.43 坪 47.7 ㎡ |
※現在空室情報はございません |
※現在空室情報は 確認する |
|||||
|
2F
(A区画) |
13.43 坪 44.4 ㎡ |
相談 |
込 |
8ヶ月 |
2026/06 |
|
|
|
|
2F
(A+B区画) |
33.04 坪 109.22 ㎡ |
※現在空室情報はございません |
※現在空室情報は 確認する |
|||||
|
2F
(B区画) |
19.61 坪 64.83 ㎡ |
※現在空室情報はございません |
※現在空室情報は 確認する |
|||||
|
3F
(B区画) |
19.61 坪 64.83 ㎡ |
※現在空室情報はございません |
※現在空室情報は 確認する |
|||||
|
3F
(C区画) |
15.35 坪 50.74 ㎡ |
※現在空室情報はございません |
※現在空室情報は 確認する |
|||||
|
4F
(B区画) |
19.61 坪 64.83 ㎡ |
※現在空室情報はございません |
※現在空室情報は 確認する |
|||||
|
4F
(C区画) |
15.35 坪 50.74 ㎡ |
※現在空室情報はございません |
※現在空室情報は 確認する |
|||||
|
5F
(B区画) |
19.61 坪 64.83 ㎡ |
※現在空室情報はございません |
※現在空室情報は 確認する |
|||||
|
5F
(C区画) |
15.35 坪 50.74 ㎡ |
※現在空室情報はございません |
※現在空室情報は 確認する |
|||||
|
6F
(B区画) |
19.61 坪 64.83 ㎡ |
※現在空室情報はございません |
※現在空室情報は 確認する |
|||||
|
6F
(C区画) |
15.35 坪 50.74 ㎡ |
※現在空室情報はございません |
※現在空室情報は 確認する |
|||||
|
7F
(B区画) |
19.61 坪 64.83 ㎡ |
※現在空室情報はございません |
※現在空室情報は 確認する |
|||||
|
7F
(C区画) |
15.35 坪 50.74 ㎡ |
※現在空室情報はございません |
※現在空室情報は 確認する |
|||||
|
8F
(801区画) |
15.35 坪 50.74 ㎡ |
相談 |
相談 |
8ヶ月 |
2026/04 |
|
|
|
|
8F
(802区画) |
19.61 坪 64.83 ㎡ |
※現在空室情報はございません |
※現在空室情報は 確認する |
|||||
|
9F
(B区画) |
19.61 坪 64.83 ㎡ |
※現在空室情報はございません |
※現在空室情報は 確認する |
|||||
|
9F
(C区画) |
15.35 坪 50.74 ㎡ |
※現在空室情報はございません |
※現在空室情報は 確認する |
|||||
|
10F
(B区画) |
19.61 坪 64.83 ㎡ |
※現在空室情報はございません |
※現在空室情報は 確認する |
|||||
|
10F
(C区画) |
15.35 坪 50.74 ㎡ |
※現在空室情報はございません |
※現在空室情報は 確認する |
|||||
|
11F
(B区画) |
19.61 坪 64.83 ㎡ |
※現在空室情報はございません |
※現在空室情報は 確認する |
|||||
|
11F
(C区画) |
15.35 坪 50.74 ㎡ |
※現在空室情報はございません |
※現在空室情報は 確認する |
|||||
|
12F
(B区画) |
19.61 坪 64.83 ㎡ |
※現在空室情報はございません |
※現在空室情報は 確認する |
|||||
|
12F
(C区画) |
15.35 坪 50.74 ㎡ |
※現在空室情報はございません |
※現在空室情報は 確認する |
|||||
お問い合わせ
似た条件の物件はこちら
-
寺沢ビル
東京都中央区京橋2-12-9
坪数:15.96 坪
坪単価:20,000 円(坪)
-
日本橋滄浪閣ビル
東京都中央区日本橋本町1-8-13
坪数:13.17 坪
坪単価:22,000 円(坪)
-
八重洲境井ビル
東京都中央区八重洲1-4-6
坪数:15.48 坪
坪単価:26,000 円(坪)
-
土屋ビル
東京都中央区京橋1-14-5
坪数:12.1 坪
坪単価:16,000 円(坪)
-
川昌八重洲ビル
東京都中央区八重洲2-11-6
坪数:11.5 坪
坪単価:16,000 円(坪)
-
東和八重洲ビル
東京都中央区日本橋3-4-16
坪数:15.83 坪
坪単価:35,000 円(坪)
-
城辺橋ビル
東京都中央区八重洲2-11-2
坪数:12.76 坪
坪単価:13,000 円(坪)
-
For You東京駅前ビル
東京都中央区日本橋3-5-12
坪数:10.5 坪
坪単価:28,571 円(坪)
-
小泉ビル
東京都中央区日本橋本石町4-4-16
坪数:14.1 坪
坪単価:14,000 円(坪)
-
A・M京橋ビル
東京都中央区京橋2-5-2
坪数:13.23 坪
坪単価:25,000 円(坪)