赤坂日本ビル(物件No:71188124)
赤坂日本ビルは港区赤坂にある地下1階、地上5階建ての賃貸事務所です。最寄駅は東京メトロ千代田線の乃木坂駅から徒歩1分、東京メトロ日比谷線の六本木駅から徒歩7分、東京メトロ銀座線の青山一丁目駅から徒歩9分、都営大江戸線の六本木駅から徒歩7分です。1994年10月竣工の基準階面積が93.34坪の鉄骨鉄筋コンクリート造です。設備としては、エレベーターが2基あり、駐車場もあります。セキュリティは機械警備です。トイレは室外男女別です。空調は個別空調です。床仕様はフリーアクセスです。天高は2600mmです。耐震設計となっている、複数路線利用可能なアクセスの良い港区赤坂の賃貸オフィスです。
| 階 | 面積 | 賃料 | 共益費 | 敷金 | 入居日 | お問合せ | お気に入り |
|---|---|---|---|---|---|---|---|
| B1+5F |
92.86 坪 306.97 ㎡ |
2,042,920 円 22,000 円(坪) |
込 |
16,343,360 円 8 ヶ月 |
即日 |
|
|
| 階 | 面積 | 賃料 | 共益費 | 敷金 | 入居日 | お問合せ | お気に入り |
|---|---|---|---|---|---|---|---|
| B1+5F |
92.86 坪 306.97 ㎡ |
2,042,920 円 22,000 円(坪) |
込 |
16,343,360 円 8 ヶ月 |
即日 |
|
|
-
物件情報
-
設備情報
- トイレ
- 室外男女別
- 床
- フリーアクセス
- 空調
- 個別空調
- セキュリティ
- 有
- 駐車場
- 有
- 会議室
- -
- エレベーター
- 2基
- 天井高
- 2600mm
-
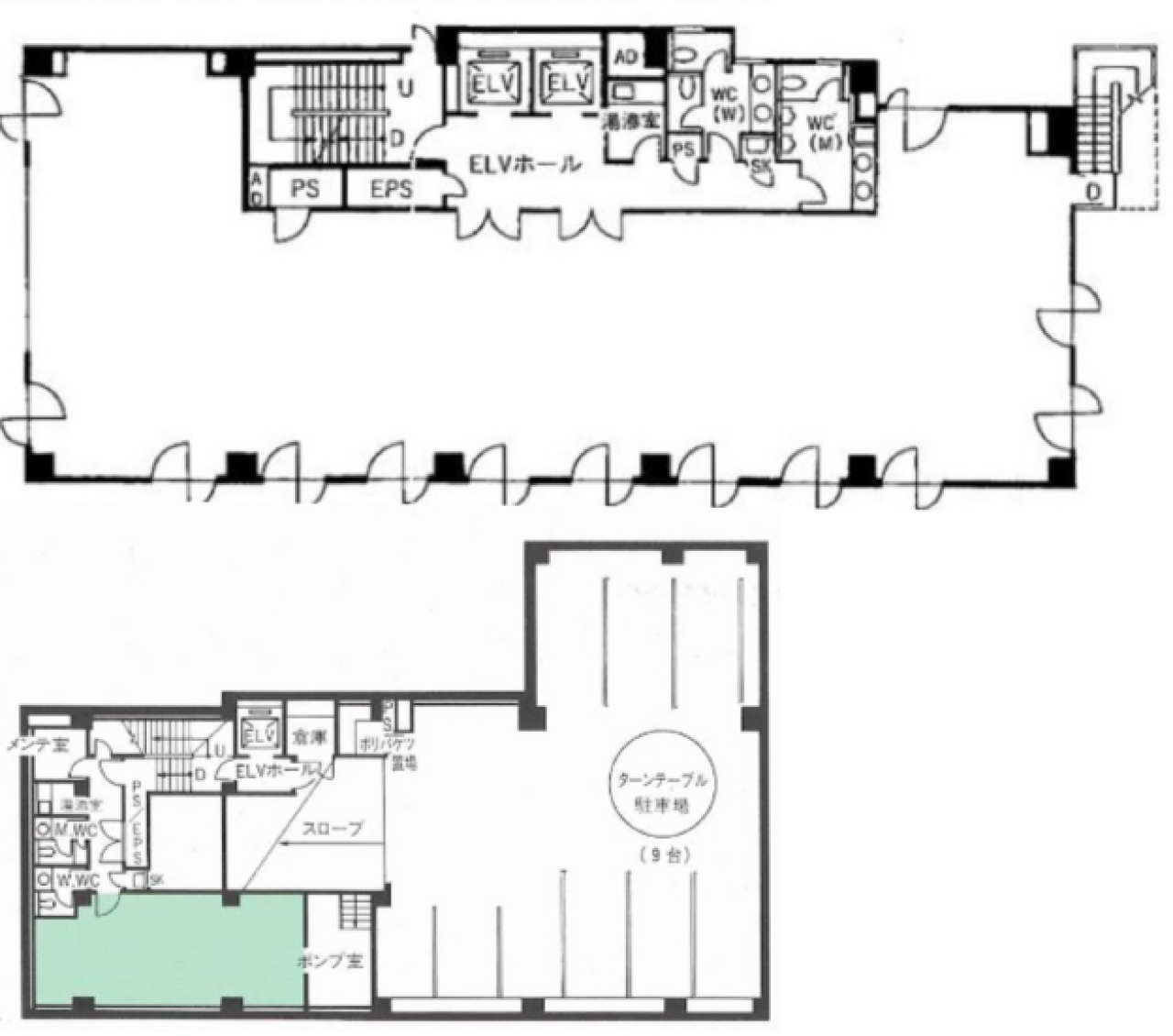
間取り図
-
近隣相場情報
赤坂9丁目(50~100坪)の相場
22000 円 (坪)
※ビルサク調べ
周辺施設情報
| コンビニ |
ローソン/赤坂九丁目/75m(徒歩1分) ローソン/ナチュラル 乃木坂/250m(徒歩3分) |
|---|---|
| 郵便局/銀行 |
郵便局/乃木坂駅前/平日 9:00-17:00 土曜 - 日曜・祝日 - [ATM]平日 9:00~18:00 土曜 9:00~17:00 日曜・祝日 -/250m(徒歩3分) セブン銀行/東京ミッドタウン店/[営業時間]24時間営業ではありません [ATM台数]2/600m(徒歩7分) |
| 飲食店 |
パーネアモーレ/11時30分~14時00分、18時00分~22時00分/52m(徒歩1分) 512 Cafe & Grill/10時00分~23時00分/160m(徒歩2分) |
| カフェ |
ANTICO CAFFE/東京ミッドタウン店/[営業時間]7:00~ 23:00(土・日・祝9:00~)/550m(徒歩7分) BARNEYS CAFE BY MI CAFETO PREMIER/11時00分~20時00分/450m(徒歩5分) |
| コインパーキング |
アットパーク/乃木坂 [料金] 全日 500円/20分 [最大料金] 昼間時間帯(7-21時) 4,000円 夜間時間帯(21-7時) 1,000円 [台数]39台 パークジャパン/赤坂9丁目 [料金] 8:00~22:00 400円/30分 22:00~8:00 200円/30分 [最大料金] 22:00~8:00 最大料金1,000円 最大料金24時間3,000円 [台数]5台 |
周辺地図
赤坂日本ビルは港区赤坂にある地下1階、地上5階建ての賃貸事務所です。最寄駅は東京メトロ千代田線の乃木坂駅から徒歩1分、東京メトロ日比谷線の六本木駅から徒歩7分、東京メトロ銀座線の青山一丁目駅から徒歩9分、都営大江戸線の六本木駅から徒歩7分です。1994年10月竣工の基準階面積が93.34坪の鉄骨鉄筋コンクリート造です。設備としては、エレベーターが2基あり、駐車場もあります。セキュリティは機械警備です。トイレは室外男女別です。空調は個別空調です。床仕様はフリーアクセスです。天高は2600mmです。耐震設計となっている、複数路線利用可能なアクセスの良い港区赤坂の賃貸オフィスです。
全フロア情報
更新日:2025年11月17日
| 階 | 面積 | 賃料 | 共益費 | 敷金 | 入居日 | お問合せ | お気に入り | |
|---|---|---|---|---|---|---|---|---|
| B1F |
14.22 坪 47.01 ㎡ |
※現在空室情報はございません |
※現在空室情報は 確認する |
|||||
| B1+5F |
92.86 坪 306.97 ㎡ |
2,042,920 円 22,000 円(坪) |
込 |
16,343,360 円 8 ヶ月 |
即日 |
|
|
|
| 1F |
63.9 坪 211.24 ㎡ |
※現在空室情報はございません |
※現在空室情報は 確認する |
|||||
| 4F |
79.91 坪 264.16 ㎡ |
※現在空室情報はございません |
※現在空室情報は 確認する |
|||||
| 5F |
78.64 坪 259.97 ㎡ |
相談 |
275,240 円 3,500 円(坪) |
8ヶ月 |
即日 |
|
|
|
お問い合わせ
似た条件の物件はこちら
-
第6セイコー
東京都港区赤坂5-1-31
坪数:78 坪
坪単価:14,000 円(坪)
-
近文ビル
東京都港区赤坂6-14-3
坪数:81.75 坪
坪単価:13,000 円(坪)
-
SKI赤坂ビル
東京都港区赤坂3-21-16
坪数:84.92 坪
坪単価:21,000 円(坪)
-
赤坂光映ビル
東京都港区赤坂3-2-6
坪数:93.72 坪
坪単価:26,675 円(坪)