ひまわり日本橋人形町ビル(物件No:71185162)
ひまわり日本橋人形町ビル(旧:ISビル)は、中央区日本橋人形町にある貸事務所物件です。最寄り駅は東京メトロ半蔵門線水天宮前駅、日比谷線、都営浅草線人形町駅、都営新宿線浜町駅です。1990年竣工で基準階が23.42坪の賃貸オフィスビルです。床はOAフロアとなっています。空調は個別空調です。エレベーターは1基あり、セキュリティは機械警備となっています。複数路線利用可能で交通アクセスの良い、中央区日本橋人形町の貸事務所です。
-
物件情報
-
設備情報
- トイレ
- 室内男女共用
- 床
- -
- 空調
- -
- セキュリティ
- 有
- 駐車場
- -
- 会議室
- -
- エレベーター
- 1基
- 天井高
- -
-
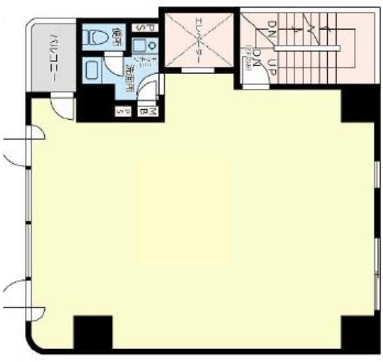
間取り図
-
近隣相場情報
日本橋人形町2丁目(20~30坪)の相場
14999 円 (坪)
※ビルサク調べ
周辺施設情報
| コンビニ |
ローソン/日本橋浜町二丁目/190m(徒歩2分) セブンイレブン/日本橋人形町2丁目/160m(徒歩2分) |
|---|---|
| 郵便局/銀行 |
みずほ銀行/日本橋浜町出張所/[営業時間]窓口 平日9:00~15:00 ATM 平日 7:00~24:00 土曜日 8:00~21:00 日曜日 8:00~21:00 祝日・振替休日 8:00~21:00 備考 通帳繰越機 平日9:00~15:00/350m(徒歩4分) 郵便局/中央人形町二/平日 9:00-17:00 土曜 - 日曜・祝日 - [ATM]平日 8:00-20:00 土曜 9:00-18:00 日曜・祝日 9:00-18:00/350m(徒歩4分) |
| 飲食店 |
やまらぁ/11時00分~15時00分、17時00分~22時00分/10m(徒歩1分) はませい/12時00分~14時00分、17時00分~22時00分/70m(徒歩1分) |
| カフェ |
Tiny Toria Tearoom/[営業時間]11時00分~18時00分/220m(徒歩3分) カフェドクリエ/人形町2丁目/[営業時間][平 日] 7:30-18:00 [土日祝] (土)8:30-17:30 (日/祝)8:30-17:30/180m(徒歩2分) |
| コインパーキング |
タイムズ駐車場/日本橋人形町第11 [料金] [月~土]00:00-00:00 15分 300円 [日・祝]00:00-00:00 15分 300円00:00-00:00 15分 300円 [最大料金] [月~土]19:00-08:00 最大料金500円 [日・祝]08:00-19:00 最大料金1200円 19:00-08:00 最大料金500円 [台数]3 ナビパーク/日本橋人形町第3 [料金] 全日 8:00 ~ 22:00 15分 / 300円 全日 22:00 ~ 8:00 60分 / 100円 [最大料金] 夜間 22:00 ~ 8:00 500円 24時間最大(月~土) 2,900円 24時間最大(日・祝) 1,000円 [台数]5台 うち月極・専用区画 0台 |
周辺地図
ひまわり日本橋人形町ビル(旧:ISビル)は、中央区日本橋人形町にある貸事務所物件です。最寄り駅は東京メトロ半蔵門線水天宮前駅、日比谷線、都営浅草線人形町駅、都営新宿線浜町駅です。1990年竣工で基準階が23.42坪の賃貸オフィスビルです。床はOAフロアとなっています。空調は個別空調です。エレベーターは1基あり、セキュリティは機械警備となっています。複数路線利用可能で交通アクセスの良い、中央区日本橋人形町の貸事務所です。
全フロア情報
更新日:2026年2月5日
| 階 | 面積 | 賃料 | 共益費 | 敷金 | 入居日 | お問合せ | お気に入り | |
|---|---|---|---|---|---|---|---|---|
| B1F |
19.57 坪 64.69 ㎡ |
※現在空室情報はございません |
※現在空室情報は 確認する |
|||||
| 1F |
20.09 坪 66.41 ㎡ |
※現在空室情報はございません |
※現在空室情報は 確認する |
|||||
| 2F |
23.42 坪 77.42 ㎡ |
※現在空室情報はございません |
※現在空室情報は 確認する |
|||||
| 3F |
23.42 坪 77.42 ㎡ |
304,460 円 13,000 円(坪) |
込 |
1,826,760 円 6 ヶ月 |
2026/04 |
|
|
|
| 4F |
23.42 坪 77.42 ㎡ |
※現在空室情報はございません |
※現在空室情報は 確認する |
|||||
| 5F |
23.42 坪 77.42 ㎡ |
※現在空室情報はございません |
※現在空室情報は 確認する |
|||||
| 6F |
16.8 坪 55.54 ㎡ |
※現在空室情報はございません |
※現在空室情報は 確認する |
|||||
お問い合わせ
似た条件の物件はこちら
-
伊勢兼ビル
東京都中央区日本橋人形町1-7-9
坪数:27.05 坪
坪単価:17,000 円(坪)
-
横山町ビル
東京都中央区日本橋横山町1-1
坪数:21.35 坪
坪単価:23,419 円(坪)
-
オーキッドプレイス蛎殻町ビル
東京都中央区日本橋蛎殻町1-4-1
坪数:24.87 坪
坪単価:16,000 円(坪)
-
FSビル
東京都中央区日本橋人形町2-21-1
坪数:22.05 坪
坪単価:11,000 円(坪)
-
Ikigai Bashi ビル
東京都中央区日本橋大伝馬町1-7
坪数:21.86 坪
坪単価:22,000 円(坪)
-
エムジー小伝馬町ビル
東京都中央区日本橋小伝馬町7-10
坪数:27.38 坪
坪単価:12,500 円(坪)
-
メゾン日本橋
東京都中央区日本橋浜町2-11-2
坪数:21.06 坪
坪単価:11,396 円(坪)
-
鈴善ビル
東京都中央区日本橋小舟町1-12
坪数:22.15 坪
坪単価:11,000 円(坪)
-
箱崎YMビル
東京都中央区日本橋箱崎町44-7
坪数:27.51 坪
坪単価:10,178 円(坪)
-
アスカ日本橋小伝馬町ビル
東京都中央区日本橋大伝馬町4-7
坪数:19.9 坪
坪単価:25,126 円(坪)
関連エリアから探す
- 日本橋大伝馬町
- 日本橋蛎殻町
- 日本橋小網町
- 日本橋小伝馬町
- 日本橋小舟町
- 日本橋富沢町
- 日本橋人形町
- 日本橋箱崎町
- 日本橋堀留町
- 日本橋中洲
- 日本橋馬喰町
- 日本橋浜町
- 日本橋久松町
- 日本橋横山町
- 東日本橋