ルミナリータワー池袋(物件No:70310766)
ルミナリータワー池袋は、豊島区池袋にある地上30階建ての賃貸事務所です。最寄駅はJR線の池袋駅から徒歩4分、東京メトロ丸ノ内線の池袋駅から徒歩4分、東京メトロ有楽町線の池袋駅から徒歩4分です。2013年2月竣工の鉄筋コンクリート造です。設備としては、トイレは室内男女共用です。耐震設計となっている、複数駅利用可能なアクセスの良い豊島区池袋の賃貸オフィスです。
| 階 | 面積 | 賃料 | 共益費 | 敷金 | 入居日 | お問合せ | お気に入り |
|---|---|---|---|---|---|---|---|
|
11F
(1区画) |
12.22 坪 40.41 ㎡ |
300,000 円 24,550 円(坪) |
無 |
900,000 円 3 ヶ月 |
即日 |
|
|
| 階 | 面積 | 賃料 | 共益費 | 敷金 | 入居日 | お問合せ | お気に入り |
|---|---|---|---|---|---|---|---|
|
11F
(1区画) |
12.22 坪 40.41 ㎡ |
300,000 円 24,550 円(坪) |
無 |
900,000 円 3 ヶ月 |
即日 |
|
|
-
物件情報
-
設備情報
- トイレ
- 室内男女共用
- 床
- -
- 空調
- -
- セキュリティ
- -
- 駐車場
- -
- 会議室
- -
- エレベーター
- -
- 天井高
- -
-
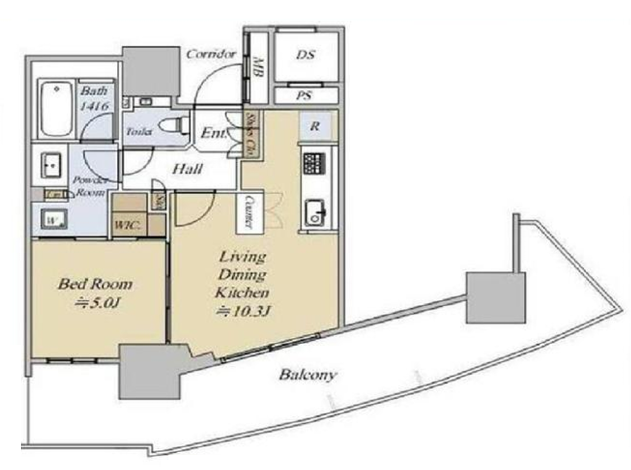
間取り図
-
近隣相場情報
池袋2丁目(20坪以下)の相場
16059 円 (坪)
※ビルサク調べ
周辺地図
ルミナリータワー池袋は、豊島区池袋にある地上30階建ての賃貸事務所です。最寄駅はJR線の池袋駅から徒歩4分、東京メトロ丸ノ内線の池袋駅から徒歩4分、東京メトロ有楽町線の池袋駅から徒歩4分です。2013年2月竣工の鉄筋コンクリート造です。設備としては、トイレは室内男女共用です。耐震設計となっている、複数駅利用可能なアクセスの良い豊島区池袋の賃貸オフィスです。
全フロア情報
更新日:2026年3月16日
| 階 | 面積 | 賃料 | 共益費 | 敷金 | 入居日 | お問合せ | お気に入り | |
|---|---|---|---|---|---|---|---|---|
|
11F
(1区画) |
12.22 坪 40.41 ㎡ |
300,000 円 24,550 円(坪) |
無 |
900,000 円 3 ヶ月 |
即日 |
|
|
|
|
26F
(1区画) |
18.16 坪 60.03 ㎡ |
※現在空室情報はございません |
※現在空室情報は 確認する |
|||||
お問い合わせ
似た条件の物件はこちら
-
TAMA WOODY GATE IKEBUKURO
東京都豊島区東池袋2-62-10
坪数:16.02 坪
坪単価:18,727 円(坪)
-
ニュー池袋ハイツ
東京都豊島区東池袋1-33-4
坪数:12.36 坪
坪単価:20,631 円(坪)
-
メゾンサンシャイン
東京都豊島区東池袋3-1-4
坪数:16.91 坪
坪単価:10,053 円(坪)
-
COSMY-Ⅱ
東京都豊島区池袋2-39-5
坪数:16.99 坪
坪単価:13,537 円(坪)
-
サンライズ南池袋
東京都豊島区南池袋3-16-10
坪数:16.48 坪
坪単価:15,777 円(坪)
-
相馬屋
東京都豊島区西池袋3-25-8
坪数:13.82 坪
坪単価:58,000 円(坪)
-
ライベストコート池袋Ⅱ
東京都豊島区千早1-36-6
坪数:10.59 坪
坪単価:16,053 円(坪)
-
グランドメゾン池袋一番館
東京都豊島区池袋2-60-6
坪数:15.32 坪
坪単価:11,097 円(坪)
-
カドラービル
東京都豊島区南池袋1-1-11
坪数:14.04 坪
坪単価:11,000 円(坪)
-
RENEX池袋
東京都豊島区池袋2-54-12
坪数:15.41 坪
坪単価:20,000 円(坪)