いろいろ聞いてみる

北幸の賃貸オフィス

犬山西口ビルヂング(物件No:70123915)

犬山西口ビルヂングは、神奈川県横浜市西区北幸にある地下2階、地上9階建ての貸店舗/賃貸事務所です。最寄駅はJR京浜東北線の横浜駅から徒歩3分、東急東横線の横浜駅から徒歩3分です。1976年1月竣工の鉄筋コンクリート造です。設備としては、エレベーターが2基あります。最寄駅から近くて便利な神奈川県横浜市西区北幸の貸店舗/賃貸オフィスです。

  • 犬山西口ビルヂング
  • 犬山西口ビルヂング
  • 犬山西口ビルヂング
  • 犬山西口ビルヂング
面積 賃料 共益費 敷金 入居日 お問合せ お気に入り
9F

(B区画)

51.48 坪

170.18 ㎡

※現在空室情報はございません

※現在空室情報は
ございません

最新情報を
確認する
  • 物件情報

    住所
    神奈川県横浜市西区北幸1-8-2
    最寄り駅
    JR京浜東北線 横浜駅 徒歩3分
    東急東横線 横浜駅 徒歩3分
    竣工
    1976年
    耐震
    規模・構造
    B2F - 9F  鉄筋コンクリート造
  • 設備情報

    トイレ
    室外男女別
    -
    空調
    -
    セキュリティ
    -
    駐車場
    -
    会議室
    -
    エレベーター
    2基
    天井高
    -
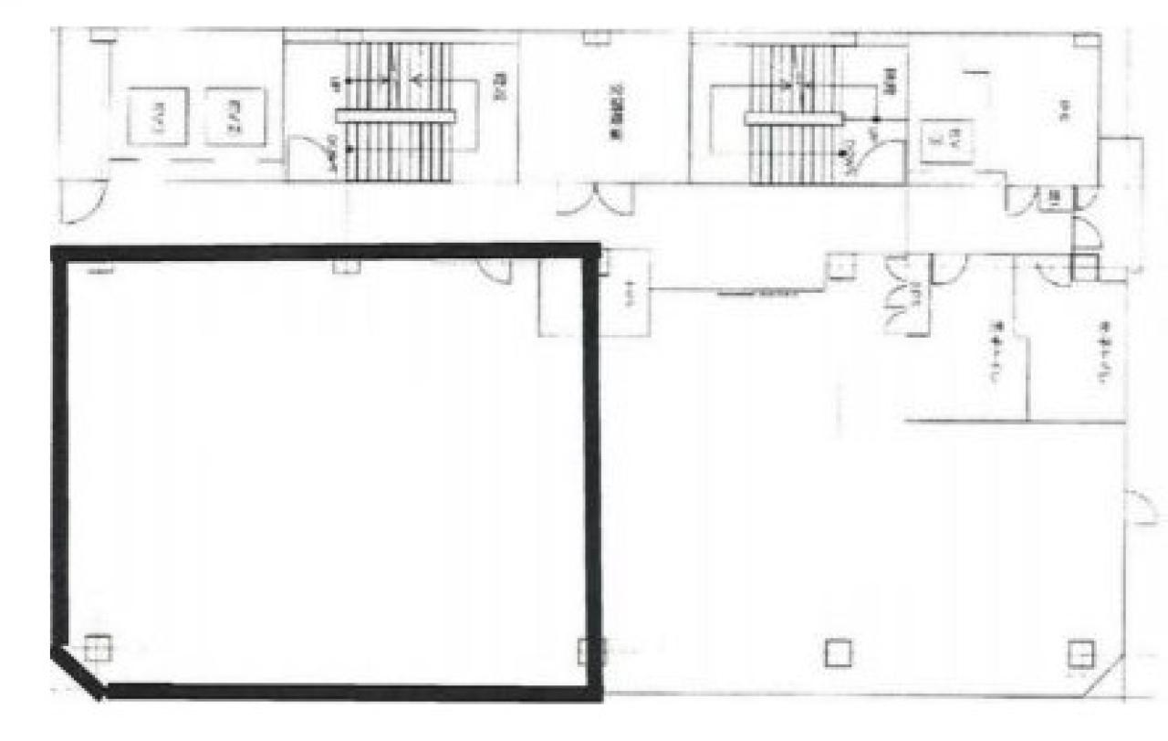
  • 間取り図

    間取り図

  • 近隣相場情報

    北幸1丁目(50~100坪)の相場

    調査中

周辺地図

犬山西口ビルヂングは、神奈川県横浜市西区北幸にある地下2階、地上9階建ての貸店舗/賃貸事務所です。最寄駅はJR京浜東北線の横浜駅から徒歩3分、東急東横線の横浜駅から徒歩3分です。1976年1月竣工の鉄筋コンクリート造です。設備としては、エレベーターが2基あります。最寄駅から近くて便利な神奈川県横浜市西区北幸の貸店舗/賃貸オフィスです。

全フロア情報

更新日:2024年10月9日

面積 賃料 共益費 敷金 入居日 お問合せ お気に入り
6F

(A区画)

63.8 坪

210.91 ㎡

※現在空室情報はございません

※現在空室情報は
ございません

最新情報を
確認する
9F

(B区画)

51.48 坪

170.18 ㎡

※現在空室情報はございません

※現在空室情報は
ございません

最新情報を
確認する

お問い合わせ

必須
必須
必須
必須
必須

お問い合わせ

物件に関してのお問い合わせ

「失敗しないオフィス移転サポート」物件探しから移転までスムーズで担当者様がとにかく楽になるサービスです。

050-7587-0049平日 9:00~18:00

メールでお問い合わせ

フリーワード検索