ヂャンティビル(物件No:70041503)
ヂャンティビルは東京都台東区柳橋にある貸事務所物件です。最寄駅は都営浅草線の浅草橋駅から徒歩4分です。1977年竣工の鉄筋コンクリート造で、地上3階建ての賃貸オフィスビルです。トイレは室内にあります。複数路線利用可能で、交通アクセスの良い台東区柳橋の貸事務所です。
-
物件情報
-
設備情報
- トイレ
- 室内男女共用
- 床
- -
- 空調
- -
- セキュリティ
- -
- 駐車場
- -
- 会議室
- -
- エレベーター
- 0基
- 天井高
- -
-
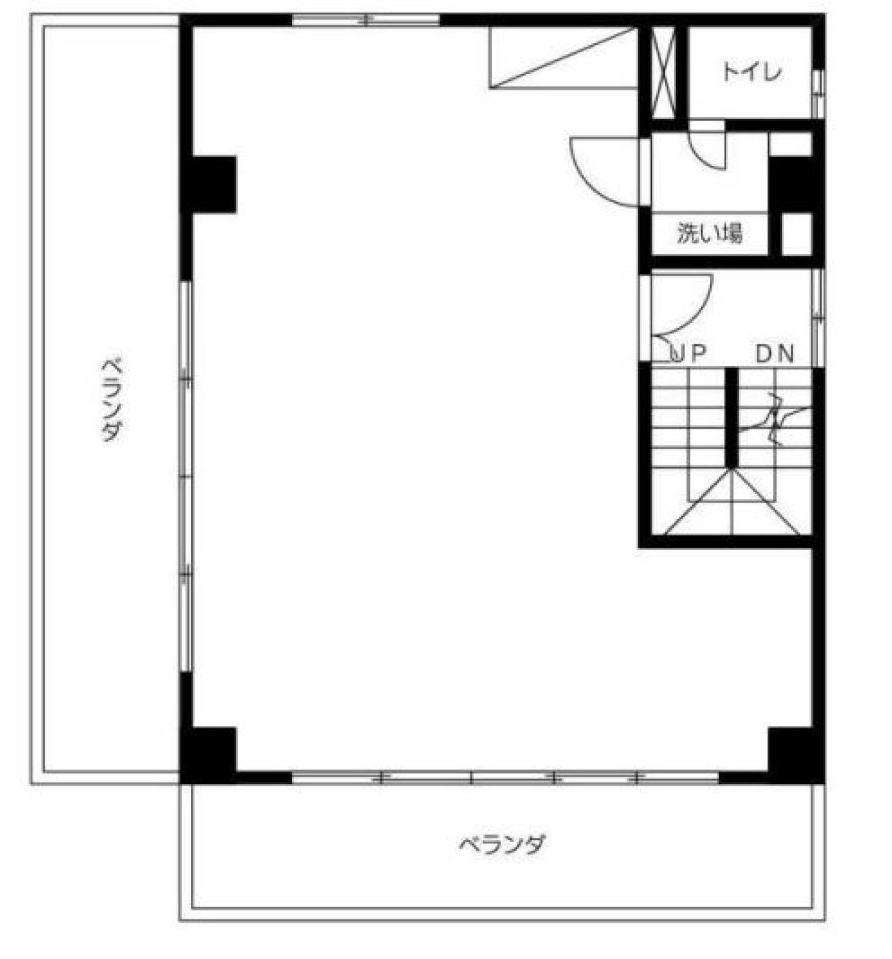
間取り図
-
近隣相場情報
柳橋2丁目(20坪以下)の相場
14398 円 (坪)
※ビルサク調べ
周辺地図
ヂャンティビルは東京都台東区柳橋にある貸事務所物件です。最寄駅は都営浅草線の浅草橋駅から徒歩4分です。1977年竣工の鉄筋コンクリート造で、地上3階建ての賃貸オフィスビルです。トイレは室内にあります。複数路線利用可能で、交通アクセスの良い台東区柳橋の貸事務所です。
全フロア情報
更新日:2025年11月19日
| 階 | 面積 | 賃料 | 共益費 | 敷金 | 入居日 | お問合せ | お気に入り | |
|---|---|---|---|---|---|---|---|---|
| 1F |
26.92 坪 89 ㎡ |
※現在空室情報はございません |
※現在空室情報は 確認する |
|||||
| 2F |
29.89 坪 98.8 ㎡ |
※現在空室情報はございません |
※現在空室情報は 確認する |
|||||
| 3F |
29.89 坪 98.8 ㎡ |
220,000 円 7,360 円(坪) |
0 円 0 円(坪) |
880,000 円 4 ヶ月 |
相談 |
|
|
|
| 4F |
19.97 坪 66 ㎡ |
※現在空室情報はございません |
※現在空室情報は 確認する |
|||||
お問い合わせ
似た条件の物件はこちら
-
岡安ビル
東京都台東区蔵前3-12-8
坪数:23.86 坪
坪単価:11,000 円(坪)
-
大島屋浅草橋ビル
東京都台東区柳橋1-13-5
坪数:16 坪
坪単価:15,625 円(坪)
-
三筋クレセントビル
東京都台東区三筋1-9-4
坪数:19.78 坪
坪単価:7,009 円(坪)
-
堀ビル
東京都台東区浅草橋3-11-1
坪数:18.02 坪
坪単価:9,989 円(坪)
-
大手山ビル
東京都台東区柳橋1-7-7
坪数:15.70 坪
坪単価:10,000 円(坪)
-
原田ビル
東京都台東区浅草橋5-9-7
坪数:19.63 坪
坪単価:9,424 円(坪)
-
浅草橋STビル
東京都台東区浅草橋1-13-6
坪数:21.25 坪
坪単価:9,500 円(坪)
-
ラッキー浅草橋ビル
東京都台東区浅草橋5-27-11
坪数:18.05 坪
坪単価:5,769 円(坪)
-
浅草1丁目戸建店舗
東京都台東区浅草1-7-5
坪数:14.00 坪
坪単価:21,429 円(坪)
-
浅草4丁目店舗
東京都台東区浅草4-33-7
坪数:22.1 坪
坪単価:11,312 円(坪)