赤坂ZENビル(物件No:63807206)
赤坂ZENビルは、港区赤坂にある地上7階建ての貸店舗/賃貸事務所です。最寄駅は東京メトロ千代田線の赤坂駅から徒歩3分、東京メトロ千代田線の乃木坂駅から徒歩9分、東京メトロ銀座線の溜池山王駅から徒歩9分です。2019年12月竣工の鉄筋コンクリート造です。設備としては、トイレは室外男女別です。空調は個別空調です。床仕様はフリーアクセスです。天高は3300mmです。耐震設計となっている、複数駅利用可能なアクセスの良い港区赤坂の貸店舗/賃貸オフィスです。
-
物件情報
-
設備情報
- トイレ
- 室外男女別
- 床
- フリーアクセス
- 空調
- 個別空調
- セキュリティ
- -
- 駐車場
- 無
- 会議室
- -
- エレベーター
- -
- 天井高
- -
-
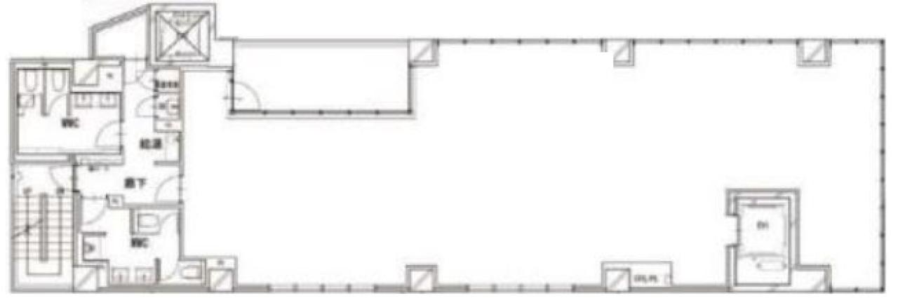
間取り図
-
近隣相場情報
赤坂6丁目(50~100坪)の相場
18000 円 (坪)
※ビルサク調べ
周辺施設情報
| コンビニ |
ローソン/赤坂六丁目/160m(徒歩2分) ファミリーマート/赤坂五丁目店/160m(徒歩2分) |
|---|---|
| 郵便局/銀行 |
イーネット/ファミリーマート赤坂五丁目/[営業時間]0:00-24:00/300m(徒歩4分) セブン銀行/赤坂5丁目店/[営業時間]24時間営業?[ATM台数]1/300m(徒歩4分) |
| 飲食店 |
もつ福 赤坂店/17時00分~22時30分/120m(徒歩1分) グランビア/17時00分~23時00分/100m(徒歩1分) |
| カフェ |
エクセルシオール/カフェ 赤坂パークビル店/[営業時間]平 日:06:45 - 21:00 土曜日:- 日 祝:- [休業日]日曜、祝日、土曜 [備考]総席数:70 禁煙席:38 喫煙席:32/500m(徒歩6分) カフエ・ド・フレール/月ー土 8:00-19:00/27m(徒歩1分) |
| コインパーキング |
GSパーク/赤坂通り [料金] 【全日】 時間割料金 08:00~24:00 30分 400円 【全日】 時間割料金 00:00~08:00 60分 200円 [台数]4台 ユアー・パーキング/赤坂6丁目 [料金] 【全日】 09時~21時 20分/400円 【全日】 21時~09時 30分/100円 [最大料金] 昼間最大(09時~21時の間)3,300円 夜間最大(21時~09時の間)600円 [台数]3 |
周辺地図
赤坂ZENビルは、港区赤坂にある地上7階建ての貸店舗/賃貸事務所です。最寄駅は東京メトロ千代田線の赤坂駅から徒歩3分、東京メトロ千代田線の乃木坂駅から徒歩9分、東京メトロ銀座線の溜池山王駅から徒歩9分です。2019年12月竣工の鉄筋コンクリート造です。設備としては、トイレは室外男女別です。空調は個別空調です。床仕様はフリーアクセスです。天高は3300mmです。耐震設計となっている、複数駅利用可能なアクセスの良い港区赤坂の貸店舗/賃貸オフィスです。
全フロア情報
更新日:2026年2月26日
| 階 | 面積 | 賃料 | 共益費 | 敷金 | 入居日 | お問合せ | お気に入り | |
|---|---|---|---|---|---|---|---|---|
| 1F |
65.55 坪 216.69 ㎡ |
※現在空室情報はございません |
※現在空室情報は 確認する |
|||||
| 2F |
57.47 坪 189.97 ㎡ |
※現在空室情報はございません |
※現在空室情報は 確認する |
|||||
| 3F |
64.9 坪 214.56 ㎡ |
※現在空室情報はございません |
※現在空室情報は 確認する |
|||||
| 4F |
64.9 坪 214.56 ㎡ |
※現在空室情報はございません |
※現在空室情報は 確認する |
|||||
| 5F |
61.7 坪 203.96 ㎡ |
※現在空室情報はございません |
※現在空室情報は 確認する |
|||||
お問い合わせ
似た条件の物件はこちら
-
赤坂ST
東京都港区赤坂2-18-14
坪数:56.2 坪
坪単価:20,058 円(坪)
-
T-FRONTビル
東京都港区赤坂1-3-3
坪数:53.32 坪
坪単価:18,755 円(坪)
-
紀陽ビル
東京都港区赤坂3-9-1
坪数:47.92 坪
坪単価:16,000 円(坪)
-
アルファベットセブンビル
東京都港区赤坂7-6-38
坪数:60.19 坪
坪単価:17,000 円(坪)
-
FORUM赤坂
東京都港区赤坂2-19-4
坪数:58.03 坪
坪単価:21,000 円(坪)
-
東京元赤坂ビル
東京都港区元赤坂1-1-16
坪数:55.2 坪
坪単価:21,188 円(坪)
-
合人社東京永田町ビル
東京都千代田区永田町1-11-28
坪数:52.77 坪
坪単価:23,000 円(坪)
-
赤坂セントラルビル
東京都港区赤坂3-13-3
坪数:48.86 坪
坪単価:16,373 円(坪)
-
赤坂光映ビル
東京都港区赤坂3-2-6
坪数:46.07 坪
坪単価:18,000 円(坪)
-
アカサカセブンスアヴェニュー
東京都港区赤坂7-10-20
坪数:69.07 坪
坪単価:18,000 円(坪)