内神田LDビル(物件No:63457584)
内神田LDビルは、千代田区内神田にある地下2階、地上4階建ての賃貸事務所です。最寄駅は都営新宿線の小川町駅から徒歩5分、東京メトロ丸ノ内線の淡路町駅から徒歩6分、JR線の神田駅から徒歩7分です。1997年2月竣工の鉄骨鉄筋コンクリート造です。設備としては、エレベーターが1基あります。セキュリティは機械警備です。トイレは室内男女共用です。空調は個別空調です。床仕様はフリーアクセスです。天高は2500mmです。耐震設計となっている、コンビニや飲食店などの周辺施設が充実した千代田区内神田の賃貸オフィスです。
-
物件情報
-
設備情報
- トイレ
- 室内男女共用
- 床
- タイルカーペット
- 空調
- 個別空調
- セキュリティ
- 有
- 駐車場
- 無
- 会議室
- -
- エレベーター
- 1基
- 天井高
- 2450mm
-
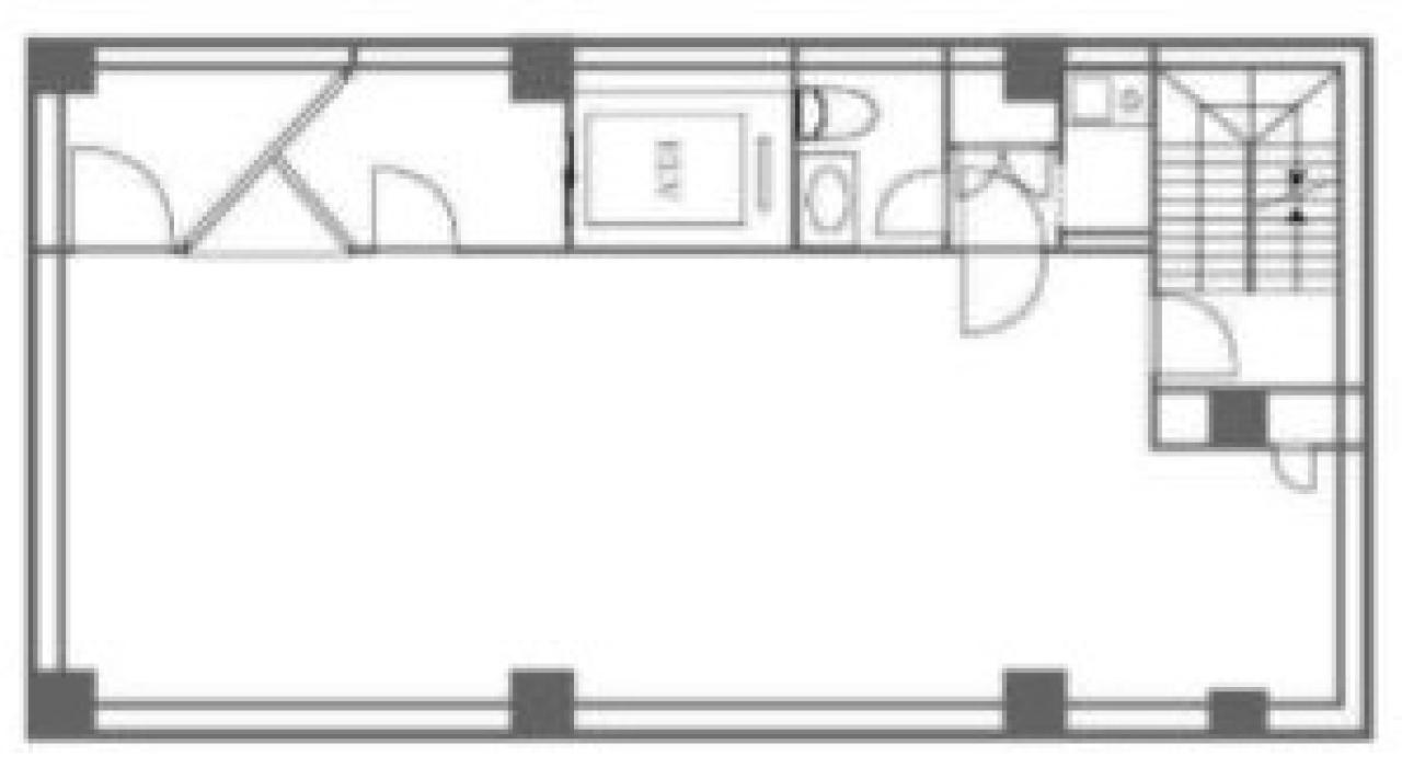
間取り図
-
近隣相場情報
内神田1丁目(20~30坪)の相場
18485 円 (坪)
※ビルサク調べ
周辺施設情報
| コンビニ |
NewDays/神田南口/450m(徒歩6分) セブンイレブン/神田錦町1丁目/300m(徒歩4分) |
|---|---|
| 郵便局/銀行 |
きらぼし銀行/神田支店/[営業時間]店舗 平日 9:00~15:00 土曜日 ? 日・祝日 ? 【貸金庫ご利用時間】 平日9:00~15:00 ATM 平日 8:00~19:30 土曜日 ? 日・祝日 ?/450m(徒歩6分) ゆうちょ/小川町駅前郵便局/[営業時間] [窓口]平日 9:00~16:00 土曜日 - 日曜日・休日 - [ATM]平日 9:00~18:00 土曜日 9:00~12:30 日曜日・休日 - [駐車場]なし [取扱]郵便/貯金/保険/ATM [備考]※新型コロナウイルスに感染した社員が発生した場合、窓口業務、ATMを一時休止/400m(徒歩5分) |
| 飲食店 |
mixology bar/300m(徒歩4分) 七條/11時30分~14時00分、18時00分~20時30分/32m(徒歩1分) |
| カフェ |
サンマルクカフェ/神田西口店/[営業時間]7:00~22:30 土日8:00~19:00 新型コロナウィルスの影響により営業時間が短縮する場合がございますので、営業時間は店舗までお問い合わせください [休業日]不定休日あり [備考]34席(店内全面禁煙)/400m(徒歩5分) テテス マニス/11時30分~18時30分/50m(徒歩1分) |
| コインパーキング |
SANパーク/千代田神田錦町 1 [料金] 7時~22時 30分400円 22時~7時 60分100円 [最大料金] 【日祝】昼(7時~22時)最大1900円 ※月-土適用なし 【全日】夜間(22時~7時)最大300円 [台数]車:2台 PARKS PARK/PARKS PARK 千代田区内神田1丁目第2 [料金] 【昼間】 7:00~22:00 300円 / 12分 【夜間】 22:00~7:00 100円 / 60分 [最大料金] 【24時間最大料金】 日曜日・祝日 1800円 (繰り返し可) 【当日最大料金】 月曜~土曜日(祝日除く) 3時間最大 3000円 (繰り返し可) [営業時間]24時間営業 |
周辺地図
内神田LDビルは、千代田区内神田にある地下2階、地上4階建ての賃貸事務所です。最寄駅は都営新宿線の小川町駅から徒歩5分、東京メトロ丸ノ内線の淡路町駅から徒歩6分、JR線の神田駅から徒歩7分です。1997年2月竣工の鉄骨鉄筋コンクリート造です。設備としては、エレベーターが1基あります。セキュリティは機械警備です。トイレは室内男女共用です。空調は個別空調です。床仕様はフリーアクセスです。天高は2500mmです。耐震設計となっている、コンビニや飲食店などの周辺施設が充実した千代田区内神田の賃貸オフィスです。
全フロア情報
更新日:2021年7月30日
| 階 | 面積 | 賃料 | 共益費 | 敷金 | 入居日 | お問合せ | お気に入り | |
|---|---|---|---|---|---|---|---|---|
| B2F |
22.53 坪 74.48 ㎡ |
※現在空室情報はございません |
※現在空室情報は 確認する |
|||||
| B2-4F |
138.33 坪 457.29 ㎡ |
※現在空室情報はございません |
※現在空室情報は 確認する |
|||||
| B1F |
22.50 坪 74.38 ㎡ |
※現在空室情報はございません |
※現在空室情報は 確認する |
|||||
| 1F |
20.56 坪 67.97 ㎡ |
※現在空室情報はございません |
※現在空室情報は 確認する |
|||||
| 2F |
28.83 坪 95.31 ㎡ |
※現在空室情報はございません |
※現在空室情報は 確認する |
|||||
| 3F |
27.30 坪 90.25 ㎡ |
※現在空室情報はございません |
※現在空室情報は 確認する |
|||||
| 4F |
16.59 坪 54.84 ㎡ |
※現在空室情報はございません |
※現在空室情報は 確認する |
|||||
お問い合わせ
似た条件の物件はこちら
-
KSYビル
東京都千代田区神田須田町2-15
坪数:22.12 坪
坪単価:13,562 円(坪)
-
KM千代田ビル
東京都千代田区岩本町1-12-1
坪数:20.02 坪
坪単価:12,996 円(坪)
-
TOKENビル
東京都千代田区外神田5-2-4
坪数:21.37 坪
坪単価:11,500 円(坪)
-
第二櫻井ビル
東京都千代田区神田佐久間町3-5
坪数:17.24 坪
坪単価:11,996 円(坪)
-
新東ビル
東京都千代田区内神田2-8-3
坪数:21.5 坪
坪単価:11,000 円(坪)
-
松本ビル
東京都千代田区外神田6-2-8
坪数:20.6 坪
坪単価:10,997 円(坪)
-
+SHIFT KANDA
東京都千代田区神田岩本町4-7
坪数:24.99 坪
坪単価:28,000 円(坪)
-
藤和内神田ビル
東京都千代田区内神田2-4-4
坪数:26.68 坪
坪単価:11,818 円(坪)
-
NOVEL WORK AKIHABARA
東京都千代田区神田佐久間町3-37
坪数:26.97 坪
坪単価:30,000 円(坪)
-
竹橋ビル
東京都千代田区内神田2-15-15
坪数:23.7 坪
坪単価:21,000 円(坪)
関連エリアから探す
- 内神田
- 神田淡路町
- 神田小川町
- 神田鍛冶町
- 神田須田町
- 神田駿河台
- 神田多町
- 神田司町
- 神田錦町
- 神田美土代町
- 岩本町
- 鍛冶町
- 神田岩本町
- 神田北乗物町
- 神田紺屋町
- 神田富山町
- 神田西福田町
- 神田東松下町
- 神田東紺屋町
- 神田美倉町
- 東神田
- 神田相生町
- 神田和泉町
- 神田佐久間町
- 神田佐久間河岸
- 神田練塀町
- 神田花岡町
- 神田松永町
- 外神田
- 神田平河町