岩田ビル(物件No:62830258)
岩田ビルは、豊島区要町にある貸事務所物件です。最寄り駅は、東京メトロ有楽町線、東京メトロ副都心線の、千川駅、要町駅、西武池袋線の椎名町駅です。1980年竣工で、複数路線利用可能な、アクセスの良い豊島区要町の貸事務所です。
| 階 | 面積 | 賃料 | 共益費 | 敷金 | 入居日 | お問合せ | お気に入り |
|---|---|---|---|---|---|---|---|
| 1F |
12.7 坪 41.98 ㎡ |
230,000 円 18,110 円(坪) |
相談 |
690,000 円 3 ヶ月 |
相談 |
|
|
| 階 | 面積 | 賃料 | 共益費 | 敷金 | 入居日 | お問合せ | お気に入り |
|---|---|---|---|---|---|---|---|
| 1F |
12.7 坪 41.98 ㎡ |
230,000 円 18,110 円(坪) |
相談 |
690,000 円 3 ヶ月 |
相談 |
|
|
-
物件情報
-
設備情報
- トイレ
- 室内男女共用
- 床
- -
- 空調
- -
- セキュリティ
- -
- 駐車場
- -
- 会議室
- -
- エレベーター
- -
- 天井高
- -
-
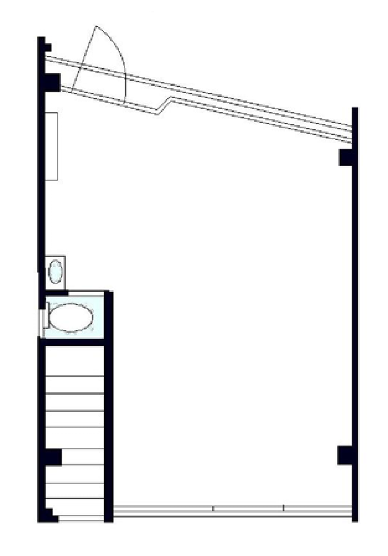
間取り図
-
近隣相場情報
要町3丁目(20坪以下)の相場
5989 円 (坪)
※ビルサク調べ
周辺施設情報
| コンビニ |
ローソンストア100/千川駅前/150m(徒歩2分) ファミリーマート/豊島要町二丁目店/350m(徒歩4分) |
|---|---|
| 郵便局/銀行 |
三井住友銀行/ATM 東京メトロ千川駅出張所/[営業時間] [ATM]平日 7:00~24:00 土曜 7:00~24:00 日曜 7:00~21:00/100m(徒歩1分) イーネット/ファミリーマート千川駅北/[営業時間]0:00~24:00/100m(徒歩1分) |
| 飲食店 |
すき家 千川駅前店/24 時間営業/2m(徒歩1分) たなかい/18時00分~2時00分/97m(徒歩1分) |
| カフェ |
SAKIYA CAFE/8時30分~18時00分/350m(徒歩4分) ひじり湖/9時00分~20時00分/400m(徒歩5分) |
| コインパーキング |
三井のリパーク/要町3丁目第2 [料金] 全日 08:00~22:00 20分/300円 全日 22:00~08:00 120分/100円 [最大料金] 【全日】最大料金入庫後24時間以内1200円 [台数]9 タイムズ/要町 [料金] [全日]通常料金 0:00~0:00 30分 220円 [最大料金] [全日]最大料金(繰り返し適用)駐車後24時間 最大料金1100円 [全日]19:00~8:00 最大料金500円 [台数]6台 |
周辺地図
岩田ビルは、豊島区要町にある貸事務所物件です。最寄り駅は、東京メトロ有楽町線、東京メトロ副都心線の、千川駅、要町駅、西武池袋線の椎名町駅です。1980年竣工で、複数路線利用可能な、アクセスの良い豊島区要町の貸事務所です。
全フロア情報
更新日:2026年2月3日
| 階 | 面積 | 賃料 | 共益費 | 敷金 | 入居日 | お問合せ | お気に入り | |
|---|---|---|---|---|---|---|---|---|
| 1F |
12.7 坪 41.98 ㎡ |
230,000 円 18,110 円(坪) |
相談 |
690,000 円 3 ヶ月 |
相談 |
|
|
|
| 2F |
19.61 坪 64.83 ㎡ |
※現在空室情報はございません |
※現在空室情報は 確認する |
|||||
お問い合わせ
似た条件の物件はこちら
-
TAMA WOODY GATE IKEBUKURO
東京都豊島区東池袋2-62-10
坪数:16.02 坪
坪単価:18,727 円(坪)
-
ニュー池袋ハイツ
東京都豊島区東池袋1-33-4
坪数:12.36 坪
坪単価:20,631 円(坪)
-
メゾンサンシャイン
東京都豊島区東池袋3-1-4
坪数:16.91 坪
坪単価:10,053 円(坪)
-
COSMY-Ⅱ
東京都豊島区池袋2-39-5
坪数:16.99 坪
坪単価:13,537 円(坪)
-
サンライズ南池袋
東京都豊島区南池袋3-16-10
坪数:16.48 坪
坪単価:15,777 円(坪)
-
相馬屋
東京都豊島区西池袋3-25-8
坪数:13.82 坪
坪単価:58,000 円(坪)
-
ライベストコート池袋Ⅱ
東京都豊島区千早1-36-6
坪数:10.59 坪
坪単価:16,053 円(坪)
-
グランドメゾン池袋一番館
東京都豊島区池袋2-60-6
坪数:15.32 坪
坪単価:11,097 円(坪)
-
カドラービル
東京都豊島区南池袋1-1-11
坪数:14.04 坪
坪単価:11,000 円(坪)
-
RENEX池袋
東京都豊島区池袋2-54-12
坪数:15.41 坪
坪単価:20,000 円(坪)