大島ビル(物件No:62728219)
大島ビルは、江東区富岡にある地上5階建ての賃貸事務所です。最寄駅は都営大江戸線の門前仲町駅から徒歩4分、東京メトロ東西線の門前仲町駅から徒歩4分、JR京葉線の越中島駅から徒歩10分です。1991年2月竣工の鉄筋コンクリート造です。設備としては、エレベーターが1基あります。トイレは室内男女別です。空調は個別空調です。複数駅利用可能なアクセスの良い江東区富岡の賃貸オフィスです。
-
物件情報
-
設備情報
- トイレ
- 室内男女別
- 床
- -
- 空調
- 個別空調
- セキュリティ
- -
- 駐車場
- -
- 会議室
- -
- エレベーター
- 1基
- 天井高
- -
-
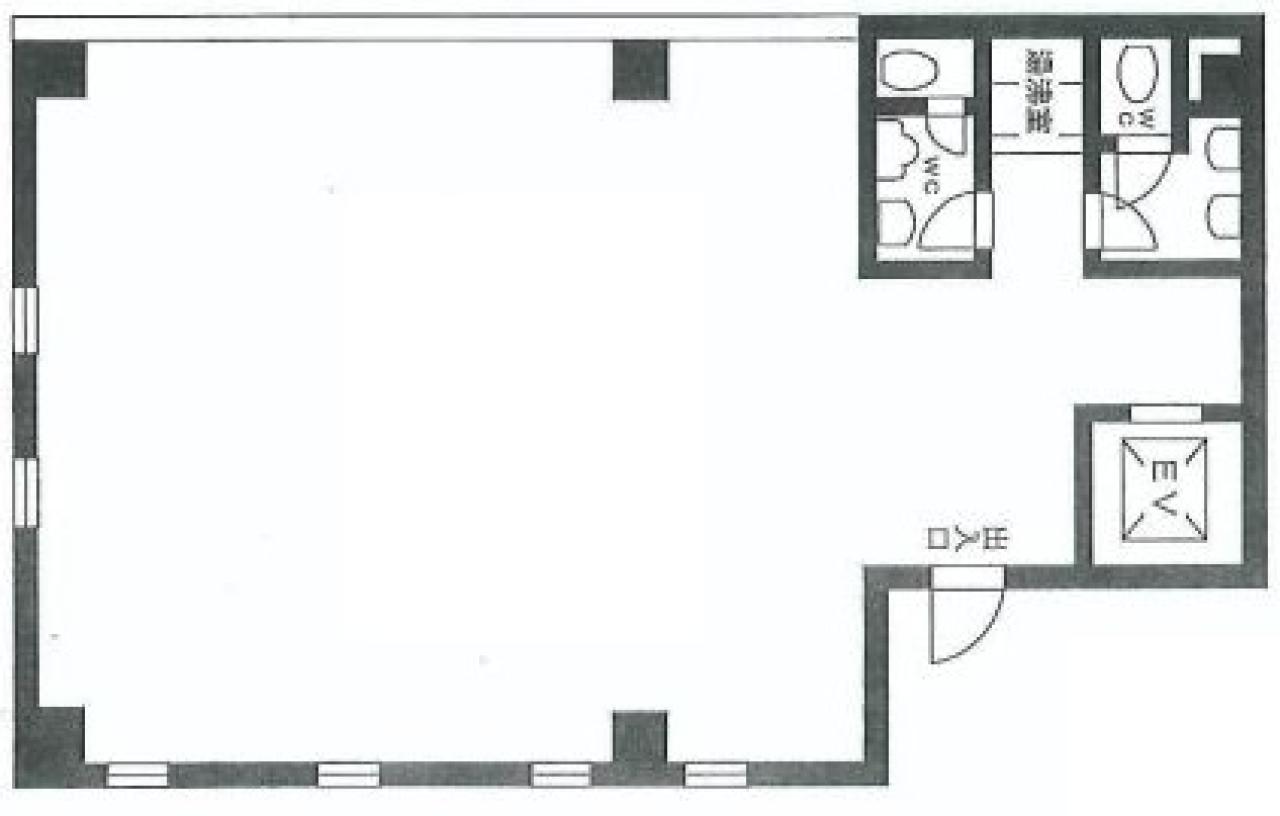
間取り図
-
近隣相場情報
富岡1丁目(40~50坪)の相場
調査中
周辺施設情報
| コンビニ |
ファミリーマート/西麻布霞町店/77m(徒歩1分) セブンイレブン/西麻布4丁目/700m(徒歩10分) |
|---|---|
| 郵便局/銀行 |
みずほ銀行/ATM ミニストップ南青山4丁目店出張所/[営業時間] [ATM]平日 0:00~24:00 土曜日 0:00~22:00 日曜日 8:00~24:00 祝日・振替休日 曜日に準ずる 備考 通帳繰越機 設置なし/230m(徒歩3分) 三井住友銀行/麻布支店/[営業時間] [窓口]平日 9:00~15:00 土曜 - 日曜 - [ATM]平日 7:00~24:00 土曜 7:00~24:00 日曜 7:00~21:00/500m(徒歩7分) |
| 飲食店 |
テーゼ/19時00分~4時00分/220m(徒歩3分) 帝國食堂/18時00分~2時00分/210m(徒歩3分) |
| カフェ |
椀カフェ/【月~金】 12:00~24:00 【土・日・祝】 12:00~23:00/230m(徒歩3分) ドトール/南青山5丁目店/[営業時間]平日:7:00~20:30 土曜日:7:00~20:00 日 祝:8:00~20:00 [休業日]なし [備考]総席数:30 禁煙席:24 喫煙席:6/750m(徒歩10分) |
| コインパーキング |
ファインパーキング/西麻布 [台数]5台 三井のリパーク/西麻布2丁目第3 [料金] 全日 02:00~08:00 30分/100円 全日 08:00~02:00 20分/400円 [最大料金] 【全日】最大料金入庫後4時間以内2600円 [台数]6 |
周辺地図
大島ビルは、江東区富岡にある地上5階建ての賃貸事務所です。最寄駅は都営大江戸線の門前仲町駅から徒歩4分、東京メトロ東西線の門前仲町駅から徒歩4分、JR京葉線の越中島駅から徒歩10分です。1991年2月竣工の鉄筋コンクリート造です。設備としては、エレベーターが1基あります。トイレは室内男女別です。空調は個別空調です。複数駅利用可能なアクセスの良い江東区富岡の賃貸オフィスです。
全フロア情報
更新日:2025年10月28日
| 階 | 面積 | 賃料 | 共益費 | 敷金 | 入居日 | お問合せ | お気に入り | |
|---|---|---|---|---|---|---|---|---|
| 2F |
42.34 坪 139.97 ㎡ |
※現在空室情報はございません |
※現在空室情報は 確認する |
|||||
| 4F |
42.34 坪 139.97 ㎡ |
※現在空室情報はございません |
※現在空室情報は 確認する |
|||||
お問い合わせ
似た条件の物件はこちら
-
光陽ビル
東京都江東区南砂2-36-10
坪数:43.36 坪
坪単価:8,200 円(坪)
-
杉船ビル東陽町
東京都江東区東陽4-10-8
坪数:32.05 坪
坪単価:15,000 円(坪)
-
ツチヤビル
東京都江東区南砂1-7-10
坪数:38.17 坪
坪単価:6,838 円(坪)
-
東京原木会館
東京都江東区東陽5-30-13
坪数:47.91 坪
坪単価:12,002 円(坪)