吉田ビル(物件No:62726086)
吉田ビルは、港区新橋にある貸事務所物件です。最寄り駅は、JR、ゆりかもめ、東京メトロ銀座線、都営浅草線の新橋駅、東京メトロ銀座線の虎ノ門駅、都営三田線の御成門駅、都営大江戸線の大門、汐留駅です。1991年竣工の賃貸オフィスビルです。空調は個別空調です。エレベーターは1基あります。複数路線利用可能な、アクセスの良い港区新橋の貸事務所です。
-
物件情報
-
設備情報
- トイレ
- 男女共用
- 床
- -
- 空調
- 個別空調
- セキュリティ
- -
- 駐車場
- -
- 会議室
- -
- エレベーター
- 1基
- 天井高
- -
-
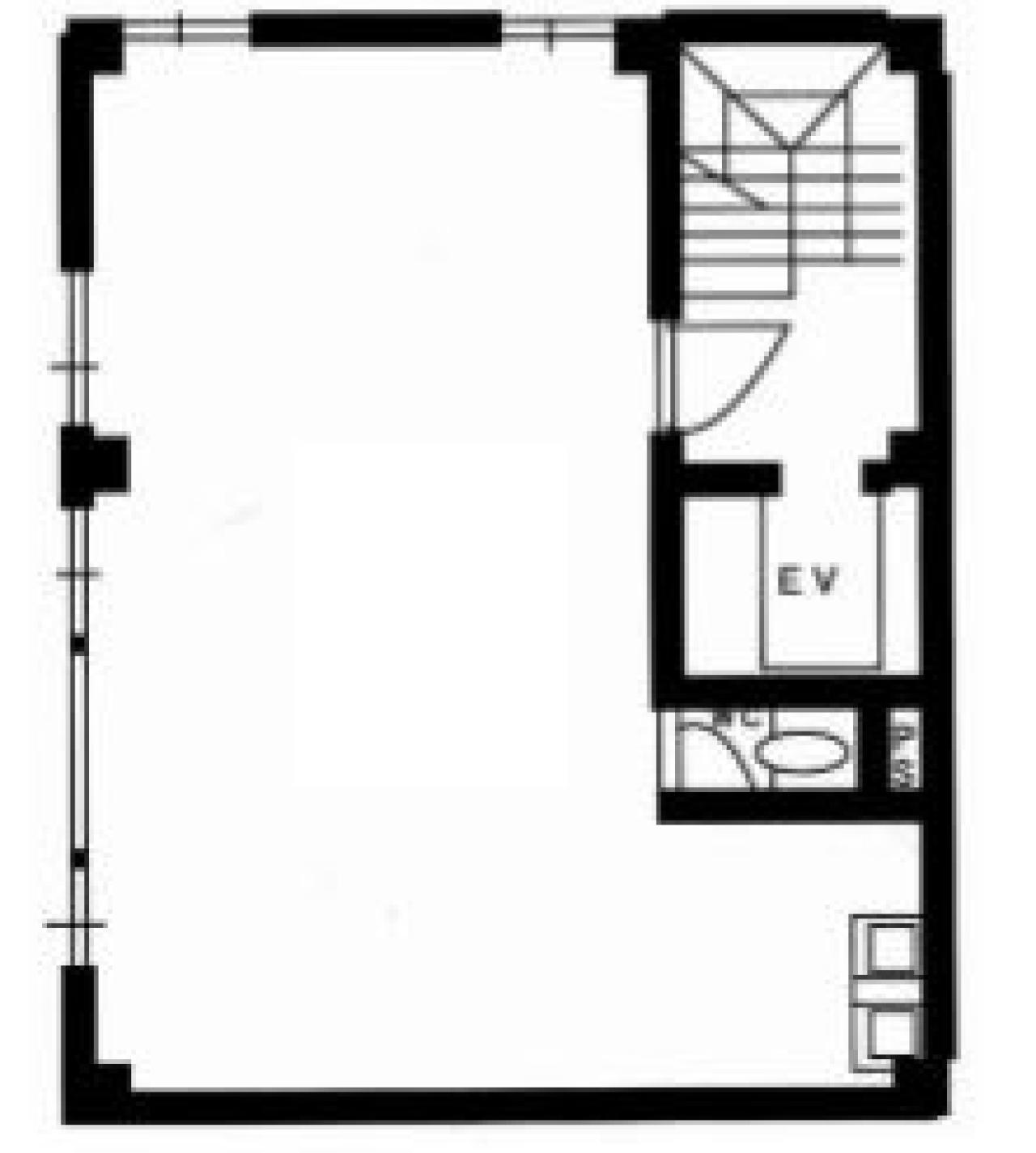
間取り図
-
近隣相場情報
新橋6丁目(20坪以下)の相場
14885 円 (坪)
※ビルサク調べ
周辺地図
吉田ビルは、港区新橋にある貸事務所物件です。最寄り駅は、JR、ゆりかもめ、東京メトロ銀座線、都営浅草線の新橋駅、東京メトロ銀座線の虎ノ門駅、都営三田線の御成門駅、都営大江戸線の大門、汐留駅です。1991年竣工の賃貸オフィスビルです。空調は個別空調です。エレベーターは1基あります。複数路線利用可能な、アクセスの良い港区新橋の貸事務所です。
全フロア情報
更新日:2017年6月28日
階 | 面積 | 賃料 | 共益費 | 敷金 | 入居日 | お問合せ | お気に入り | |
---|---|---|---|---|---|---|---|---|
3F |
12.50 坪 41.32 ㎡ |
※現在空室情報はございません |
※現在空室情報は 確認する |
お問い合わせ
似た条件の物件はこちら
-
S.A.グレイス
東京都港区西新橋1-23-3
坪数:16.65 坪
坪単価:23,000 円(坪)
-
上村ビル
東京都港区新橋5-27-6
坪数:12 坪
坪単価:10,000 円(坪)
-
田村町Shinshodoh BLDG
東京都港区新橋4-27-7
坪数:14.17 坪
坪単価:25,000 円(坪)
-
虎ノ門林ビル
東京都港区虎ノ門1-15-11
坪数:16.31 坪
坪単価:17,500 円(坪)
-
三沢ビル
東京都港区新橋6-12-8
坪数:12.5 坪
坪単価:15,000 円(坪)
-
虎ノ門法曹ビル
東京都港区西新橋1-20-3
坪数:14.55 坪
坪単価:15,807 円(坪)
-
アソルティ新橋ビル
東京都港区新橋4-24-11
坪数:14.7 坪
坪単価:13,000 円(坪)
-
土井ビル
東京都港区虎ノ門5-2-7
坪数:16.52 坪
坪単価:16,000 円(坪)
-
レック御成門川名ビル
東京都港区西新橋3-24-5
坪数:16.05 坪
坪単価:16,000 円(坪)
-
ニュー西新橋ビル
東京都港区西新橋2-11-6
坪数:10.99 坪
坪単価:16,018 円(坪)