ユナイトビル錦糸町(物件No:62686574)
ユナイトビル錦糸町は、墨田区太平にある地上9階建ての賃貸事務所です。最寄駅はJR総武線快速の錦糸町駅から徒歩7分です。1992年9月竣工の鉄筋コンクリート造です。設備としては、エレベーターが1基あります。セキュリティは機械警備です。トイレは室内男女別です。空調は個別空調です。耐震設計となっている、コンビニや飲食店などの周辺施設が充実した墨田区太平の賃貸オフィスです。
-
物件情報
-
設備情報
- トイレ
- 室内男女別
- 床
- -
- 空調
- 個別空調
- セキュリティ
- 有
- 駐車場
- 無
- 会議室
- -
- エレベーター
- 1基
- 天井高
- -
-
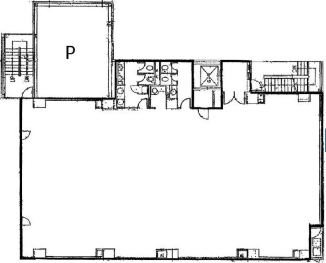
間取り図
-
近隣相場情報
太平2丁目(50~100坪)の相場
調査中
周辺地図
ユナイトビル錦糸町は、墨田区太平にある地上9階建ての賃貸事務所です。最寄駅はJR総武線快速の錦糸町駅から徒歩7分です。1992年9月竣工の鉄筋コンクリート造です。設備としては、エレベーターが1基あります。セキュリティは機械警備です。トイレは室内男女別です。空調は個別空調です。耐震設計となっている、コンビニや飲食店などの周辺施設が充実した墨田区太平の賃貸オフィスです。
全フロア情報
更新日:2022年6月3日
| 階 | 面積 | 賃料 | 共益費 | 敷金 | 入居日 | お問合せ | お気に入り | |
|---|---|---|---|---|---|---|---|---|
| 3F |
94.71 坪 313.09 ㎡ |
※現在空室情報はございません |
※現在空室情報は 確認する |
|||||
| 4F |
94.71 坪 313.09 ㎡ |
※現在空室情報はございません |
※現在空室情報は 確認する |
|||||
| 9F |
30.88 坪 102.08 ㎡ |
※現在空室情報はございません |
※現在空室情報は 確認する |
|||||
お問い合わせ
似た条件の物件はこちら
-
JU WATER FRONT錦糸町B.L.D
東京都墨田区亀沢4-5-4
坪数:75.64 坪
坪単価:12,000 円(坪)
-
雷電ビル
東京都墨田区両国3-22-6
坪数:80.62 坪
坪単価:15,000 円(坪)
-
横川2丁目貸倉庫・事務所
東京都墨田区横川2-19-12
坪数:94.98 坪
坪単価:9,476 円(坪)