ミナミアザブ2919(物件No:62605729)
ミナミアザブ2919は港区南麻布にある地上3階建ての賃貸事務所です。最寄駅は東京メトロ南北線の白金高輪駅から徒歩7分、都営三田線の白金高輪駅から徒歩7分、都営大江戸線の麻布十番駅から徒歩9分、東京メトロ南北線の麻布十番駅から徒歩9分、東京メトロ日比谷線の広尾駅から徒歩17分です。1989年竣工の鉄筋コンクリート造です。設備としては、駐車場があります。床仕様はタイルカーペットです。耐震設計となっている、複数路線利用可能なアクセスの良い港区南麻布の賃貸オフィスです。
-
物件情報
-
設備情報
- トイレ
- 室内男女共用
- 床
- タイルカーペット
- 空調
- -
- セキュリティ
- -
- 駐車場
- 有
- 会議室
- -
- エレベーター
- -
- 天井高
- -
-
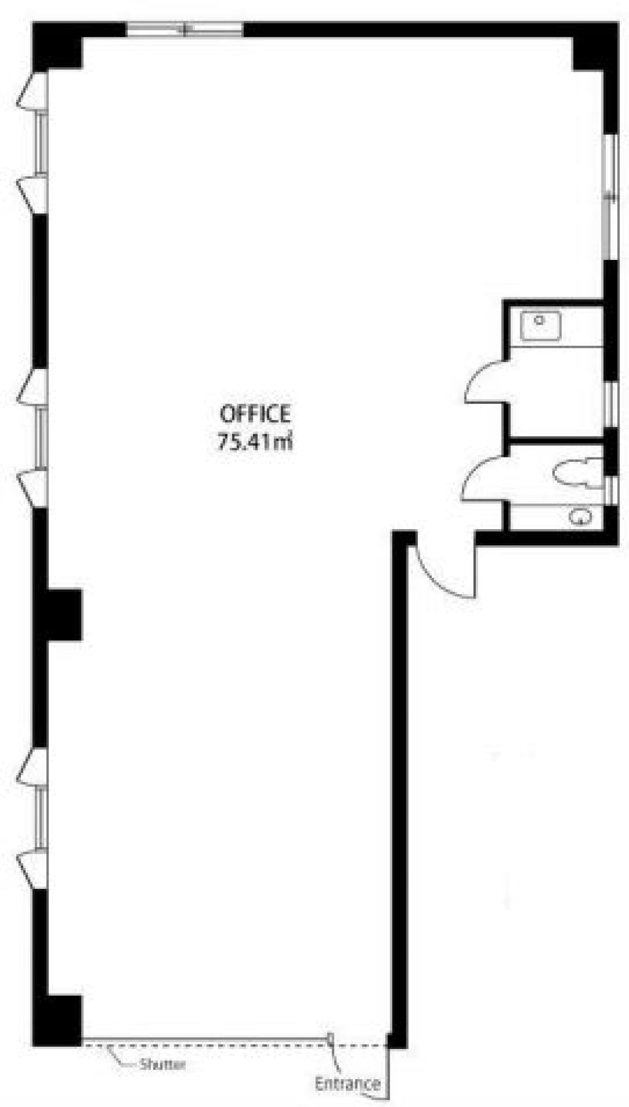
間取り図
-
近隣相場情報
南麻布2丁目(20~30坪)の相場
16318 円 (坪)
※ビルサク調べ
周辺施設情報
| コンビニ |
セブンイレブン/南麻布/200m(徒歩2分) ローソン/白金高輪駅前/700m(徒歩9分) |
|---|---|
| 郵便局/銀行 |
みずほ銀行/麻布支店/[営業時間] [窓口]平日9:00~15:00 [ATM]平日 6:00~26:00 土曜日 8:00~22:00 日曜日 8:00~21:00 祝日・振替休日 8:00~21:00 備考 *月曜日の6:00~7:00はご利用いただけません [駐車場]タイムズ南麻布第13/220m(徒歩3分) 郵便局/港三田四/[駐車場]なし [取扱]郵便/貯金/保険/ATM/600m(徒歩8分) |
| 飲食店 |
せんかぶー/¥15,000~¥19,999/350m(徒歩4分) アッピア/18時00分~2時00分/1000m(徒歩13分) |
| カフェ |
ホノルルコーヒー 麻布十番店/[営業時間]8:00~21:00 [備考]60席/900m(徒歩11分) N t S coffee Tokyo/8時00分~17時00分/67m(徒歩1分) |
| コインパーキング |
SANパーク/南麻布 1 [料金] 8時~22時 20分300円 22時~8時 60分100円 [最大料金] 24時間最大2700円 夜間(20時~8時)最大500円 [台数]車:4台 三井のリパーク/元麻布1丁目第3 [料金] 全日 08:00~22:00 20分/300円 全日 22:00~08:00 60分/100円 [台数]9 |
周辺地図
ミナミアザブ2919は港区南麻布にある地上3階建ての賃貸事務所です。最寄駅は東京メトロ南北線の白金高輪駅から徒歩7分、都営三田線の白金高輪駅から徒歩7分、都営大江戸線の麻布十番駅から徒歩9分、東京メトロ南北線の麻布十番駅から徒歩9分、東京メトロ日比谷線の広尾駅から徒歩17分です。1989年竣工の鉄筋コンクリート造です。設備としては、駐車場があります。床仕様はタイルカーペットです。耐震設計となっている、複数路線利用可能なアクセスの良い港区南麻布の賃貸オフィスです。
全フロア情報
更新日:2026年2月26日
| 階 | 面積 | 賃料 | 共益費 | 敷金 | 入居日 | お問合せ | お気に入り | |
|---|---|---|---|---|---|---|---|---|
| 1F |
22.81 坪 75.4 ㎡ |
※現在空室情報はございません |
※現在空室情報は 確認する |
|||||
お問い合わせ
似た条件の物件はこちら
-
センチュリオン六本木タワーⅡ
東京都港区西麻布3-6-1
坪数:21.76 坪
坪単価:20,000 円(坪)
-
麻布エンパイアマンション
東京都港区西麻布4-11-28
坪数:17.61 坪
坪単価:12,803 円(坪)
-
六本木メイフラワーハイツ
東京都港区六本木4-1-2
坪数:25 坪
坪単価:30,000 円(坪)
-
飯倉カムフィーホームズ
東京都港区麻布台3-4-4
坪数:19.03 坪
坪単価:11,000 円(坪)
-
ランドコム麻布台
東京都港区麻布台1-9-14
坪数:23.49 坪
坪単価:13,000 円(坪)
-
秀和六本木レジデンス
東京都港区六本木7-17-22
坪数:18.14 坪
坪単価:16,262 円(坪)
-
プリンセスコート東麻布
東京都港区東麻布1-29-9
坪数:18.15 坪
坪単価:15,978 円(坪)
-
久保ビル
東京都港区南麻布3-16-6
坪数:25.36 坪
坪単価:15,379 円(坪)
-
AR10
東京都港区麻布十番2-5-3
坪数:17.87 坪
坪単価:29,099 円(坪)
-
Kukai Terrace元麻布
東京都港区元麻布3-5-27
坪数:20.61 坪
坪単価:22,804 円(坪)