ニューギンザビル11号館(物件No:62313102)
ニューギンザ11号館は、中央区銀座にある貸事務所物件で、最寄り駅は新橋駅です。1968年竣工の物件で、地上10階建ての賃貸オフィスビルです。EVは1基設置しています。銀座駅、日比谷駅も利用可能な中央区銀座の貸事務所です。
-
物件情報
-
設備情報
- トイレ
- -
- 床
- -
- 空調
- -
- セキュリティ
- -
- 駐車場
- -
- 会議室
- -
- エレベーター
- 1基
- 天井高
- -
-
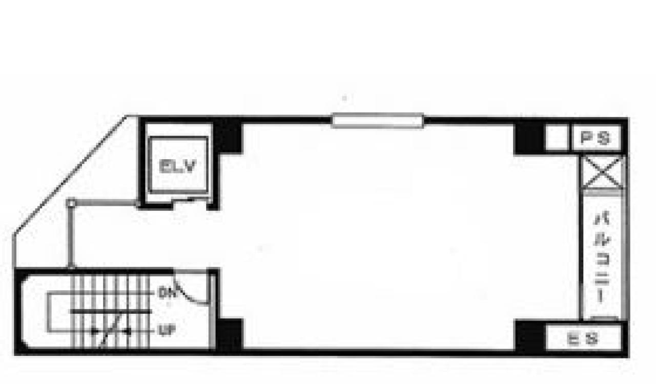
間取り図
-
近隣相場情報
銀座8丁目(20坪以下)の相場
23395 円 (坪)
※ビルサク調べ
周辺施設情報
| コンビニ |
ローソン/銀座八丁目/74m(徒歩1分) セブンイレブン/銀座8丁目/140m(徒歩2分) |
|---|---|
| 郵便局/銀行 |
ローソン銀行/銀座八丁目共同出張所/[営業時間]24時間/38m(徒歩1分) 三菱UFJ銀行/ATM 銀座ナイン1号館/[ATM]平日 9:00~23:00 土曜日 9:00~21:00 日・祝日 9:00~21:00/170m(徒歩2分) |
| 飲食店 |
相席屋 銀座コリドー店/17時00分~5時00分/40m(徒歩1分) 板前寿司 銀座コリドー店/11時30分~4時00分/58m(徒歩1分) |
| カフェ |
プロント/銀座ナイン店/[営業時間]平日:カフェ 7:00~17:30 バー 17:30~24:00 土曜:カフェ 8:00~17:30 バー 17:30~22:00 日曜:カフェ 8:00~17:30 バー 17:30~22:00 祝日:カフェ 8:00~17:30 バー 17:30~22:00/210m(徒歩3分) ミスタードーナツ/銀座ナイン/[営業時間]07:00~23:00 土・日・祝日は、9:00~21:00まで営業しております。/200m(徒歩3分) |
| コインパーキング |
三井のリパーク/銀座8丁目第3 [料金] [料金]全日 00:00~24:00 15分/400円 [最大料金] [料金]最大料金 【全日】最大料金入庫後12時間以内3600円 [台数]3 ダイヤパーク/A-PLACE新橋駅前 [料金] [営業時間]7:30~23:30(時間外入出庫不可) [基本料金]オールタイム 30分/400円 [最大料金] [最大料金]7:30~23:30 普通車 2000円 ハイルーフ車 2800円 23:30~7:30 全車 1000円 |
周辺地図
ニューギンザ11号館は、中央区銀座にある貸事務所物件で、最寄り駅は新橋駅です。1968年竣工の物件で、地上10階建ての賃貸オフィスビルです。EVは1基設置しています。銀座駅、日比谷駅も利用可能な中央区銀座の貸事務所です。
全フロア情報
更新日:2025年10月21日
| 階 | 面積 | 賃料 | 共益費 | 敷金 | 入居日 | お問合せ | お気に入り | |
|---|---|---|---|---|---|---|---|---|
| B1F |
14.04 坪 46.41 ㎡ |
※現在空室情報はございません |
※現在空室情報は 確認する |
|||||
| 2F |
16 坪 52.89 ㎡ |
※現在空室情報はございません |
※現在空室情報は 確認する |
|||||
| 3F |
14.39 坪 47.57 ㎡ |
345,360 円 24,000 円(坪) |
43,170 円 3,000 円(坪) |
相談 |
2025/11 |
|
|
|
| 6F |
14.39 坪 47.57 ㎡ |
※現在空室情報はございません |
※現在空室情報は 確認する |
|||||
| 7F |
14.39 坪 47.57 ㎡ |
※現在空室情報はございません |
※現在空室情報は 確認する |
|||||
| 9F |
16 坪 52.89 ㎡ |
※現在空室情報はございません |
※現在空室情報は 確認する |
|||||
お問い合わせ
似た条件の物件はこちら
-
SRビル
東京都中央区銀座8-12-3
坪数:19.16 坪
坪単価:18,000 円(坪)
-
日本聖書協会ビル(聖書館ビル)
東京都中央区銀座4-5-1
坪数:13.00 坪
坪単価:25,500 円(坪)
-
OPPEN GINZA BLDG
東京都中央区銀座1-13-10
坪数:20.01 坪
坪単価:10,000 円(坪)
-
正金ビル
東京都中央区銀座8-11-5
坪数:13.97 坪
坪単価:19,776 円(坪)
-
三福ビル
東京都中央区銀座4-8-2
坪数:17.50 坪
坪単価:22,000 円(坪)
-
銀座藤ビル
東京都中央区銀座2-12-10
坪数:15.8 坪
坪単価:21,000 円(坪)
-
中島商事ビル
東京都中央区銀座8-5-6
坪数:21 坪
坪単価:27,000 円(坪)
-
白鳥ビル
東京都中央区銀座3-14-2
坪数:18 坪
坪単価:15,000 円(坪)
-
銀座全線座ビル
東京都中央区銀座8-7-13
坪数:19.04 坪
坪単価:22,012 円(坪)
-
銀座8丁目10番ビル
東京都中央区銀座8-10-8
坪数:18.4 坪
坪単価:16,000 円(坪)