三喜ビルディング(物件No:62222206)
三喜ビルディングは、千代田区飯田橋にある貸事務所物件です。最寄り駅はJR、都営大江戸線、東京メトロ飯田橋駅、東京メトロ半蔵門線、都営新宿線九段下駅です。1988年竣工で基準階が109.08坪の賃貸オフィスビルです。天井の高さは2600mmとなっています。トイレは室外男女別で、空調は個別空調です。エレベーターは1基あり、セキュリティは機械警備となっています。駐車場が利用可能です。複数路線利用可能で、交通アクセスの良い、千代田区飯田橋の貸事務所です。
| 階 | 面積 | 賃料 | 共益費 | 敷金 | 入居日 | お問合せ | お気に入り |
|---|---|---|---|---|---|---|---|
| 5F |
43.48 坪 143.74 ㎡ |
551,950 円 12,694 円(坪) |
230,444 円 5,300 円(坪) |
6,623,400 円 12 ヶ月 |
即日 |
|
|
| 階 | 面積 | 賃料 | 共益費 | 敷金 | 入居日 | お問合せ | お気に入り |
|---|---|---|---|---|---|---|---|
| 5F |
43.48 坪 143.74 ㎡ |
551,950 円 12,694 円(坪) |
230,444 円 5,300 円(坪) |
6,623,400 円 12 ヶ月 |
即日 |
|
|
-
物件情報
-
設備情報
- トイレ
- 室外男女別
- 床
- -
- 空調
- 個別空調
- セキュリティ
- 有
- 駐車場
- 有
- 会議室
- -
- エレベーター
- 1基
- 天井高
- 2600mm
-
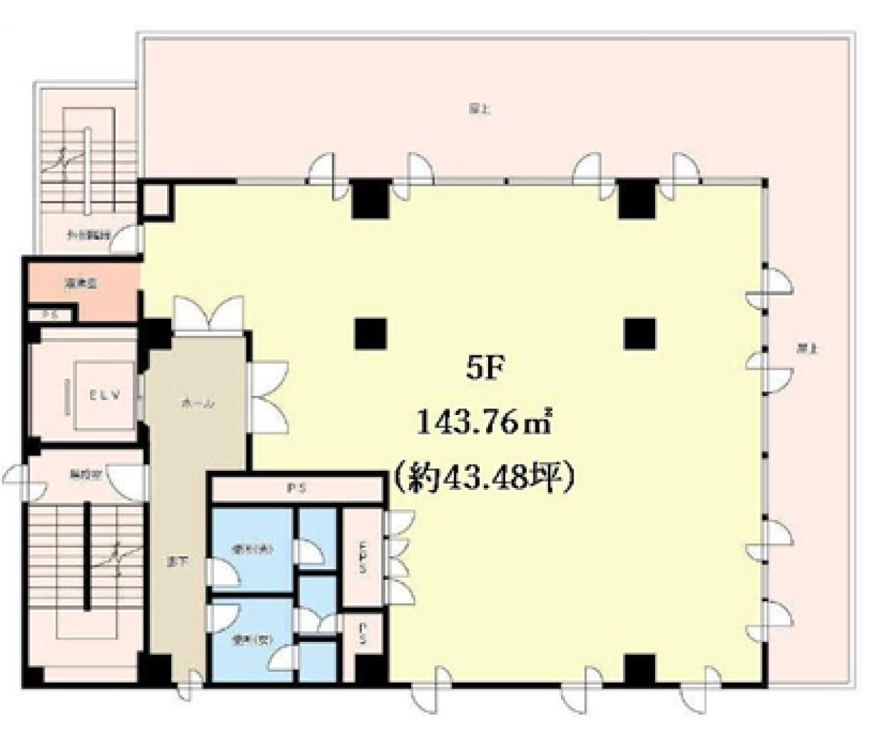
間取り図
-
近隣相場情報
飯田橋2丁目(40~50坪)の相場
16213 円 (坪)
※ビルサク調べ
周辺施設情報
| コンビニ |
ファミリーマート/西神田三丁目店/400m(徒歩5分) ローソン/飯田橋三丁目/400m(徒歩5分) |
|---|---|
| 郵便局/銀行 |
イーネット/ファミリーマート飯田橋プラーノ2号機/[営業時間]7:00~23:00/650m(徒歩9分) ゆうちょ/ATM 本店 専修大学内出張所/[営業時間] [ATM]平日 9:00~19:00 土曜日 9:00~12:30 日曜日・休日 - [駐車場]なし [取扱]ATM/550m(徒歩7分) |
| 飲食店 |
肉男‐nikuo‐ 水道橋店/12時00分~0時00分/550m(徒歩7分) 新荘園 飯田橋店/11時00分~15時00分、17時00分~23時00分/350m(徒歩4分) |
| カフェ |
サンマルクカフェ/飯田橋東口店/[営業時間]7:00~22:00 土7:30~20:00/日7:30~19:00 新型コロナウィルスの影響により営業時間が短縮する場合がございますので、営業時間は店舗までお問い合わせください [休業日]無 [備考]88席(店内全面禁煙)/350m(徒歩5分) ベローチェ/三崎町店/[営業時間]7:00~22:00(土・日・祝21:00閉店)※営業時間の変更情報あり。詳細についてはHPを参照 [備考]全席禁煙/Wi-Fiあり/550m(徒歩7分) |
| コインパーキング |
NPC24H/グランドパレス駐車場 [料金] 通常料金 30分/300円 [最大料金] 通常日:2200円(24時切替) 特定日:3500円(24時切替) ■ご宿泊利用 1泊につき1000円 ■レストランご利用料金2000円以上 3時間まで無料 ■ご宴会・ご婚礼利用 6時間まで無料 [台数]120台 公社駐車場/東京しごとセンター [料金] 昼間 15分 100円(8:00~22:00) [最大料金] 昼間 1,800円(8:00~22:00) 夜間宿泊 300円(22:00~8:00) [台数]30台 |
周辺地図
三喜ビルディングは、千代田区飯田橋にある貸事務所物件です。最寄り駅はJR、都営大江戸線、東京メトロ飯田橋駅、東京メトロ半蔵門線、都営新宿線九段下駅です。1988年竣工で基準階が109.08坪の賃貸オフィスビルです。天井の高さは2600mmとなっています。トイレは室外男女別で、空調は個別空調です。エレベーターは1基あり、セキュリティは機械警備となっています。駐車場が利用可能です。複数路線利用可能で、交通アクセスの良い、千代田区飯田橋の貸事務所です。
全フロア情報
更新日:2025年10月14日
| 階 | 面積 | 賃料 | 共益費 | 敷金 | 入居日 | お問合せ | お気に入り | |
|---|---|---|---|---|---|---|---|---|
| 1F |
56.46 坪 186.64 ㎡ |
※現在空室情報はございません |
※現在空室情報は 確認する |
|||||
| 2F |
109.08 坪 360.59 ㎡ |
※現在空室情報はございません |
※現在空室情報は 確認する |
|||||
| 3F |
100.5 坪 332.23 ㎡ |
※現在空室情報はございません |
※現在空室情報は 確認する |
|||||
| 4F |
70.41 坪 232.76 ㎡ |
※現在空室情報はございません |
※現在空室情報は 確認する |
|||||
| 5F |
43.48 坪 143.74 ㎡ |
551,950 円 12,694 円(坪) |
230,444 円 5,300 円(坪) |
6,623,400 円 12 ヶ月 |
即日 |
|
|
|
お問い合わせ
似た条件の物件はこちら
-
山京別館
東京都千代田区飯田橋1-7-10
坪数:33.92 坪
坪単価:10,000 円(坪)
-
日産ビル
東京都千代田区飯田橋4-8-6
坪数:35 坪
坪単価:9,000 円(坪)
-
神保町カンナビル
東京都千代田区神田神保町2-22-3
坪数:52.06 坪
坪単価:12,000 円(坪)
-
飯田橋セントラルビル
東京都千代田区飯田橋4-7-10
坪数:49.51 坪
坪単価:15,500 円(坪)
-
BONMARUSANビル
東京都千代田区神田神保町3-5
坪数:42.5 坪
坪単価:16,500 円(坪)
-
サンポウ水道橋ビル
東京都千代田区西神田1-4-11
坪数:46.1 坪
坪単価:15,000 円(坪)
-
GLORKS水道橋
東京都千代田区神田三崎町3-2-14
坪数:44.69 坪
坪単価:25,000 円(坪)
-
塚本ビル
東京都千代田区神田神保町3-2-9
坪数:33 坪
坪単価:10,606 円(坪)
-
巴ビル
東京都千代田区神田三崎町3-3-4
坪数:43.36 坪
坪単価:12,500 円(坪)
-
いちご神保町ビル
東京都千代田区神田神保町1-11-1
坪数:42.49 坪
坪単価:25,006 円(坪)