ヤブ原ビル(物件No:61987103)
ヤブ原ビルは、中央区八丁堀にある貸事務所物件です。最寄駅は東京メトロ日比谷線、JR八丁堀駅、東京メトロ東西線茅場町駅、都営浅草線宝町駅となっています。1961年竣工で、基準階が327.42坪の賃貸オフィスビルです。床はOAフロアで、天井の高さは2650mm。トイレは室外男女別で、空調は個別空調です。エレベーターは2基あり、セキュリティは有人警備、機械警備となっています。駐車場が利用可能です。最寄駅から徒歩1分。複数路線利用可能で交通アクセスの良い、中央区八丁堀の貸事務所です。
-
物件情報
-
設備情報
- トイレ
- 室外男女別
- 床
- フリーアクセス
- 空調
- 個別空調
- セキュリティ
- 有
- 駐車場
- 有
- 会議室
- -
- エレベーター
- 2基
- 天井高
- 2650mm
-
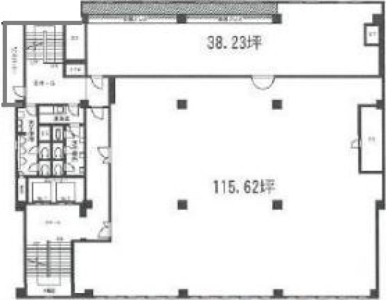
間取り図
-
近隣相場情報
八丁堀2丁目(100坪以上)の相場
28823 円 (坪)
※ビルサク調べ
周辺施設情報
| コンビニ |
ファミリーマート/八丁堀駅前店/90m(徒歩1分) ローソン/八丁堀二丁目/170m(徒歩2分) |
|---|---|
| 郵便局/銀行 |
ゆうちょ/ATM 本店 ファミリーマート八丁堀駅前店内出張所/[駐車場]なし/90m(徒歩1分) みずほ銀行/ATM マルエツプチ八丁堀店出張所/[営業時間] [ATM]平日 0:00~24:00 土曜日 0:00~22:00 日曜日 8:00~24:00/170m(徒歩2分) |
| 飲食店 |
鳥貴族 八丁堀店/16時00分~22時00分/190m(徒歩4分) 牛角 八丁堀八重洲通り店/16時00分~22時00分/1m(徒歩1分) |
| カフェ |
プロント/八丁堀店/[営業時間]平日:カフェ 7:00~17:30 バー 17:30~22:00 土曜:カフェ 7:00~11:00 日曜:カフェ 7:00~11:00 祝日:カフェ 7:00~11:00/240m(徒歩3分) ドトール/八丁堀店/■通常営業時間 平日 7:00~19:30 土曜 7:30~16:00 日祝 9:00~16:00/250m(徒歩3分) |
| コインパーキング |
ファインパーキング/茅場町 [台数]1台 タイムズ/ヴィラフォンテーヌ東京八丁堀 [料金] [月~土]通常料金 / 0:00~0:00 15分 330円 [日・祝]通常料金 / 0:00~0:00 15分 330円 [最大料金] [月~土]8:00~18:00 最大料金3850円| [日・祝]8:00~18:00 最大料金1320円 [台数]2 |
周辺地図
ヤブ原ビルは、中央区八丁堀にある貸事務所物件です。最寄駅は東京メトロ日比谷線、JR八丁堀駅、東京メトロ東西線茅場町駅、都営浅草線宝町駅となっています。1961年竣工で、基準階が327.42坪の賃貸オフィスビルです。床はOAフロアで、天井の高さは2650mm。トイレは室外男女別で、空調は個別空調です。エレベーターは2基あり、セキュリティは有人警備、機械警備となっています。駐車場が利用可能です。最寄駅から徒歩1分。複数路線利用可能で交通アクセスの良い、中央区八丁堀の貸事務所です。
全フロア情報
更新日:2026年1月5日
| 階 | 面積 | 賃料 | 共益費 | 敷金 | 入居日 | お問合せ | お気に入り | |
|---|---|---|---|---|---|---|---|---|
| 5F |
160.74 坪 531.37 ㎡ |
※現在空室情報はございません |
※現在空室情報は 確認する |
|||||
| 7F |
160.74 坪 531.37 ㎡ |
※現在空室情報はございません |
※現在空室情報は 確認する |
|||||
| 9F |
115.62 坪 382.21 ㎡ |
※現在空室情報はございません |
※現在空室情報は 確認する |
|||||
|
9F
(1区画) |
38.23 坪 126.38 ㎡ |
※現在空室情報はございません |
※現在空室情報は 確認する |
|||||
お問い合わせ
似た条件の物件はこちら
-
茅場町イーストスクエア
東京都中央区新川1-22-11
坪数:85.97 坪
坪単価:24,000 円(坪)
-
R-TERRACE HATCHOBORI
東京都中央区新川2-12-15
坪数:106.55 坪
坪単価:20,000 円(坪)
-
永代橋エコピアザビル
東京都中央区新川1-29-13
坪数:95 坪
坪単価:13,000 円(坪)
-
金盃第3ビル
東京都中央区新川1-14-5
坪数:115.66 坪
坪単価:8,000 円(坪)
-
八丁堀FRONT
東京都中央区八丁堀2-20-9
坪数:105.5 坪
坪単価:10,500 円(坪)