いろいろ聞いてみる

八丁堀の賃貸オフィス

ヤブ原ビル(物件No:61987103)

ヤブ原ビルは、中央区八丁堀にある貸事務所物件です。最寄駅は東京メトロ日比谷線、JR八丁堀駅、東京メトロ東西線茅場町駅、都営浅草線宝町駅となっています。1961年竣工で、基準階が327.42坪の賃貸オフィスビルです。床はOAフロアで、天井の高さは2650mm。トイレは室外男女別で、空調は個別空調です。エレベーターは2基あり、セキュリティは有人警備、機械警備となっています。駐車場が利用可能です。最寄駅から徒歩1分。複数路線利用可能で交通アクセスの良い、中央区八丁堀の貸事務所です。

  • ヤブ原ビル
  • ヤブ原ビル
  • ヤブ原ビル
  • ヤブ原ビル
面積 賃料 共益費 敷金 入居日 お問合せ お気に入り
7F

160.74 坪

531.37 ㎡

※現在空室情報はございません

※現在空室情報は
ございません

最新情報を
確認する

周辺施設情報

コンビニ

ファミリーマート/八丁堀駅前店/90m(徒歩1分)

ローソン/八丁堀二丁目/170m(徒歩2分)

郵便局/銀行

ゆうちょ/ATM 本店 ファミリーマート八丁堀駅前店内出張所/[駐車場]なし/90m(徒歩1分)

みずほ銀行/ATM マルエツプチ八丁堀店出張所/[営業時間] [ATM]平日 0:00~24:00 土曜日 0:00~22:00 日曜日 8:00~24:00/170m(徒歩2分)

飲食店

鳥貴族 八丁堀店/16時00分~22時00分/190m(徒歩4分)

牛角 八丁堀八重洲通り店/16時00分~22時00分/1m(徒歩1分)

カフェ

プロント/八丁堀店/[営業時間]平日:カフェ 7:00~17:30 バー 17:30~22:00 土曜:カフェ 7:00~11:00 日曜:カフェ 7:00~11:00 祝日:カフェ 7:00~11:00/240m(徒歩3分)

ドトール/八丁堀店/■通常営業時間 平日 7:00~19:30 土曜 7:30~16:00 日祝 9:00~16:00/250m(徒歩3分)

コインパーキング

ファインパーキング/茅場町

[台数]1台

タイムズ/ヴィラフォンテーヌ東京八丁堀

[料金]

[月~土]通常料金 / 0:00~0:00 15分 330円

[日・祝]通常料金 / 0:00~0:00 15分 330円

[最大料金]

[月~土]8:00~18:00 最大料金3850円|

[日・祝]8:00~18:00 最大料金1320円

[台数]2

周辺地図

ヤブ原ビルは、中央区八丁堀にある貸事務所物件です。最寄駅は東京メトロ日比谷線、JR八丁堀駅、東京メトロ東西線茅場町駅、都営浅草線宝町駅となっています。1961年竣工で、基準階が327.42坪の賃貸オフィスビルです。床はOAフロアで、天井の高さは2650mm。トイレは室外男女別で、空調は個別空調です。エレベーターは2基あり、セキュリティは有人警備、機械警備となっています。駐車場が利用可能です。最寄駅から徒歩1分。複数路線利用可能で交通アクセスの良い、中央区八丁堀の貸事務所です。

全フロア情報

更新日:2026年1月5日

面積 賃料 共益費 敷金 入居日 お問合せ お気に入り
5F

160.74 坪

531.37 ㎡

※現在空室情報はございません

※現在空室情報は
ございません

最新情報を
確認する
7F

160.74 坪

531.37 ㎡

※現在空室情報はございません

※現在空室情報は
ございません

最新情報を
確認する
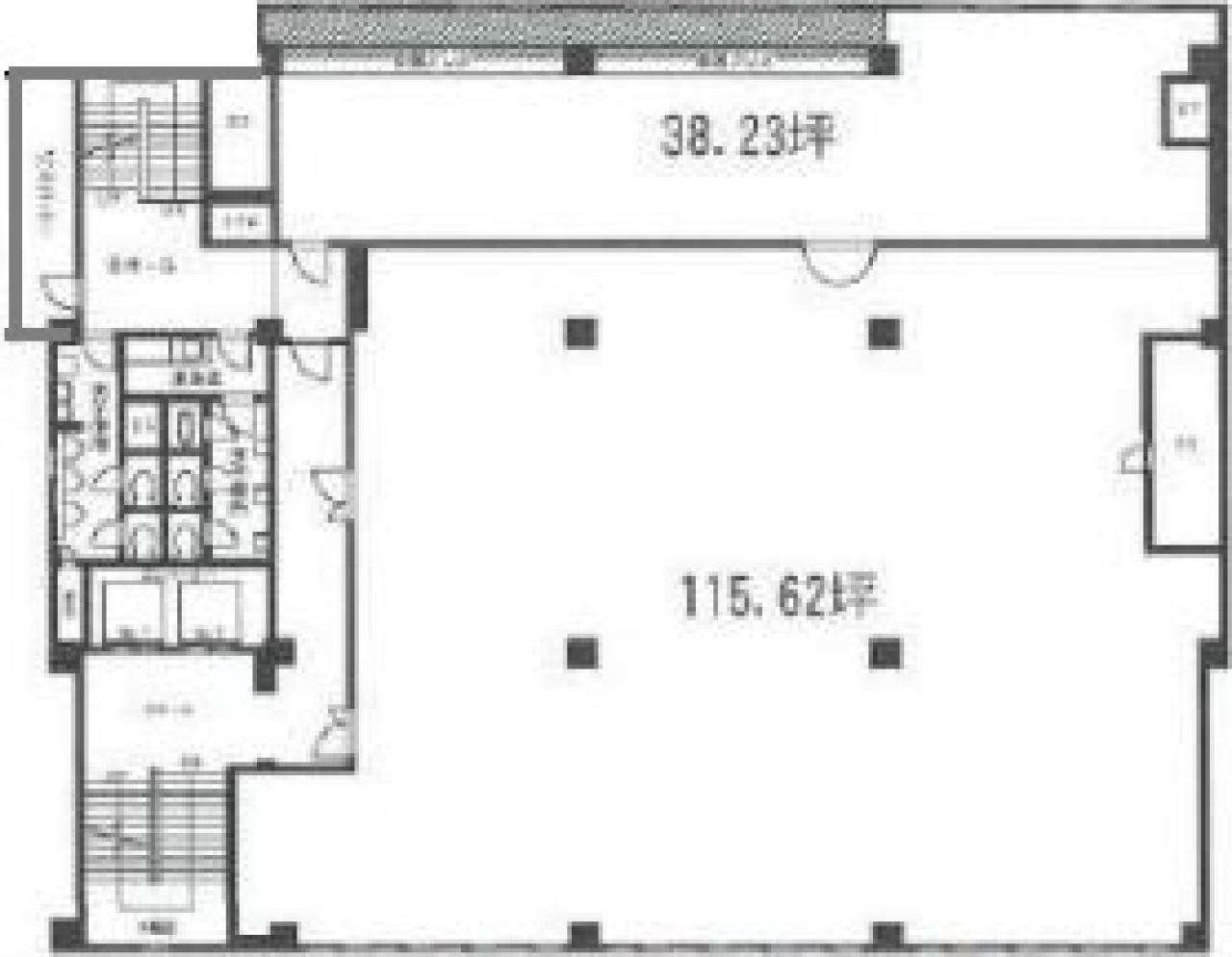
9F

115.62 坪

382.21 ㎡

※現在空室情報はございません

※現在空室情報は
ございません

最新情報を
確認する
9F

(1区画)

38.23 坪

126.38 ㎡

※現在空室情報はございません

※現在空室情報は
ございません

最新情報を
確認する

お問い合わせ

必須
必須
必須
必須
必須

似た条件の物件はこちら

関連エリアから探す

駅から探す

お問い合わせ

物件に関してのお問い合わせ

「失敗しないオフィス移転サポート」物件探しから移転までスムーズで担当者様がとにかく楽になるサービスです。

050-7587-0049平日 9:00~18:00

メールでお問い合わせ

フリーワード検索