麹町HFビル(物件No:61986019)
麹町HFビルは、千代田区麹町にある貸事務所物件です。最寄り駅は、東京メトロ半蔵門線の半蔵門駅、東京メトロ有楽町線の麹町駅、JR中央・総武線の四ツ谷駅です。1994年竣工、2011年にリニューアル工事完了で、基準階が77.98坪の賃貸オフィスビルです。天高は2530mmで、床はOAフロアとなっております。空調は個別空調で、トイレは室外にあり、男女別です。機械警備で、エレベーターは2基あります。駐車場があり、複数路線利用可能な、アクセスの良い千代田区麹町の貸事務所です。
-
物件情報
-
設備情報
- トイレ
- 室外男女別
- 床
- フリーアクセス
- 空調
- 個別空調
- セキュリティ
- 有
- 駐車場
- 有
- 会議室
- -
- エレベーター
- 2基
- 天井高
- 2530mm
-
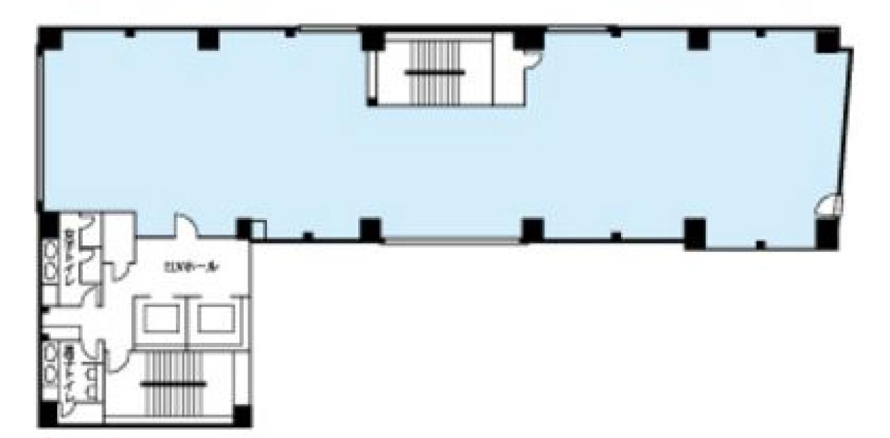
間取り図
-
近隣相場情報
麹町3丁目(50~100坪)の相場
20791 円 (坪)
※ビルサク調べ
周辺施設情報
| コンビニ |
ファミリーマート/麹町三丁目店/48m(徒歩1分) セブンイレブン/千代田区麹町4丁目/290m(徒歩3分) |
|---|---|
| 郵便局/銀行 |
三菱UFJ銀行/麹町中央支店/[営業時間]平日 9:00~15:00 土曜日 - 日曜日 - *祝日・休日および12月31日、1月1日~3日は営業いたしません。 [ATM]平日 7:00~24:00 土曜日 7:00~24:00 日・祝日 7:00~24:00 *毎月第2土曜日の21:00~翌朝7:00はご利用いただけません。/200m(徒歩2分) セブン銀行/千代田区麹町3丁目店/[営業時間]24時間営業 [ATM台数]1/220m(徒歩3分) |
| 飲食店 |
ロタ・フォルトゥーナ/11時30分~15時00分、17時30分~23時00分/78m(徒歩1分) すし居酒屋 リンダ/17時00分~0時00分/180m(徒歩2分) |
| カフェ |
スターバックス/麹町店/[営業時間]月~金: 06:30~21:00 土: 08:00~20:00 日祝: 08:00~19:00 [休業日]不定休 [備考]無線LAN:STARBUCKS/docomo/FLET’S(東)/Softbank/au/Wi2 300/68m(徒歩1分) エクセルシオール/カフェ 麹町3丁目店/[営業時間]平 日:07:00 - 22:00 土曜日:08:00 - 21:00 日 祝:08:00 - 20:00 [休業日]なし [備考]総席数:81 禁煙席:60 喫煙席:21/79m(徒歩1分) |
| コインパーキング |
タイムズ駐車場/TNS平河町1丁目 [料金] [月~土]通常料金 / 08:00-20:00 30分 400円 20:00-08:00 60分 100円 [日・祝]通常料金 / 08:00-20:00 30分 400円 20:00-08:00 60分 100円 [最大料金] [日・祝]当日1日最大料金1800円(24時迄) [台数]1 コインパーク/麹町3丁目 [料金] 【全日】 ■通常料金 【オールタイム(24時間)】20分400円 [最大料金] 【全日】 ■最大料金 【駐車後6時間以内(1回限り)】3200円 [台数][車: 2台] |
周辺地図
麹町HFビルは、千代田区麹町にある貸事務所物件です。最寄り駅は、東京メトロ半蔵門線の半蔵門駅、東京メトロ有楽町線の麹町駅、JR中央・総武線の四ツ谷駅です。1994年竣工、2011年にリニューアル工事完了で、基準階が77.98坪の賃貸オフィスビルです。天高は2530mmで、床はOAフロアとなっております。空調は個別空調で、トイレは室外にあり、男女別です。機械警備で、エレベーターは2基あります。駐車場があり、複数路線利用可能な、アクセスの良い千代田区麹町の貸事務所です。
全フロア情報
更新日:2022年5月12日
| 階 | 面積 | 賃料 | 共益費 | 敷金 | 入居日 | お問合せ | お気に入り | |
|---|---|---|---|---|---|---|---|---|
| 2F |
76.68 坪 253.49 ㎡ |
※現在空室情報はございません |
※現在空室情報は 確認する |
|||||
| 4F |
77.98 坪 257.78 ㎡ |
※現在空室情報はございません |
※現在空室情報は 確認する |
|||||
| 5F |
77.98 坪 257.78 ㎡ |
※現在空室情報はございません |
※現在空室情報は 確認する |
|||||
| 8F |
77.98 坪 257.78 ㎡ |
※現在空室情報はございません |
※現在空室情報は 確認する |
|||||
| 9F |
77.98 坪 257.78 ㎡ |
※現在空室情報はございません |
※現在空室情報は 確認する |
|||||
お問い合わせ
似た条件の物件はこちら
-
矢野ビル
東京都千代田区九段北1-12-30
坪数:70.81 坪
坪単価:12,000 円(坪)
-
白揚ビル
東京都千代田区二番町3-10
坪数:84.85 坪
坪単価:16,000 円(坪)
-
麹町シルクビル
東京都千代田区麹町3-5
坪数:62.08 坪
坪単価:14,800 円(坪)
-
麹町秀永ビル
東京都千代田区九段南4-3-13
坪数:63.03 坪
坪単価:15,000 円(坪)
-
紀尾井町アークビル
東京都千代田区紀尾井町3-29
坪数:91.79 坪
坪単価:16,000 円(坪)
-
VORT九段
東京都千代田区九段南3-7-14
坪数:63.54 坪
坪単価:8,000 円(坪)
-
塩崎ビル
東京都千代田区平河町2-7-1
坪数:69 坪
坪単価:21,000 円(坪)
-
紀尾井町ビル
東京都千代田区紀尾井町3-12
坪数:82.77 坪
坪単価:29,714 円(坪)
-
いちご半蔵門ビル
東京都千代田区隼町2-19
坪数:82.55 坪
坪単価:18,000 円(坪)
-
BIZIA麹町ビル
東京都千代田区麹町4-7-2
坪数:85.45 坪
坪単価:15,000 円(坪)