ウィンド恵比寿ビル(物件No:61981016)
ウィンド恵比寿ビルは渋谷区恵比寿西の8階建ての貸店舗物件です。最寄駅はJR線の恵比寿駅より徒歩6分、東急東横線の代官山駅より徒歩6分、東京メトロ日比谷線の恵比寿駅より徒歩6分です。1988年1月竣工の鉄骨鉄筋コンクリート造です。設備としてエレベーターが一基あります。機械警備もあります。空調は個別空調です。天高は2m40cmです。耐震性も新耐震基準をクリアした、複数路線利用可能な渋谷区恵比寿西の貸店舗です。
-
物件情報
-
設備情報
- トイレ
- 室内男女共用
- 床
- タイルカーペット
- 空調
- 個別空調
- セキュリティ
- 有
- 駐車場
- 無
- 会議室
- -
- エレベーター
- 1基
- 天井高
- -
-
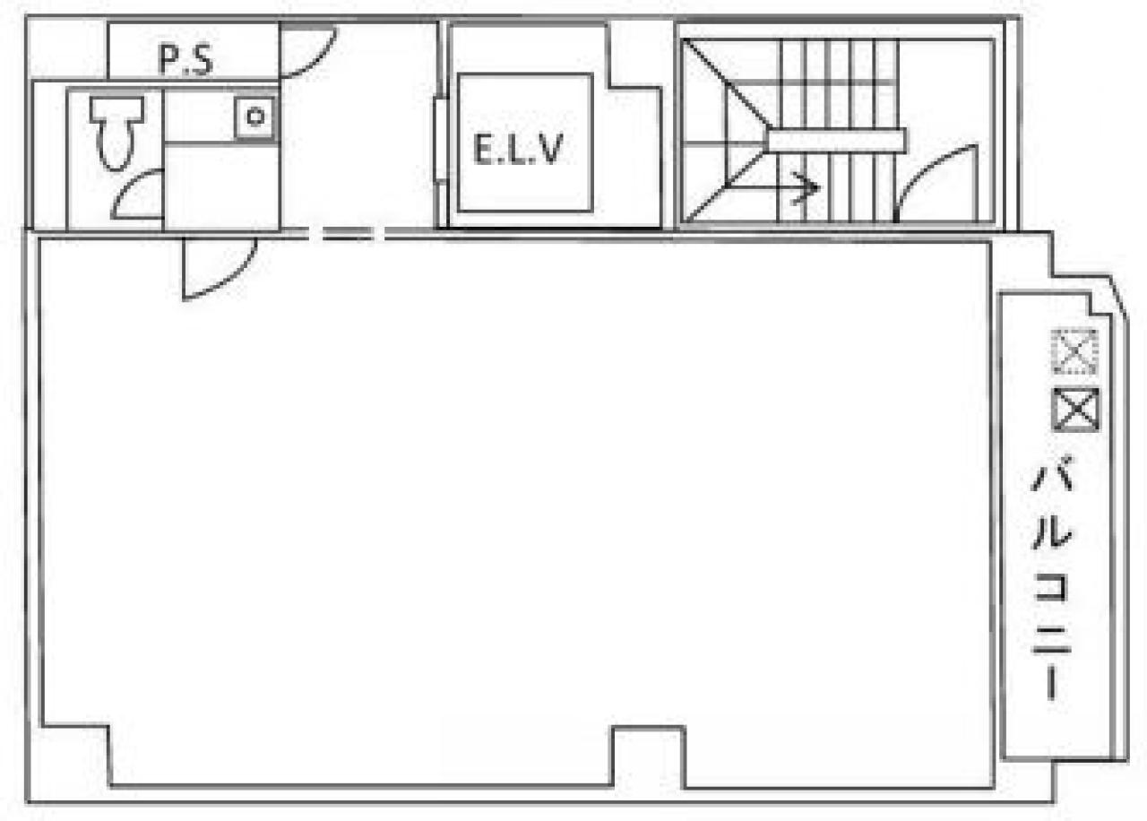
間取り図
-
近隣相場情報
恵比寿西2丁目(20~30坪)の相場
25164 円 (坪)
※ビルサク調べ
周辺施設情報
| コンビニ |
ローソン/恵比寿西二丁目/51m(徒歩1分) セブンイレブン/恵比寿駅北/200m(徒歩2分) |
|---|---|
| 郵便局/銀行 |
セブン銀行/渋谷東3丁目店/[営業時間]24時間営業 [ATM台数]1/220m(徒歩3分) ローソン銀行/ローソン銀行ATM NL 渋谷代官山共同出張所/[営業時間]24時間 [取扱]海外発行カード対応、視覚障害者対応 [備考]ご利用可能な金融機関 当店のATM管理はローソン銀行です/500m(徒歩7分) |
| 飲食店 |
串亭 恵比寿本店/17時00分~0時00分/61m(徒歩1分) 婁熊東京/17時00分~0時00分/150m(徒歩2分) |
| カフェ |
GARDEN HOUSE CRAFTS/8時30分~19時00分/240m(徒歩3分) ASYLUM/10時00分~18時00分/130m(徒歩2分) |
| コインパーキング |
東急ライファ/代官山コインパーキング [料金] 07:00~00:00 30分/400円 00:00~07:00 60分/100円 [最大料金] 駐車後6時間 2,500円(繰り返し適用) [台数]22台 ユアー・パーキング/恵比寿西第6 [料金] 【全日】 0時~24時 15分/300円 [最大料金] 夜間最大(24時~08時の間)400円 [台数]4 |
周辺地図
ウィンド恵比寿ビルは渋谷区恵比寿西の8階建ての貸店舗物件です。最寄駅はJR線の恵比寿駅より徒歩6分、東急東横線の代官山駅より徒歩6分、東京メトロ日比谷線の恵比寿駅より徒歩6分です。1988年1月竣工の鉄骨鉄筋コンクリート造です。設備としてエレベーターが一基あります。機械警備もあります。空調は個別空調です。天高は2m40cmです。耐震性も新耐震基準をクリアした、複数路線利用可能な渋谷区恵比寿西の貸店舗です。
全フロア情報
更新日:2026年2月12日
| 階 | 面積 | 賃料 | 共益費 | 敷金 | 入居日 | お問合せ | お気に入り | |
|---|---|---|---|---|---|---|---|---|
| 2F |
20.56 坪 67.97 ㎡ |
※現在空室情報はございません |
※現在空室情報は 確認する |
|||||
| 3F |
20.56 坪 67.97 ㎡ |
※現在空室情報はございません |
※現在空室情報は 確認する |
|||||
| 4F |
20.56 坪 67.97 ㎡ |
※現在空室情報はございません |
※現在空室情報は 確認する |
|||||
| 5F |
20.56 坪 67.97 ㎡ |
※現在空室情報はございません |
※現在空室情報は 確認する |
|||||
| 6F |
20.56 坪 67.97 ㎡ |
411,200 円 20,000 円(坪) |
61,680 円 3,000 円(坪) |
1,644,800 円 4 ヶ月 |
相談 |
|
|
|
| 7F |
20.56 坪 67.97 ㎡ |
※現在空室情報はございません |
※現在空室情報は 確認する |
|||||
| 8F |
20.56 坪 67.97 ㎡ |
※現在空室情報はございません |
※現在空室情報は 確認する |
|||||
お問い合わせ
似た条件の物件はこちら
-
プラザ恵比寿南
東京都渋谷区恵比寿南2-8-3
坪数:21.02 坪
坪単価:26,641 円(坪)
-
コマンドプロンプト広尾
東京都渋谷区広尾5-17-9
坪数:23.65 坪
坪単価:36,490 円(坪)
-
ウインズビル
東京都渋谷区恵比寿西2-7-2
坪数:19.81 坪
坪単価:18,021 円(坪)
-
センチュリーハウス広尾Part3
東京都渋谷区広尾5-3-2
坪数:17.41 坪
坪単価:11,488 円(坪)
-
プロフィットマート代官山
東京都渋谷区恵比寿西2-6-2
坪数:18.73 坪
坪単価:16,000 円(坪)
-
鈴円代官山ビル
東京都渋谷区猿楽町4-3
坪数:23.74 坪
坪単価:26,032 円(坪)
-
デリス第2ビル
東京都渋谷区恵比寿1-16-29
坪数:20.01 坪
坪単価:19,490 円(坪)
-
代官山コーポラス
東京都渋谷区猿楽町12-1
坪数:20.89 坪
坪単価:15,231 円(坪)
-
ゼネラルビル恵比寿西
東京都渋谷区恵比寿西1-16-3
坪数:22.08 坪
坪単価:23,551 円(坪)
-
レジデンス広尾
東京都渋谷区広尾3-5-27
坪数:22.54 坪
坪単価:16,327 円(坪)