青山花茂ビル(物件No:61889173)
青山花茂ビルは、港区北青山にある地下2階、地上9階建ての貸店舗事務所です。最寄駅は東京メトロ銀座線の表参道駅から徒歩2分、東京メトロ半蔵門線の表参道駅から徒歩2分です。1975年11月竣工の基準階面積が66坪の鉄筋コンクリート造です。設備としては、エレベーターが2基あり、駐車場があります。トイレは室内男女別です。空調は個別空調です。床仕様はタイルカーペットです。最寄駅から近くて便利な港区北青山の貸店舗事務所です。
-
物件情報
-
設備情報
- トイレ
- 室内男女別
- 床
- タイルカーペット
- 空調
- 個別空調
- セキュリティ
- 有
- 駐車場
- 有
- 会議室
- -
- エレベーター
- 2基
- 天井高
- -
-
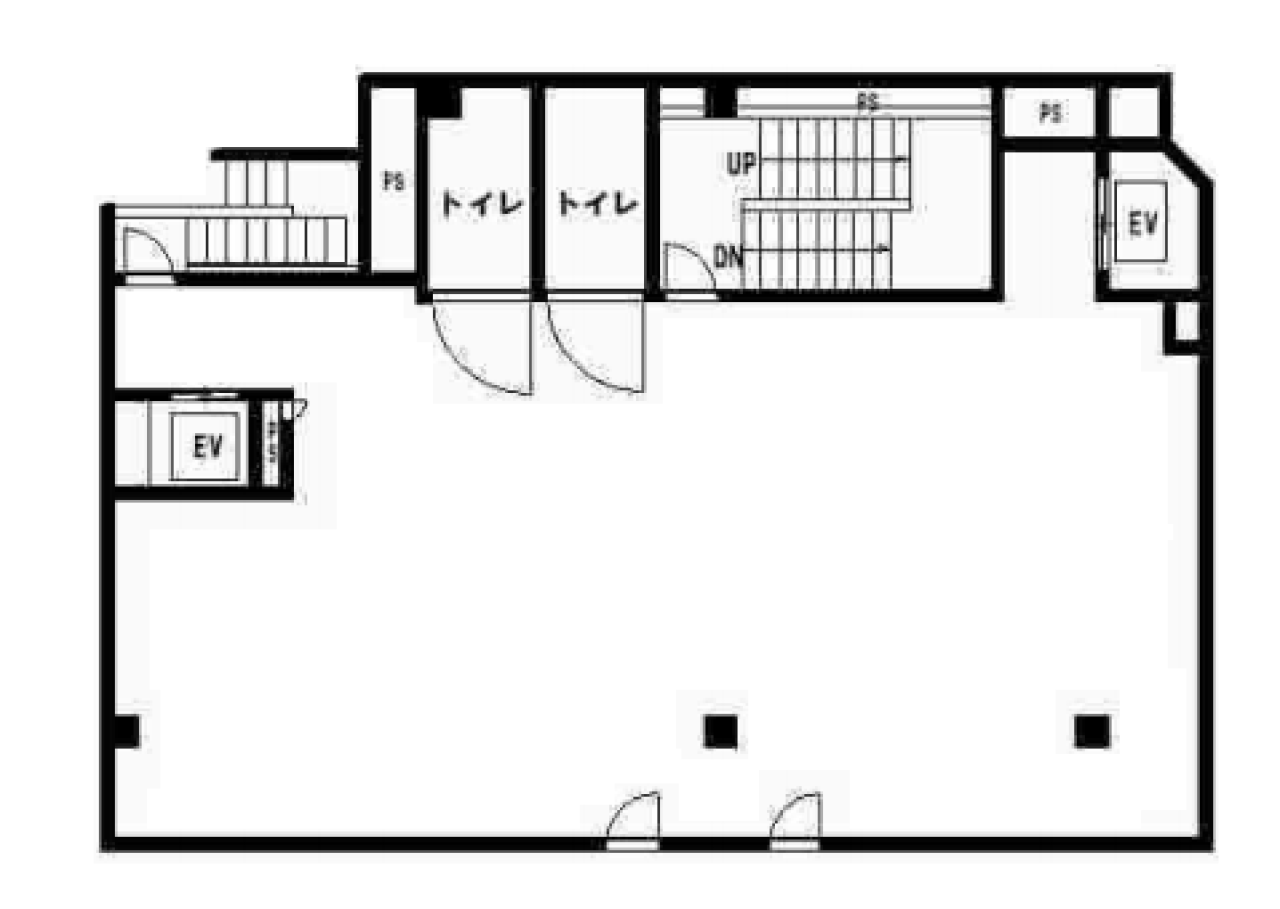
間取り図
-
近隣相場情報
北青山3丁目(50~100坪)の相場
24492 円 (坪)
※ビルサク調べ
周辺施設情報
| コンビニ |
セブンイレブン/港区北青山3丁目/250m(徒歩3分) ファミリーマート/南青山五丁目店/220m(徒歩3分) |
|---|---|
| 郵便局/銀行 |
みずほ銀行/ATM 青山学院大学前出張所/[営業時間]ATM 平日 /Monday - Friday 8:00~21:00 土曜日/Saturday 8:00~21:00 日曜日/Sunday 8:00~21:00 祝日・振替休日 /Public Holidays 8:00~21:00 備考 *設置施設の休業日・休業時間帯は、一般のお客さま/130m(徒歩2分) 郵便局/渋谷青山通/平日 10:00~18:00 土曜日 お取り扱いしません 日曜日・休日 お取り扱いしません [ATM]平日 8:00-20:00 土曜 9:00-19:00 日曜・祝日 9:00-18:00/130m(徒歩2分) |
| 飲食店 |
ひごの屋 青山本店/17時00分~23時45分/87m(徒歩1分) 大かまど飯寅福 青山本店/11時30分~15時00分、17時30分~23時30分/ |
| カフェ |
ブレンズコーヒー/青山花茂店/[営業時間]月~金 07:30 - 22:30 土曜日 08:00 - 22:30 日・祝 10:00 - 21:00/5m(徒歩1分) パリヤ/11時30分~23時00分/57m(徒歩1分) |
| コインパーキング |
コインパーク/北青山3丁目 [料金] 【 全日 】 ■通常料金 【 オールタイム 】 20分/400円 [最大料金] 【 全日 】 ■最大料金 【 駐車後3時間以内(1回限り) 】 2800円 【 全日 】 ■最大料金 【00:00~8:00】500円 [台数][車: 4台] 三井のリパーク/北青山3丁目第4 [料金] 全日 08:00~22:00 15分/300円 全日 22:00~08:00 60分/200円 [最大料金] 【全日】最大料金入庫後4時間以内2800円 [台数]4 |
周辺地図
青山花茂ビルは、港区北青山にある地下2階、地上9階建ての貸店舗事務所です。最寄駅は東京メトロ銀座線の表参道駅から徒歩2分、東京メトロ半蔵門線の表参道駅から徒歩2分です。1975年11月竣工の基準階面積が66坪の鉄筋コンクリート造です。設備としては、エレベーターが2基あり、駐車場があります。トイレは室内男女別です。空調は個別空調です。床仕様はタイルカーペットです。最寄駅から近くて便利な港区北青山の貸店舗事務所です。
全フロア情報
更新日:2021年2月17日
| 階 | 面積 | 賃料 | 共益費 | 敷金 | 入居日 | お問合せ | お気に入り | |
|---|---|---|---|---|---|---|---|---|
| 5F |
66.38 坪 219.44 ㎡ |
※現在空室情報はございません |
※現在空室情報は 確認する |
|||||
| 6F |
66.38 坪 219.44 ㎡ |
※現在空室情報はございません |
※現在空室情報は 確認する |
|||||
| 8F |
59.46 坪 196.56 ㎡ |
※現在空室情報はございません |
※現在空室情報は 確認する |
|||||
お問い合わせ
似た条件の物件はこちら
-
NH青山ビル
東京都港区北青山3-2-5
坪数:67.1 坪
坪単価:22,000 円(坪)
-
Landwork青山ビル
東京都港区北青山2-7-26
坪数:51.6 坪
坪単価:27,273 円(坪)
-
GOODWILL青山
東京都港区南青山2-4-16
坪数:59.42 坪
坪単価:23,000 円(坪)
-
リビエラ南青山ビル
東京都港区南青山3-3-3
坪数:67.32 坪
坪単価:30,000 円(坪)
-
神宮外苑ビル
東京都港区北青山2-7-25
坪数:73.69 坪
坪単価:19,000 円(坪)
-
青山FSビル
東京都港区南青山3-4-16
坪数:53.46 坪
坪単価:25,253 円(坪)
-
青山KYビル
東京都港区北青山2-12-13
坪数:54.61 坪
坪単価:19,000 円(坪)
-
青山SGKビル
東京都港区南青山2-7-6
坪数:57.63 坪
坪単価:16,500 円(坪)
-
ユニマット外苑ビル
東京都港区南青山2-12-15
坪数:51.42 坪
坪単価:22,170 円(坪)
-
マトリス
東京都港区南青山2-13-7
坪数:62.2 坪
坪単価:22,990 円(坪)