銀座あづまビル(物件No:61885171)
銀座あづまビルは、中央区銀座にある貸事務所物件で、最寄り駅は地下鉄各線の銀座駅と東銀座駅です。1983年竣工の物件で、1フロア62.72坪の賃貸オフィスビルです。エレベーターは1基、セキュリティは機械警備です。床はOAフロアで、トイレは男女別、個別空調があります。どちらの最寄駅からも徒歩約3分でアクセス可能な中央区銀座の貸事務所です。
| 階 | 面積 | 賃料 | 共益費 | 敷金 | 入居日 | お問合せ | お気に入り |
|---|---|---|---|---|---|---|---|
|
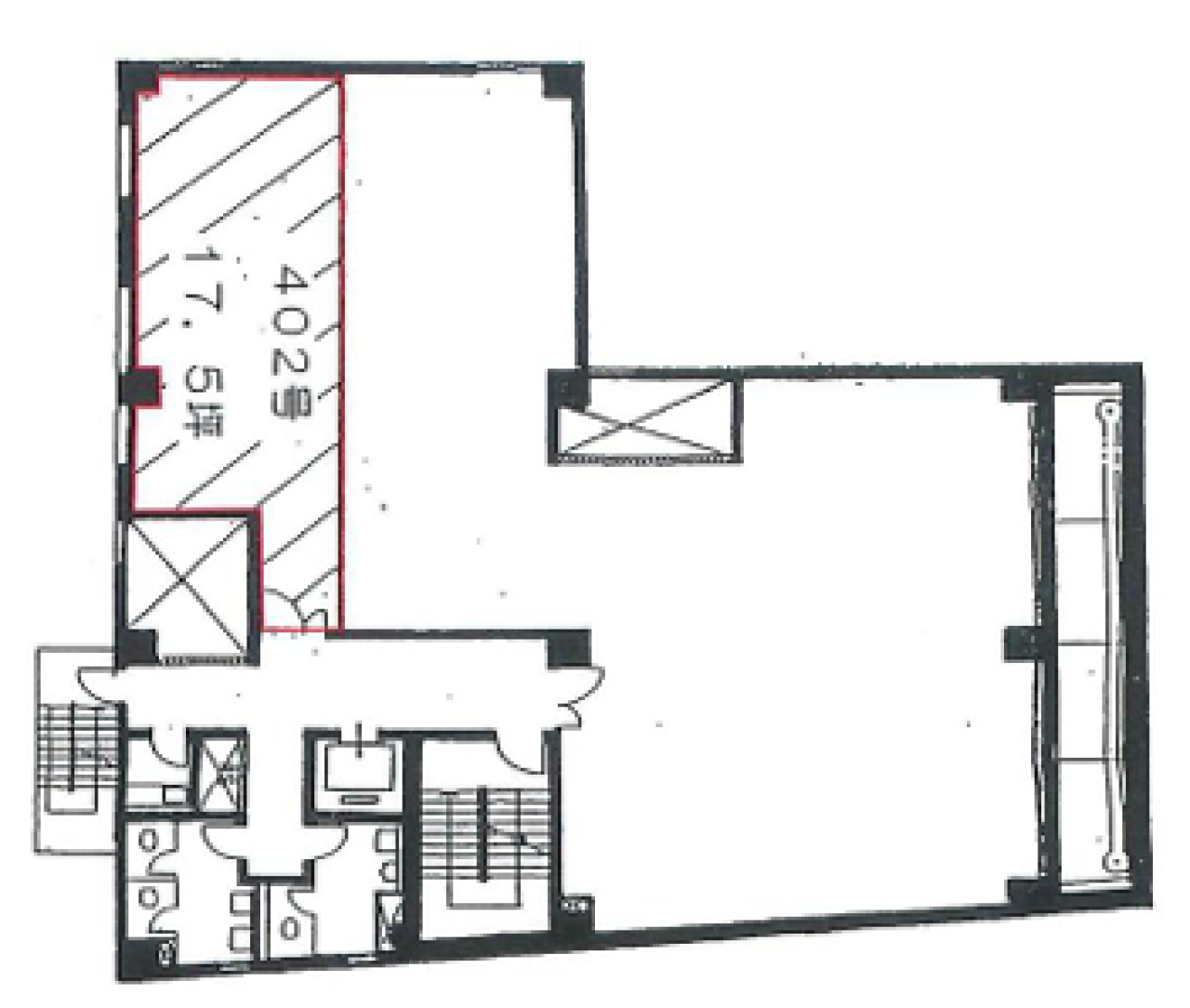
4F
(402区画) |
17.5 坪 57.85 ㎡ |
437,500 円 25,000 円(坪) |
70,000 円 4,000 円(坪) |
4,375,000 円 10 ヶ月 |
相談 |
|
|
| 階 | 面積 | 賃料 | 共益費 | 敷金 | 入居日 | お問合せ | お気に入り |
|---|---|---|---|---|---|---|---|
|
4F
(402区画) |
17.5 坪 57.85 ㎡ |
437,500 円 25,000 円(坪) |
70,000 円 4,000 円(坪) |
4,375,000 円 10 ヶ月 |
相談 |
|
|
-
物件情報
-
設備情報
- トイレ
- 男女別
- 床
- フリーアクセス
- 空調
- 個別空調
- セキュリティ
- 有
- 駐車場
- -
- 会議室
- -
- エレベーター
- 1基
- 天井高
- 2400mm
-
間取り図
-
近隣相場情報
銀座5丁目(20坪以下)の相場
26500 円 (坪)
※ビルサク調べ
周辺施設情報
| コンビニ |
ミニストップ/ピーアーク銀座店/160m(徒歩2分) ファミリーマート/銀座みゆき通り店/80m(徒歩1分) |
|---|---|
| 郵便局/銀行 |
郵便局/ATM ファミリーマート銀座みゆき通り店内出張所/[駐車場]なし [取扱]ATM/カードATM/80m(徒歩1分) みずほ銀行/銀座通支店/[営業時間] [窓口]平日9:00~15:00 [ATM]平日 6:00~26:00 土曜日 8:00~22:00 日曜日 8:00~21:00/130m(徒歩2分) |
| 飲食店 |
あなご 燗酒 はかりめ/12時00分~14時30分 17時30分~23時30分/26m(徒歩1分) 松尾ジンギスカン 銀座店/11時30分~15時00分 17時00分~23時30分/30m(徒歩1分) |
| カフェ |
春水堂/銀座店/[営業時間]11:00~21:00 ラストオーダー [フード] 20:30 [ドリンク] 20:45/110m(徒歩1分) 幸せのパンケーキ/銀座店/[営業時間]平日 10:30~20:30(LO19:40)土日祝 10:00~20:30(LO19:40)/120m(徒歩1分) |
| コインパーキング |
タイムズ駐車場/銀座コア [料金] [全日]通常料金 / 8:00~23:30 30分 300円 23:30~8:00 30分 300円 [最大料金] [全日]駐車後12時間 最大料金1500円 [台数]40 NPD/クロス銀座パーキング [料金] [営業時間]平日 7:00 ~ 23:00 土曜日 7:00 ~ 23:00 日祝 9:00 ~ 23:00 [最大料金] 宿泊料金 1500円 [備考]屋内 |
周辺地図
銀座あづまビルは、中央区銀座にある貸事務所物件で、最寄り駅は地下鉄各線の銀座駅と東銀座駅です。1983年竣工の物件で、1フロア62.72坪の賃貸オフィスビルです。エレベーターは1基、セキュリティは機械警備です。床はOAフロアで、トイレは男女別、個別空調があります。どちらの最寄駅からも徒歩約3分でアクセス可能な中央区銀座の貸事務所です。
全フロア情報
更新日:2026年2月12日
| 階 | 面積 | 賃料 | 共益費 | 敷金 | 入居日 | お問合せ | お気に入り | |
|---|---|---|---|---|---|---|---|---|
|
B1F
(104区画) |
18.71 坪 61.85 ㎡ |
※現在空室情報はございません |
※現在空室情報は 確認する |
|||||
|
1F
(103区画) |
9.56 坪 31.6 ㎡ |
※現在空室情報はございません |
※現在空室情報は 確認する |
|||||
| 2F |
14.34 坪 47.4 ㎡ |
※現在空室情報はございません |
※現在空室情報は 確認する |
|||||
|
3F
(302区画) |
50.22 坪 166.02 ㎡ |
※現在空室情報はございません |
※現在空室情報は 確認する |
|||||
|
4F
(402区画) |
17.5 坪 57.85 ㎡ |
437,500 円 25,000 円(坪) |
70,000 円 4,000 円(坪) |
4,375,000 円 10 ヶ月 |
相談 |
|
|
|
|
5F
(501区画) |
70.86 坪 234.25 ㎡ |
1,771,500 円 25,000 円(坪) |
230,031 円 3,246 円(坪) |
5,314,500 円 3 ヶ月 |
相談 |
|
|
|
| 6F |
61.93 坪 204.73 ㎡ |
※現在空室情報はございません |
※現在空室情報は 確認する |
|||||
お問い合わせ
似た条件の物件はこちら
-
SRビル
東京都中央区銀座8-12-3
坪数:19.16 坪
坪単価:20,000 円(坪)
-
片桐ビルⅤ
東京都中央区銀座3-14-8
坪数:13.63 坪
坪単価:1,834 円(坪)
-
銀座秀芳ビル
東京都中央区銀座7-10-18
坪数:21.58 坪
坪単価:24,004 円(坪)
-
楠本第17ビル
東京都中央区銀座1-14-12
坪数:14.45 坪
坪単価:25,000 円(坪)
-
日本聖書協会ビル(聖書館ビル)
東京都中央区銀座4-5-1
坪数:13.00 坪
坪単価:25,500 円(坪)
-
三福ビル
東京都中央区銀座4-8-2
坪数:17.50 坪
坪単価:22,000 円(坪)
-
銀座藤ビル
東京都中央区銀座2-12-10
坪数:15.8 坪
坪単価:21,000 円(坪)
-
東銀1ビル
東京都中央区銀座3-10-14
坪数:22 坪
坪単価:19,000 円(坪)
-
中島商事ビル
東京都中央区銀座8-5-6
坪数:21 坪
坪単価:27,000 円(坪)
-
白鳥ビル
東京都中央区銀座3-14-2
坪数:18 坪
坪単価:15,000 円(坪)