秋葉原ダイビル(物件No:61783067)
秋葉原ダイビルは、千代田区外神田にある貸事務所物件です。最寄り駅は東京メトロ日比谷線、JR秋葉原駅と銀座線末広町駅です。2005年竣工で基準階が349坪の賃貸オフィスビルです。床はOAフロアで、天井の高さは2800mm。トイレは室外男女別で、空調はセントラル空調です。エレベーターは5基あり、セキュリティは機械警備となっています。駐車場、貸会議室が利用可能です。秋葉原駅周辺には様々な店舗が立ち並んでおり、電車の乗り換えもしやすく、利便性の高い千代田区外神田の貸事務所です。
-
物件情報
-
設備情報
- トイレ
- 室外男女別
- 床
- フリーアクセス
- 空調
- 個別空調
- セキュリティ
- 有
- 駐車場
- 有
- 会議室
- 有
- エレベーター
- 5基
- 天井高
- 2800mm
-
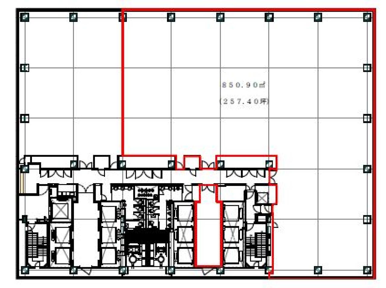
間取り図
-
近隣相場情報
外神田1丁目(100坪以上)の相場
26333 円 (坪)
※ビルサク調べ
周辺施設情報
| コンビニ |
ファミリーマート/秋葉原昭和通り店/400m(徒歩5分) ローソン/神田明神/300m(徒歩4分) |
|---|---|
| 郵便局/銀行 |
ビューアルッテ/JR秋葉原駅電気街口改札外/[営業時間]全日/4:30~25:00※毎月第二土曜日23:00~翌日8:00はご利用になれません。※駅や店舗の営業時間により、ATM営業時間が変更となる場合があります [取扱]お引出し・残高照会のみ/150m(徒歩2分) 郵便局/秋葉原UDX内/[駐車場]なし [取扱]郵便/貯金/保険/ATM/130m(徒歩2分) |
| 飲食店 |
大戸屋ごはん処 秋葉原店/11時00分~23時00分/87m(徒歩1分) ザ・ローズ&クラウン 秋葉原店/11時00分~22時00分/120m(徒歩2分) |
| カフェ |
ベックス/秋葉原電気街口店/[営業時間]平日/6:30~22:30 土日祝/6:45~21:30 [備考]座席数 66席/喫煙席 あり(36(加熱式タバコのみ)席)/Wi-Fi あり/電源(コンセント)なし/160m(徒歩2分) エクセルシオール/カフェ 秋葉原ダイビル店/[営業時間]平日 7:30~21:00 土曜 8:00~21:00 日祝 8:00~21:00 [備考]総席数:88(禁煙席:88 喫煙席:0)/全席禁煙/92m(徒歩1分) |
| コインパーキング |
トラストパーク/【ネットのみ予約可】大東ビル [料金] 20分300円 [最大料金] <平日> (08:00~21:00)最大1500円 <土日祝> (08:00~21:00)最大2000円 【宿泊料金】 (21:00~08:00)最大1000円 [台数]55台 PEN/秋葉原ダイビル [料金] 【全日】 300円 / 30分 [最大料金] 【24時間最大料金】 月~金 2000円 【24時間最大料金】 土日祝 3000円 [営業時間]24時間営業 |
周辺地図
秋葉原ダイビルは、千代田区外神田にある貸事務所物件です。最寄り駅は東京メトロ日比谷線、JR秋葉原駅と銀座線末広町駅です。2005年竣工で基準階が349坪の賃貸オフィスビルです。床はOAフロアで、天井の高さは2800mm。トイレは室外男女別で、空調はセントラル空調です。エレベーターは5基あり、セキュリティは機械警備となっています。駐車場、貸会議室が利用可能です。秋葉原駅周辺には様々な店舗が立ち並んでおり、電車の乗り換えもしやすく、利便性の高い千代田区外神田の貸事務所です。
全フロア情報
更新日:2026年3月10日
| 階 | 面積 | 賃料 | 共益費 | 敷金 | 入居日 | お問合せ | お気に入り | |
|---|---|---|---|---|---|---|---|---|
| 6F |
173.52 坪 573.62 ㎡ |
※現在空室情報はございません |
※現在空室情報は 確認する |
|||||
| 8F |
49.76 坪 164.5 ㎡ |
※現在空室情報はございません |
※現在空室情報は 確認する |
|||||
|
8F
(1区画) |
73.05 坪 241.49 ㎡ |
※現在空室情報はございません |
※現在空室情報は 確認する |
|||||
|
8F
(802区画) |
73.05 坪 241.49 ㎡ |
※現在空室情報はございません |
※現在空室情報は 確認する |
|||||
|
8F
(803区画) |
114.24 坪 377.65 ㎡ |
相談 |
相談 |
相談 |
2026/10 |
|
|
|
| 9F |
335.92 坪 1110.48 ㎡ |
※現在空室情報はございません |
※現在空室情報は 確認する |
|||||
|
9F
(901区画) |
78.52 坪 259.57 ㎡ |
※現在空室情報はございません |
※現在空室情報は 確認する |
|||||
| 10F |
335.92 坪 1110.48 ㎡ |
※現在空室情報はございません |
※現在空室情報は 確認する |
|||||
|
11F
(1区画) |
257.4 坪 850.91 ㎡ |
※現在空室情報はございません |
※現在空室情報は 確認する |
|||||
|
12F
(1202区画) |
108.77 坪 359.57 ㎡ |
※現在空室情報はございません |
※現在空室情報は 確認する |
|||||
| 13F |
198.12 坪 654.94 ㎡ |
※現在空室情報はございません |
※現在空室情報は 確認する |
|||||
|
13F
(1区画) |
119.6 坪 395.37 ㎡ |
※現在空室情報はございません |
※現在空室情報は 確認する |
|||||
|
13F
(1303区画) |
80.2 坪 265.12 ㎡ |
※現在空室情報はございません |
※現在空室情報は 確認する |
|||||
| 14F |
335.92 坪 1110.48 ㎡ |
※現在空室情報はございません |
※現在空室情報は 確認する |
|||||
| 15F |
335.92 坪 1110.48 ㎡ |
※現在空室情報はございません |
※現在空室情報は 確認する |
|||||
| 16F |
335.92 坪 1110.48 ㎡ |
※現在空室情報はございません |
※現在空室情報は 確認する |
|||||
お問い合わせ
似た条件の物件はこちら
関連エリアから探す
- 内神田
- 神田淡路町
- 神田小川町
- 神田鍛冶町
- 神田須田町
- 神田駿河台
- 神田多町
- 神田司町
- 神田錦町
- 神田美土代町
- 岩本町
- 鍛冶町
- 神田岩本町
- 神田北乗物町
- 神田紺屋町
- 神田富山町
- 神田西福田町
- 神田東松下町
- 神田東紺屋町
- 神田美倉町
- 東神田
- 神田相生町
- 神田和泉町
- 神田佐久間町
- 神田佐久間河岸
- 神田練塀町
- 神田花岡町
- 神田松永町
- 外神田
- 神田平河町