大成ビル(物件No:61686027)
大成ビルは、渋谷区笹塚にある貸事務所物件です。最寄り駅は、京王線の笹塚駅、代田橋駅、幡ヶ谷駅、小田急小田原線の東北沢駅、東京メトロ丸ノ内線の方南町駅です。1989年竣工で、基準階が22.43坪の賃貸オフィスビルです。空調は個別空調で、トイレは室外にあります。エレベーターは1基あります。新耐震基準に適合している、アクセスの良い渋谷区笹塚の貸事務所です。
-
物件情報
-
設備情報
- トイレ
- 室外
- 床
- -
- 空調
- -
- セキュリティ
- -
- 駐車場
- -
- 会議室
- -
- エレベーター
- 1基
- 天井高
- -
-
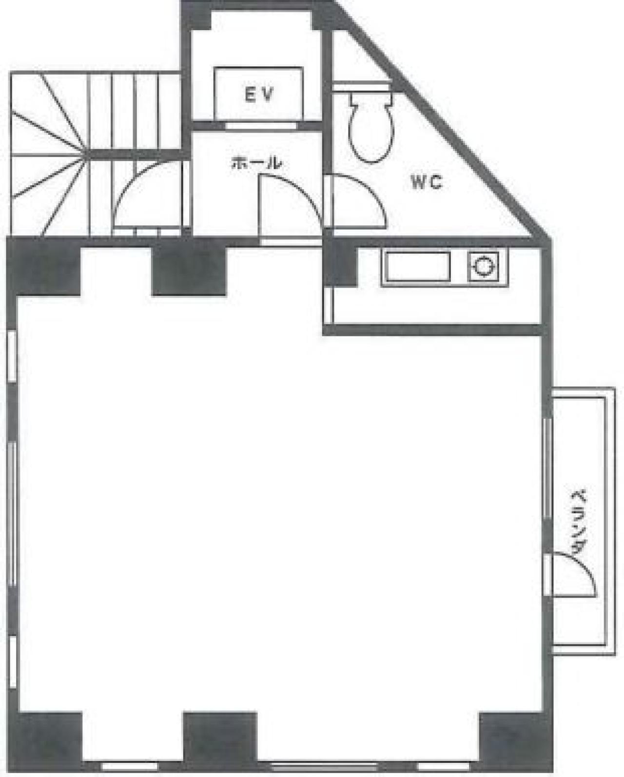
間取り図
-
近隣相場情報
笹塚2丁目(20~30坪)の相場
17000 円 (坪)
※ビルサク調べ
周辺施設情報
| コンビニ |
まいばすけっと/笹塚駅南店/500m(徒歩7分) ローソン/LTF笹塚三丁目/350m(徒歩5分) |
|---|---|
| 郵便局/銀行 |
セブン銀行/フレンテ笹塚/[営業時間]10:00~21:00 [備考]1 台/300m(徒歩5分) みずほ銀行/ATM 笹塚駅南口出張所/[営業時間] [ATM]平日 0:00~24:00 土曜日 0:00~22:00 日曜日 8:00~21:00 祝日・振替休日 曜日に準ずる 備考 *月曜日の0:00~7:00はご利用いただけません。*第1・第4土曜日の3:00~5:00はご利用いただけません/300m(徒歩4分) |
| 飲食店 |
大阪焼肉・ホルモン ふたご 笹塚店/17時00分~23時00分/240m(徒歩4分) 濃厚タンメン濃厚担々麺/230m(徒歩3分) |
| カフェ |
尽茶里/11時30分~20時00分/450m(徒歩5分) 椿屋珈琲/椿屋カフェ フレンテ笹塚店/[営業時間]10:00~22:00(ラストオーダー21:30)※【営業時間の変更について】新型コロナウィルス感染症対策に伴い、お客様および従業員の安全確保のため 休業もしくは営業時間を短縮させて頂いております。詳しくは、当社のトップページをご覧くださいませ/350m(徒歩5分) |
| コインパーキング |
コインパーク/笹塚1丁目第3 [料金] 【月~土】■通常料金【0:00~24:00】15分200円 【日・祝】■通常料金【0:00~24:00】15分200円 [最大料金] 【月~土】■最大料金【駐車後12時間以内(1回限り)】2800円【19:00~8:00】1000円 【日・祝】■最大料金【駐車後12時間以内(1回限り)】2400円【19:00~8:00】1000円 [台数] [車: 3台] パークジャパン/渋谷笹塚第1 [料金] 8:00~24:00 300円/15分 24:00~8:00 100円/60分 [台数]1台 |
周辺地図
大成ビルは、渋谷区笹塚にある貸事務所物件です。最寄り駅は、京王線の笹塚駅、代田橋駅、幡ヶ谷駅、小田急小田原線の東北沢駅、東京メトロ丸ノ内線の方南町駅です。1989年竣工で、基準階が22.43坪の賃貸オフィスビルです。空調は個別空調で、トイレは室外にあります。エレベーターは1基あります。新耐震基準に適合している、アクセスの良い渋谷区笹塚の貸事務所です。
全フロア情報
更新日:2025年12月9日
| 階 | 面積 | 賃料 | 共益費 | 敷金 | 入居日 | お問合せ | お気に入り | |
|---|---|---|---|---|---|---|---|---|
|
3F
(301区画) |
22.43 坪 74.15 ㎡ |
※現在空室情報はございません |
※現在空室情報は 確認する |
|||||
| 4F |
22.43 坪 74.15 ㎡ |
※現在空室情報はございません |
※現在空室情報は 確認する |
|||||
| 5F |
22.43 坪 74.15 ㎡ |
※現在空室情報はございません |
※現在空室情報は 確認する |
|||||
| 8F |
22.43 坪 74.15 ㎡ |
※現在空室情報はございません |
※現在空室情報は 確認する |
|||||
お問い合わせ
似た条件の物件はこちら
-
シュバルマラン
東京都渋谷区富ヶ谷2-2-9
坪数:18.3 坪
坪単価:13,500 円(坪)
-
代々木公園セントウエストテラス
東京都渋谷区上原1-1-8
坪数:25.55 坪
坪単価:14,090 円(坪)
-
メティス笹塚ビルディング
東京都渋谷区笹塚1-59-6
坪数:20.57 坪
坪単価:17,000 円(坪)
-
内藤ビル
東京都渋谷区上原1-36-12
坪数:21.72 坪
坪単価:18,416 円(坪)
-
ネオーバビル
東京都渋谷区富ヶ谷2-2-5
坪数:18.49 坪
坪単価:14,062 円(坪)
-
スプリングビル
東京都渋谷区富ヶ谷1-45-13
坪数:19.02 坪
坪単価:18,507 円(坪)
-
ラビアンヌビル
東京都渋谷区神山町6-4
坪数:26 坪
坪単価:23,077 円(坪)
-
初台ロイヤルマンション
東京都渋谷区初台2-27-5
坪数:17.64 坪
坪単価:8,503 円(坪)
-
ブランエール代々幡
東京都渋谷区西原2-35-1
坪数:23.41 坪
坪単価:19,091 円(坪)
-
清水橋矢部ビル
東京都渋谷区本町3-10-3
坪数:17.73 坪
坪単価:11,844 円(坪)