インテックス恵比寿(物件No:61589085)
インテックス恵比寿は渋谷区恵比寿南の8階建ての賃貸事務所物件です。最寄駅は東京メトロ日比谷線の恵比寿駅より徒歩1分、JR線の恵比寿駅より徒歩4分、東急東横線の代官山駅より徒歩5分です。1990年3月竣工の鉄骨鉄筋コンクリート造で、基準階面積は54.52坪です。設備としてはエレベーターが1基あり、室内に男女別のトイレがあります。空調は個別空調です。床はフリーアクセスです。耐震性も新耐震基準をクリアした、最寄駅へのアクセスが大変便利な渋谷区恵比寿南の賃貸オフィス物件です。
-
物件情報
-
設備情報
- トイレ
- 室内男女別
- 床
- 3WAY
- 空調
- 個別空調
- セキュリティ
- 有
- 駐車場
- 無
- 会議室
- -
- エレベーター
- 1基
- 天井高
- 2700mm
-
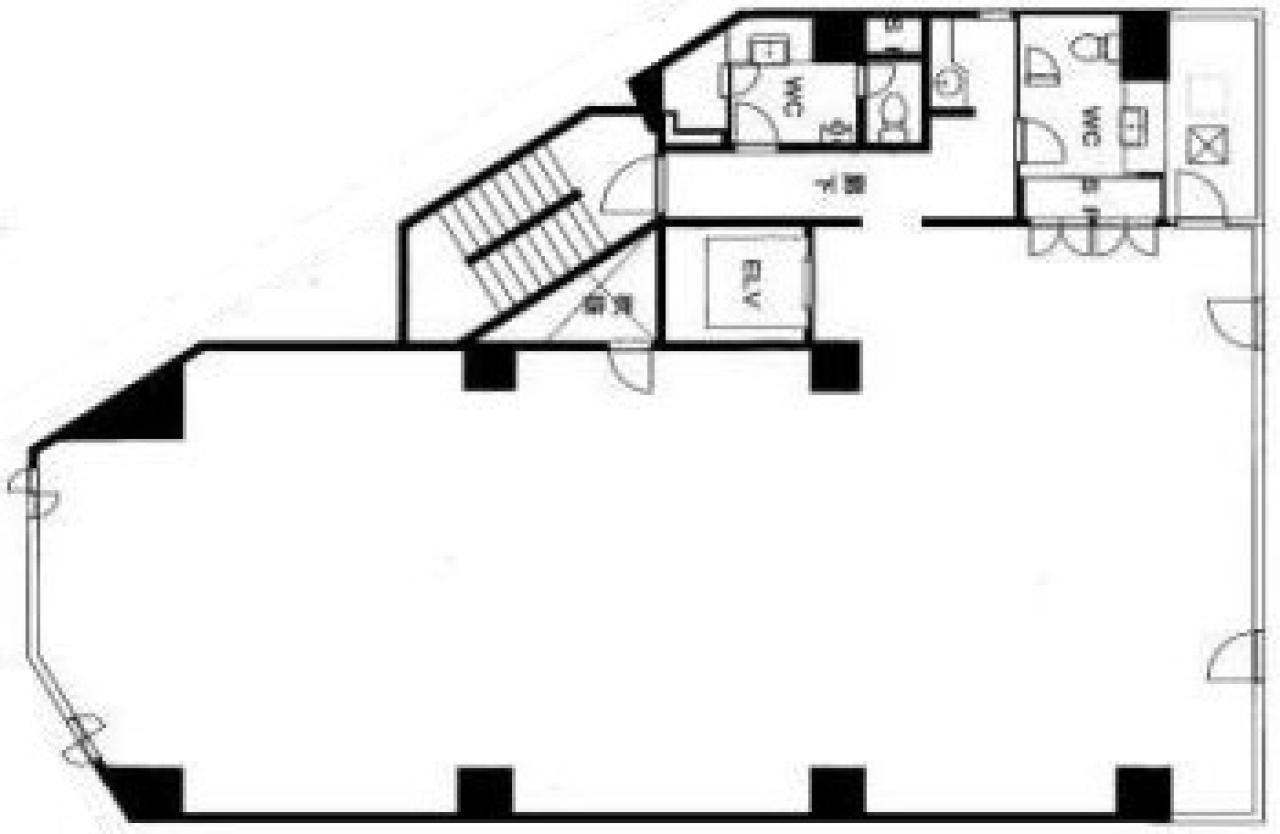
間取り図
-
近隣相場情報
恵比寿南2丁目(50~100坪)の相場
29455 円 (坪)
※ビルサク調べ
周辺施設情報
| コンビニ |
ファミリーマート/恵比寿西口店/400m(徒歩5分) ローソン/恵比寿南一丁目/300m(徒歩3分) |
|---|---|
| 郵便局/銀行 |
ゆうちょ/恵比寿駅ビル内郵便局/[営業時間] [窓口]平日 10:00~17:00 土曜日 - 日曜日・休日 - [ATM]平日 10:00~21:00 土曜日 10:00~21:00 日曜日・休日 10:00~19:00 [駐車場]なし [取扱]郵便/貯金/保険/ATM [備考]現在、ATMのお取扱時間を、10:00~20:00/350m(徒歩5分) みずほ銀行/ATM ピーコックストア恵比寿店出張所/[営業時間] [ATM]平日 10:00~23:00 土曜日 10:00~22:00 日曜日 10:00~23:00 祝日・振替休日 曜日に準ずる/300m(徒歩4分) |
| 飲食店 |
つけ麺専門店 三田製麺所 恵比寿南店/10時30分~2時00分/62m(徒歩1分) えびす堂/17時30分~0時00分/15m(徒歩1分) |
| カフェ |
代官山 BEAUTIFUL SMOKERS/13時00分~20時00分/400m(徒歩5分) H&N style -420cafe-/100m(徒歩1分) |
| コインパーキング |
PARKS PARK/渋谷区恵比寿南3丁目 [料金] 【昼間】 8:00~22:00 200円 / 15分 【夜間】 22:00~8:00 100円 / 60分 [最大料金] 【12時間最大料金】 全日 2200円 (繰り返し可) [営業時間]24時間営業 三井のリパーク/恵比寿南2丁目第2 [料金] 全日 08:00~00:00 10分/500円 全日 00:00~08:00 25分/100円 [最大料金] 【全日】0:00~8:00以内 最大料金800円 [台数]4 |
周辺地図
インテックス恵比寿は渋谷区恵比寿南の8階建ての賃貸事務所物件です。最寄駅は東京メトロ日比谷線の恵比寿駅より徒歩1分、JR線の恵比寿駅より徒歩4分、東急東横線の代官山駅より徒歩5分です。1990年3月竣工の鉄骨鉄筋コンクリート造で、基準階面積は54.52坪です。設備としてはエレベーターが1基あり、室内に男女別のトイレがあります。空調は個別空調です。床はフリーアクセスです。耐震性も新耐震基準をクリアした、最寄駅へのアクセスが大変便利な渋谷区恵比寿南の賃貸オフィス物件です。
全フロア情報
更新日:2026年1月27日
| 階 | 面積 | 賃料 | 共益費 | 敷金 | 入居日 | お問合せ | お気に入り | |
|---|---|---|---|---|---|---|---|---|
|
1-2F
(1区画) |
84.45 坪 279.17 ㎡ |
2,617,950 円 31,000 円(坪) |
無 |
31,415,400 円 12 ヶ月 |
2026/06/01 |
|
|
|
|
2F
(1区画) |
50.44 坪 166.74 ㎡ |
※現在空室情報はございません |
※現在空室情報は 確認する |
|||||
|
3F
(1区画) |
54.52 坪 180.23 ㎡ |
※現在空室情報はございません |
※現在空室情報は 確認する |
|||||
| 4F |
54.51 坪 180.2 ㎡ |
※現在空室情報はございません |
※現在空室情報は 確認する |
|||||
| 6F |
54.52 坪 180.23 ㎡ |
※現在空室情報はございません |
※現在空室情報は 確認する |
|||||
| 7F |
54.52 坪 180.23 ㎡ |
※現在空室情報はございません |
※現在空室情報は 確認する |
|||||
お問い合わせ
似た条件の物件はこちら
-
越山LKビル
東京都渋谷区広尾1-10-4
坪数:68.35 坪
坪単価:25,000 円(坪)
-
CATビル
東京都渋谷区恵比寿西2-3-16
坪数:57.21 坪
坪単価:22,727 円(坪)
-
Planex Wattビル
東京都渋谷区恵比寿南1-16-13
坪数:51.84 坪
坪単価:27,273 円(坪)
-
シャトレ代官山アネックス
東京都渋谷区代官山町2-6
坪数:47.96 坪
坪単価:17,723 円(坪)
-
三恵51ビル
東京都渋谷区恵比寿1-11-2
坪数:48.68 坪
坪単価:27,000 円(坪)
-
WARNERビル
東京都渋谷区恵比寿3-36-3
坪数:41.25 坪
坪単価:26,446 円(坪)
-
恵比寿幸和ビル
東京都渋谷区恵比寿1-22-20
坪数:58.58 坪
坪単価:20,000 円(坪)
-
日進ヒルズ代官山
東京都渋谷区代官山町11-12
坪数:52.04 坪
坪単価:18,832 円(坪)
-
バルビゾン22
東京都渋谷区広尾5-8-11
坪数:39.2 坪
坪単価:16,607 円(坪)
-
モードコスモスビル
東京都渋谷区猿楽町28-10
坪数:63.97 坪
坪単価:23,022 円(坪)