井門銀座一丁目ビル(物件No:61580102)
井門銀座一丁目ビルは東京都中央区銀座にある地下1階、地上9階建ての貸店舗です。最寄駅は東京メトロ有楽町線の銀座一丁目駅から徒歩2分、都営浅草線の宝町駅から徒歩3分、東京メトロ日比谷線の八丁堀駅から徒歩7分、JR線の東京駅から徒歩16分、東京メトロ銀座線の京橋駅から徒歩5分です。1967年7月竣工の基準階面積が56.9坪の鉄骨鉄筋コンクリート造です。設備としてはエレベーターが1基あり、機械警備もあります。トイレは室外男女別です。空調は個別空調です。床仕様はタイルカーペットです。天高は2300mmです。耐震性は新耐震となっている、複数駅利用可能な、アクセスの良い東京都中央区銀座の貸店舗です。
| 階 | 面積 | 賃料 | 共益費 | 敷金 | 入居日 | お問合せ | お気に入り | |
|---|---|---|---|---|---|---|---|---|
|
3F
(31+32区画) |
32.6 坪 107.77 ㎡ |
※現在空室情報はございません |
※現在空室情報は 確認する |
|||||
| 階 | 面積 | 賃料 | 共益費 | 敷金 | 入居日 | お問合せ | お気に入り | |
|---|---|---|---|---|---|---|---|---|
|
3F
(31+32区画) |
32.6 坪 107.77 ㎡ |
※現在空室情報はございません |
※現在空室情報は 確認する |
|||||
-
物件情報
-
設備情報
- トイレ
- 室外男女別
- 床
- タイルカーペット
- 空調
- 個別空調
- セキュリティ
- 有
- 駐車場
- 無
- 会議室
- -
- エレベーター
- 1基
- 天井高
- 2300mm
-
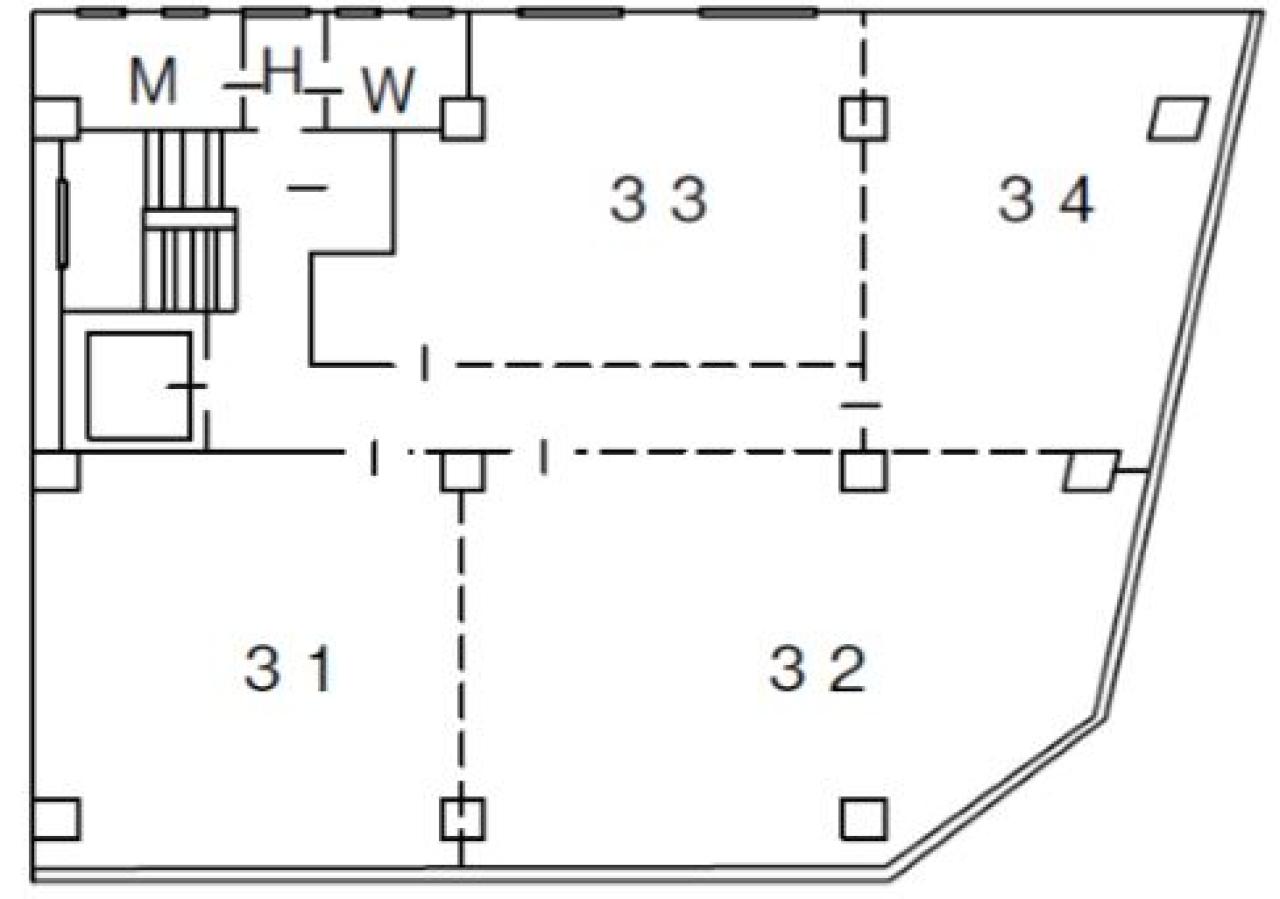
間取り図
-
近隣相場情報
銀座1丁目(30~40坪)の相場
23632 円 (坪)
※ビルサク調べ
周辺施設情報
| コンビニ |
セブンイレブン/銀座1丁目/290m(徒歩4分) ファミリーマート/宝町駅前店/150m(徒歩2分) |
|---|---|
| 郵便局/銀行 |
城南信用金庫/銀座支店/[営業時間] [窓口]平日9:00~15:00 [ATM]<平日>8:00~21:00<土曜日>8:45~19:00/13m(徒歩1分) バンクタイム/ATM ファミリーマート 宝町駅前店/[営業時間]全日/24H営業 ※毎週日曜日23:00~翌日7:00/150m(徒歩2分) |
| 飲食店 |
エベレストダイニング/11時00分~15時00分,17時00分~23時00分/57m(徒歩1分) くふ楽 銀座総本店/17時00分~22時30分/130m(徒歩2分) |
| カフェ |
カフェ デコ/10時00分~19時00分/120m(徒歩2分) ベローチェ/銀座一丁目店/[営業時間]7:00~22:00 日・祝7:00~21:00/61m(徒歩1分) |
| コインパーキング |
タイムズ駐車場/京橋第7 [料金] [全日]通常料金 / 0:00~0:00 20分 400円 [最大料金] [全日]駐車後5時間 最大料金2500円 [台数]6 タイムズ駐車場/銀座DTビル [料金] 通常料金 / 0:00~0:00 12分 400円 [最大料金] [全日]21:00~9:00 最大料金1500円 [台数]1 |
周辺地図
井門銀座一丁目ビルは東京都中央区銀座にある地下1階、地上9階建ての貸店舗です。最寄駅は東京メトロ有楽町線の銀座一丁目駅から徒歩2分、都営浅草線の宝町駅から徒歩3分、東京メトロ日比谷線の八丁堀駅から徒歩7分、JR線の東京駅から徒歩16分、東京メトロ銀座線の京橋駅から徒歩5分です。1967年7月竣工の基準階面積が56.9坪の鉄骨鉄筋コンクリート造です。設備としてはエレベーターが1基あり、機械警備もあります。トイレは室外男女別です。空調は個別空調です。床仕様はタイルカーペットです。天高は2300mmです。耐震性は新耐震となっている、複数駅利用可能な、アクセスの良い東京都中央区銀座の貸店舗です。
全フロア情報
更新日:2026年3月3日
| 階 | 面積 | 賃料 | 共益費 | 敷金 | 入居日 | お問合せ | お気に入り | |
|---|---|---|---|---|---|---|---|---|
|
2F
(2区画) |
24.78 坪 81.92 ㎡ |
495,600 円 20,000 円(坪) |
込 |
5,947,200 円 12 ヶ月 |
2026/05/01 |
|
|
|
|
2F
(5区画) |
24.78 坪 81.92 ㎡ |
※現在空室情報はございません |
※現在空室情報は 確認する |
|||||
|
3F
(3区画) |
24.3 坪 80.33 ㎡ |
※現在空室情報はございません |
※現在空室情報は 確認する |
|||||
|
3F
(31区画) |
13.2 坪 43.64 ㎡ |
※現在空室情報はございません |
※現在空室情報は 確認する |
|||||
|
3F
(31+32区画) |
32.6 坪 107.77 ㎡ |
※現在空室情報はございません |
※現在空室情報は 確認する |
|||||
|
3F
(32区画) |
19.4 坪 64.13 ㎡ |
※現在空室情報はございません |
※現在空室情報は 確認する |
|||||
|
3F
(33区画) |
12.8 坪 42.31 ㎡ |
※現在空室情報はございません |
※現在空室情報は 確認する |
|||||
|
3F
(4区画) |
24.3 坪 80.33 ㎡ |
※現在空室情報はございません |
※現在空室情報は 確認する |
|||||
|
4F
(41区画) |
13.2 坪 43.64 ㎡ |
※現在空室情報はございません |
※現在空室情報は 確認する |
|||||
|
5F
(51区画) |
13.2 坪 43.64 ㎡ |
※現在空室情報はございません |
※現在空室情報は 確認する |
|||||
|
5F
(53区画) |
12.8 坪 42.31 ㎡ |
※現在空室情報はございません |
※現在空室情報は 確認する |
|||||
|
6F
(62区画) |
19.4 坪 64.13 ㎡ |
※現在空室情報はございません |
※現在空室情報は 確認する |
|||||
|
6F
(64区画) |
11.5 坪 38.02 ㎡ |
※現在空室情報はございません |
※現在空室情報は 確認する |
|||||
|
7F
(3区画) |
24.3 坪 80.33 ㎡ |
※現在空室情報はございません |
※現在空室情報は 確認する |
|||||
|
7F
(4区画) |
24.3 坪 80.33 ㎡ |
※現在空室情報はございません |
※現在空室情報は 確認する |
|||||
|
7F
(72区画) |
19.4 坪 64.13 ㎡ |
※現在空室情報はございません |
※現在空室情報は 確認する |
|||||
|
8F
(82区画) |
16.9 坪 55.87 ㎡ |
※現在空室情報はございません |
※現在空室情報は 確認する |
|||||
|
8F
(83区画) |
12.9 坪 42.64 ㎡ |
※現在空室情報はございません |
※現在空室情報は 確認する |
|||||
|
9F
(91区画) |
17.5 坪 57.85 ㎡ |
相談 |
込 |
12ヶ月 |
即日 |
|
|
|
お問い合わせ
似た条件の物件はこちら
-
第五安田ビル
東京都中央区銀座7-15-2
坪数:41.7 坪
坪単価:11,000 円(坪)
-
杉山ビル
東京都中央区銀座7-14-15
坪数:22.8 坪
坪単価:14,035 円(坪)
-
第2五味ビル
東京都中央区銀座1-14-5
坪数:26 坪
坪単価:13,000 円(坪)
-
DEAR GINZA
東京都中央区銀座1-6-8
坪数:39.82 坪
坪単価:36,000 円(坪)
-
銀座朝日ビル
東京都中央区銀座3-8-10
坪数:36.33 坪
坪単価:26,000 円(坪)
-
銀座ワカホビル
東京都中央区銀座5-14-8
坪数:24 坪
坪単価:17,000 円(坪)
-
TRUST VALUE銀座一丁目Ⅱ
東京都中央区銀座1-22-9
坪数:25.36 坪
坪単価:22,279 円(坪)
-
銀座清和ビル
東京都中央区銀座1-20-5
坪数:26.16 坪
坪単価:13,795 円(坪)
-
東銀1ビル
東京都中央区銀座3-10-14
坪数:22 坪
坪単価:19,000 円(坪)
-
銀座三真ビル
東京都中央区銀座5-15-19
坪数:23.3 坪
坪単価:22,002 円(坪)