五番町コスモビル(物件No:61485007)
五番町コスモビルは、千代田区五番町にある貸事務所物件です。最寄駅は、東京メトロ有楽町線、南北線、都営新宿線、JR市ヶ谷駅です。1972年竣工で、基準階が87.72坪の賃貸オフィスビルです。天井の高さは2270mm。トイレは室外男女別で、空調は個別空調です。エレベーターは1基あり、セキュリティは機械警備となっています。駐車場が利用可能です。最寄駅から徒歩2分。複数路線利用可能で交通アクセスの良い、千代田区五番町の貸事務所です。
| 階 | 面積 | 賃料 | 共益費 | 敷金 | 入居日 | お問合せ | お気に入り |
|---|---|---|---|---|---|---|---|
| 2F |
87.57 坪 289.49 ㎡ |
1,269,765 円 14,500 円(坪) |
306,495 円 3,500 円(坪) |
7,618,590 円 6 ヶ月 |
2026/04 |
|
|
| 階 | 面積 | 賃料 | 共益費 | 敷金 | 入居日 | お問合せ | お気に入り |
|---|---|---|---|---|---|---|---|
| 2F |
87.57 坪 289.49 ㎡ |
1,269,765 円 14,500 円(坪) |
306,495 円 3,500 円(坪) |
7,618,590 円 6 ヶ月 |
2026/04 |
|
|
-
物件情報
-
設備情報
- トイレ
- 室外男女別
- 床
- -
- 空調
- 個別空調
- セキュリティ
- 有
- 駐車場
- 有
- 会議室
- -
- エレベーター
- 1基
- 天井高
- -
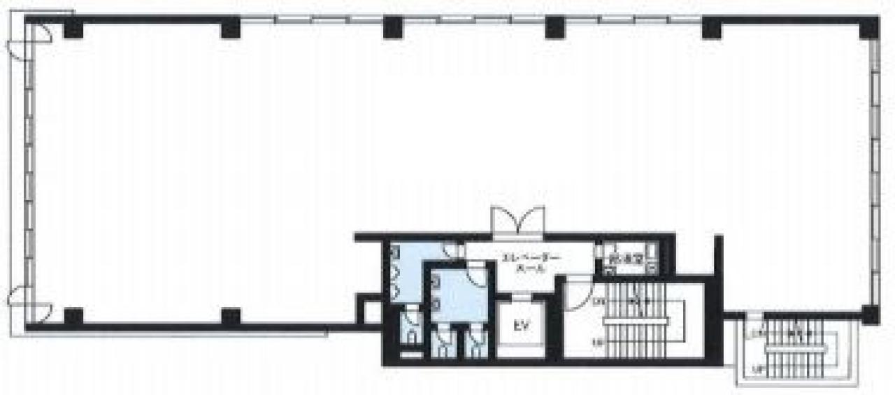
-
間取り図
-
近隣相場情報
五番町4丁目(50~100坪)の相場
17500 円 (坪)
※ビルサク調べ
周辺施設情報
| コンビニ |
セブンイレブン/市ヶ谷駅西/150m(徒歩2分) ファミリーマート/市ヶ谷店/260m(徒歩4分) |
|---|---|
| 郵便局/銀行 |
みずほ銀行/ATM ニューデイズ市ヶ谷出張所/[営業時間] [ATM]平日 5:50~24:10 土曜日 5:50~22:00 日曜日 8:00~21:00 祝日・振替休日 曜日に準ずる 備考 *月曜日の5:50~7:00はご利用いただけません。*設置施設の休業日・休業時間帯は、一般のお客さまはご利用いただけません。*通帳はご利用いただけません/120m(徒歩1分) 興産信用金庫/市ヶ谷支店/160m(徒歩2分) |
| 飲食店 |
立喰 そば処 瓢箪/7時00分~17時00分/39m(徒歩1分) 九州居酒屋 博多満月 市ヶ谷店/11時30分~14時30分、17時00分~23時45分/120m(徒歩1分) |
| カフェ |
ドトール/麹町四番町店/[営業時間]平日 7:15~21:00 土曜 8:00~18:00 日祝 8:00~18:00 [備考]総席数:53(禁煙席:46 喫煙席:7)/喫煙席(加熱)/350m(徒歩5分) プロント/市ヶ谷店/[営業時間]平日:カフェ 7:00~17:30 バー 17:30~21:00 土曜:カフェ 11:00~15:00 [休業日]日祝 [備考]112席/分煙(禁煙席/加熱式たばこ専用席/喫煙ブース)/250m(徒歩3分) |
| コインパーキング |
三井のリパーク/六番町第7 [料金] 平日 08:00~22:00 15分/200円 平日 22:00~08:00 60分/100円 日祝 08:00~22:00 15分/200円 日祝 22:00~08:00 60分/100円 [最大料金] 【月~土】最大料金入庫当日24時まで3000円 【日祝】最大料金入庫当日24時まで1200円 [台数]3 三井のリパーク/四番町第4 [料金] 平日 08:00~22:00 15分/400円 平日 22:00~08:00 60分/100円 日祝 08:00~22:00 15分/400円 日祝 22:00~08:00 60分/100円 [最大料金] 【月~土】最大料金入庫後24時間以内2800円 【日祝】最大料金入庫後24時間以内900円 [台数]29 |
周辺地図
五番町コスモビルは、千代田区五番町にある貸事務所物件です。最寄駅は、東京メトロ有楽町線、南北線、都営新宿線、JR市ヶ谷駅です。1972年竣工で、基準階が87.72坪の賃貸オフィスビルです。天井の高さは2270mm。トイレは室外男女別で、空調は個別空調です。エレベーターは1基あり、セキュリティは機械警備となっています。駐車場が利用可能です。最寄駅から徒歩2分。複数路線利用可能で交通アクセスの良い、千代田区五番町の貸事務所です。
全フロア情報
更新日:2026年3月5日
| 階 | 面積 | 賃料 | 共益費 | 敷金 | 入居日 | お問合せ | お気に入り | |
|---|---|---|---|---|---|---|---|---|
| 2F |
87.57 坪 289.49 ㎡ |
1,269,765 円 14,500 円(坪) |
306,495 円 3,500 円(坪) |
7,618,590 円 6 ヶ月 |
2026/04 |
|
|
|
|
4F
(A区画) |
49.35 坪 163.14 ㎡ |
※現在空室情報はございません |
※現在空室情報は 確認する |
|||||
| 5F |
87.73 坪 290 ㎡ |
※現在空室情報はございません |
※現在空室情報は 確認する |
|||||
お問い合わせ
似た条件の物件はこちら
-
矢野ビル
東京都千代田区九段北1-12-30
坪数:70.81 坪
坪単価:12,000 円(坪)
-
白揚ビル
東京都千代田区二番町3-10
坪数:84.85 坪
坪単価:16,000 円(坪)
-
泉館紀尾井町ビル
東京都千代田区紀尾井町4-3
坪数:91.02 坪
坪単価:30,000 円(坪)
-
塩崎ビル
東京都千代田区平河町2-7-1
坪数:69 坪
坪単価:21,000 円(坪)
-
フェルテ麹町ビル
東京都千代田区麹町1-7-25
坪数:97.24 坪
坪単価:30,000 円(坪)
-
フロンティア麹町
東京都千代田区麹町3-2-4
坪数:77.98 坪
坪単価:23,000 円(坪)
-
紀尾井町ビル
東京都千代田区紀尾井町3-12
坪数:82.77 坪
坪単価:29,714 円(坪)
-
KY三番町ビル
東京都千代田区三番町1
坪数:102.64 坪
坪単価:18,000 円(坪)
-
いちご半蔵門ビル
東京都千代田区隼町2-19
坪数:82.55 坪
坪単価:18,000 円(坪)