麻仁ビル渋谷(物件No:61481204)
麻仁ビル渋谷は渋谷区宇田川町にある地上6階建ての賃貸事務所です。最寄駅はJR線の渋谷駅から徒歩7分、東京メトロ半蔵門線の渋谷駅から徒歩7分、京王井の頭線の神泉駅から徒歩7分、東京メトロ銀座線の渋谷駅から徒歩7分、京王井の頭線の渋谷駅から徒歩7分です。1978年4月竣工の基準階面積が58.5坪の鉄骨造です。設備としては、エレベーターが1基あります。セキュリティは機械警備です。トイレは男女別です。空調は個別空調です。床仕様はフリーアクセスです。複数駅利用可能なアクセスの良い渋谷区宇田川町の賃貸オフィスです。
| 階 | 面積 | 賃料 | 共益費 | 敷金 | 入居日 | お問合せ | お気に入り | |
|---|---|---|---|---|---|---|---|---|
|
6F
(602区画) |
23.93 坪 79.11 ㎡ |
※現在空室情報はございません |
※現在空室情報は 確認する |
|||||
| 階 | 面積 | 賃料 | 共益費 | 敷金 | 入居日 | お問合せ | お気に入り | |
|---|---|---|---|---|---|---|---|---|
|
6F
(602区画) |
23.93 坪 79.11 ㎡ |
※現在空室情報はございません |
※現在空室情報は 確認する |
|||||
-
物件情報
-
設備情報
- トイレ
- 室内男女別
- 床
- フリーアクセス
- 空調
- 個別空調
- セキュリティ
- 有
- 駐車場
- -
- 会議室
- -
- エレベーター
- 1基
- 天井高
- -
-
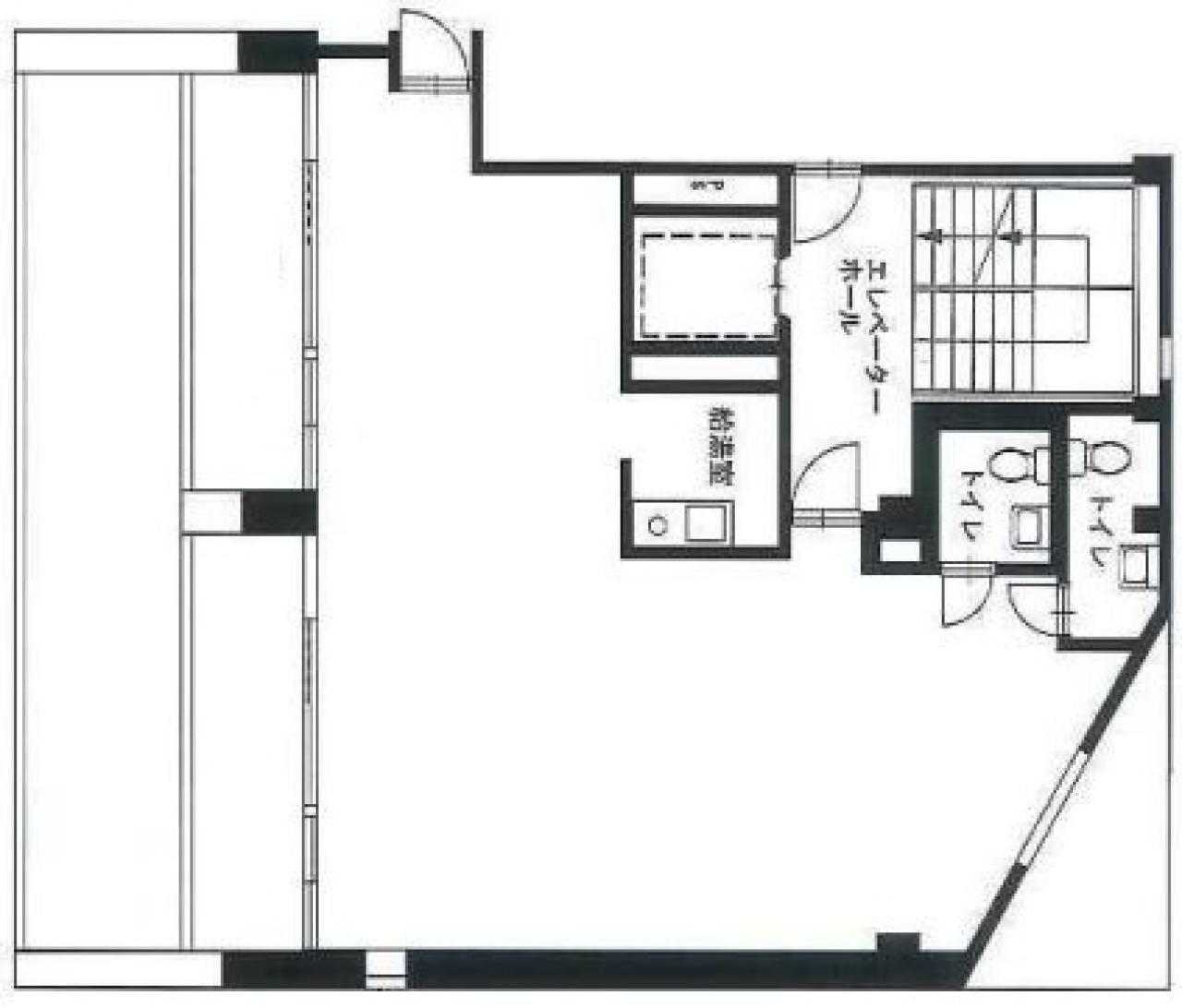
間取り図
-
近隣相場情報
宇田川町37丁目(20~30坪)の相場
調査中
周辺施設情報
| コンビニ |
セブンイレブン/渋谷宇田川町北/9m(徒歩1分) ファミリーマート/渋谷東急本店前店/160m(徒歩2分) |
|---|---|
| 郵便局/銀行 |
ローソン銀行/ローソン銀行ATM 神山共同出張所/[営業時間]24時間 [取扱]海外発行カード対応、視覚障害者対応 [備考]ご利用可能な金融機関 当店のATM管理はローソン銀行です/120m(徒歩1分) みずほ銀行/ATM 第一共同ビル出張所/[営業時間]ATM 平日 /Monday - Friday 9:00~17:00 土曜日/Saturday 非稼働 日曜日/Sunday 非稼働 祝日・振替休日 /Public Holidays 非稼働 備考 通帳繰越機 設置なし/270m(徒歩3分) |
| 飲食店 |
タイガー餃子会舘 宇田川町店/【月~金・祝】12:00 ? 15:30(L.O.15:00)18:00 ? 23:30(L.O.23:00)※金は28/94m(徒歩1分) くし家串猿 渋谷店/17時00分~1時00分/4m(徒歩1分) |
| カフェ |
ベローチェ/松濤店/[営業時間]7:00~23:00/11m(徒歩1分) タベラ/11時45分~23時00分/110m(徒歩1分) |
| コインパーキング |
NPC24H/松濤第3 [料金] 20分/300円 [最大料金] No.9・14・15 12時間毎 2000円 No.1~8・10~13・16 12時間毎 2200円 全車室 1000円(18時~8時) [台数]16台 アットパーク/渋谷宇田川町 [料金] 08:00-22:00 平日 300円/30分 土日祝 400円/30分 22:00-08:00 全日 100円/60分 [最大料金] (8-22時) 平日 2,200円 (8-22時) 土日祝 2,500円 [台数]135台 |
周辺地図
麻仁ビル渋谷は渋谷区宇田川町にある地上6階建ての賃貸事務所です。最寄駅はJR線の渋谷駅から徒歩7分、東京メトロ半蔵門線の渋谷駅から徒歩7分、京王井の頭線の神泉駅から徒歩7分、東京メトロ銀座線の渋谷駅から徒歩7分、京王井の頭線の渋谷駅から徒歩7分です。1978年4月竣工の基準階面積が58.5坪の鉄骨造です。設備としては、エレベーターが1基あります。セキュリティは機械警備です。トイレは男女別です。空調は個別空調です。床仕様はフリーアクセスです。複数駅利用可能なアクセスの良い渋谷区宇田川町の賃貸オフィスです。
全フロア情報
更新日:2026年3月24日
| 階 | 面積 | 賃料 | 共益費 | 敷金 | 入居日 | お問合せ | お気に入り | |
|---|---|---|---|---|---|---|---|---|
|
2F
(201区画) |
33.54 坪 110.88 ㎡ |
※現在空室情報はございません |
※現在空室情報は 確認する |
|||||
|
2F
(202区画) |
48.06 坪 158.88 ㎡ |
※現在空室情報はございません |
※現在空室情報は 確認する |
|||||
|
3F
(301区画) |
18.49 坪 61.12 ㎡ |
※現在空室情報はございません |
※現在空室情報は 確認する |
|||||
|
4F
(402区画) |
37.26 坪 123.17 ㎡ |
※現在空室情報はございません |
※現在空室情報は 確認する |
|||||
|
5F
(502区画) |
17.98 坪 59.44 ㎡ |
※現在空室情報はございません |
※現在空室情報は 確認する |
|||||
|
5F
(503区画) |
11.75 坪 38.83 ㎡ |
137,000 円 11,660 円(坪) |
無 |
548,000 円 4 ヶ月 |
2026/04/01 |
|
|
|
|
6F
(601区画) |
20.39 坪 67.4 ㎡ |
※現在空室情報はございません |
※現在空室情報は 確認する |
|||||
|
6F
(602区画) |
23.93 坪 79.11 ㎡ |
※現在空室情報はございません |
※現在空室情報は 確認する |
|||||
お問い合わせ
似た条件の物件はこちら
-
ビラ・ビアンカ
東京都渋谷区神宮前2-33-12
坪数:20.39 坪
坪単価:16,184 円(坪)
-
第一暁ビルディング
東京都渋谷区道玄坂1-19-9
坪数:24.14 坪
坪単価:20,713 円(坪)
-
三貴ビル
東京都渋谷区渋谷2-12-12
坪数:18.67 坪
坪単価:22,035 円(坪)
-
倉島渋谷ビル
東京都渋谷区渋谷2-3-8
坪数:24.63 坪
坪単価:18,000 円(坪)
-
若草ビルB館
東京都渋谷区渋谷1-1-16
坪数:20.35 坪
坪単価:18,000 円(坪)
-
アクシーズ7号館ビル
東京都渋谷区渋谷3-17-4
坪数:18 坪
坪単価:20,000 円(坪)
-
越一ビル
東京都渋谷区神宮前6-19-16
坪数:19 坪
坪単価:22,000 円(坪)
-
ナルセビルディング
東京都渋谷区渋谷3-18-7
坪数:18.5 坪
坪単価:27,500 円(坪)
-
宮益坂ビルディング
東京都渋谷区渋谷2-19-15
坪数:18.11 坪
坪単価:31,489 円(坪)
-
郁文堂青山通りビル
東京都渋谷区渋谷2-1-11
坪数:22.82 坪
坪単価:21,000 円(坪)