JL日本橋ビル(物件No:61389191)
JL日本橋ビルは中央区日本橋堀留町にある地上9階建ての賃貸事務所です。最寄駅は都営浅草線の人形町駅から徒歩4分、東京メトロ日比谷線の人形町駅から徒歩4分、東京メトロ日比谷線の小伝馬町駅から徒歩4分、都営新宿線の馬喰横山駅から徒歩7分、東京メトロ銀座線の三越前駅から徒歩7分です。1993年9月竣工の基準階面積が147.87坪の鉄骨鉄筋コンクリート造です。設備としてはエレベーターが2基あり、駐車場もあります。機械警備もあります。トイレは男女別です。空調は個別空調です。床仕様はフリーアクセスです。天高は2500mmです。耐震性は新耐震となっている、最寄駅から駅近で便利な中央区日本橋堀留町の賃貸オフィスです。
-
物件情報
-
設備情報
- トイレ
- 男女別
- 床
- フリーアクセス
- 空調
- 個別空調
- セキュリティ
- 有
- 駐車場
- 有
- 会議室
- -
- エレベーター
- 2基
- 天井高
- 2500mm
-
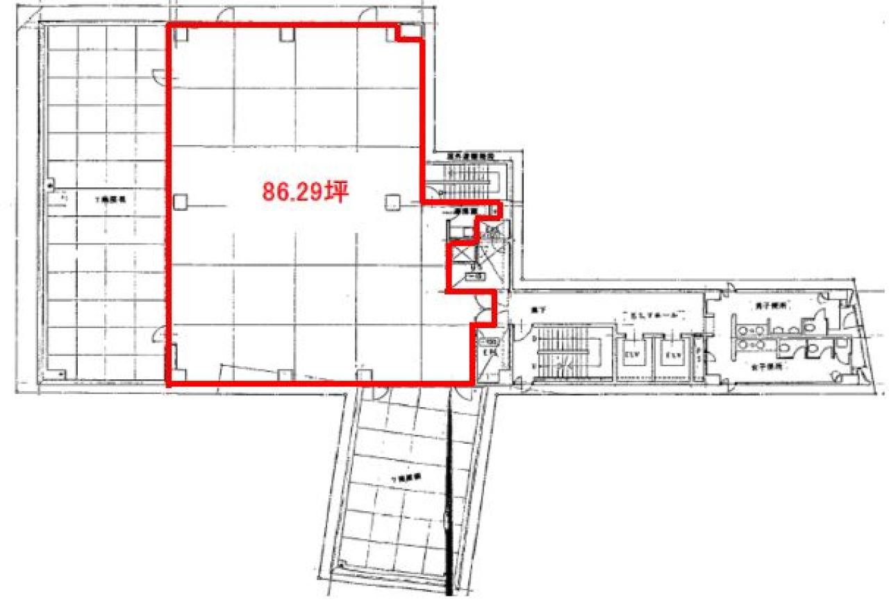
間取り図
-
近隣相場情報
日本橋堀留町1丁目(50~100坪)の相場
16083 円 (坪)
※ビルサク調べ
周辺施設情報
| コンビニ |
ファミリーマート/日本橋堀留町一丁目店/68m(徒歩1分) デイリーヤマザキ/日本橋堀留町店/120m(徒歩1分) |
|---|---|
| 郵便局/銀行 |
郵便局/日本橋小舟町/平日 9:00-17:00 土曜 - 日曜・祝日 - [ATM]平日 8:00-19:00 土曜 9:00-14:00 日曜・祝日 -/300m(徒歩4分) 滋賀銀行/東京支店/[営業時間]窓口 平日 9:00-15:00 土日祝日 - ATM 平日 8:45-18:00 土曜日 - 日祝日 - 両替機 平日 - 土日祝日 - 通帳繰越専用機 平日 - 土日祝日 -/300m(徒歩4分) |
| 飲食店 |
串カツ田中 小伝馬町研修センター店/16時00分~23時00分/81m(徒歩1分) 吉野家 小伝馬町店/5時00分~2時00分/120m(徒歩1分) |
| カフェ |
ドトール/日本橋小舟町店/[営業時間]平 日:07:30 - 17:30 土曜日:- 日 祝:- [休業日]日曜、祝日、土曜 [備考]総席数:64 禁煙席:22 喫煙席:42/190m(徒歩2分) スターバックス/人形町店/[営業時間]月~金: 07:00~22:00 土日祝: 07:00~21:00 [休業日]不定休 [備考]無線LAN:STARBUCKS/docomo/FLET’S(東)/Softbank/au/Wi2 300/230m(徒歩3分) |
| コインパーキング |
三井のリパーク/日本橋堀留町1丁目第5 [料金] 全日 08:00~22:00 12分/300円 全日 22:00~08:00 60分/100円 [最大料金] 【全日】入庫後6時間以内3000円 [台数]8 タイムズ駐車場/日本橋堀留町第4 [料金] [月~土]00:00-00:00 12分 300円 [日・祝]00:00-00:00 12分 300円 [最大料金] [月~土]09:00-19:00 最大料金3800円 19:00-09:00 最大料金400円 [日・祝]09:00-19:00 最大料金800円 19:00-09:00 最大料金400円 [台数]8 |
周辺地図
JL日本橋ビルは中央区日本橋堀留町にある地上9階建ての賃貸事務所です。最寄駅は都営浅草線の人形町駅から徒歩4分、東京メトロ日比谷線の人形町駅から徒歩4分、東京メトロ日比谷線の小伝馬町駅から徒歩4分、都営新宿線の馬喰横山駅から徒歩7分、東京メトロ銀座線の三越前駅から徒歩7分です。1993年9月竣工の基準階面積が147.87坪の鉄骨鉄筋コンクリート造です。設備としてはエレベーターが2基あり、駐車場もあります。機械警備もあります。トイレは男女別です。空調は個別空調です。床仕様はフリーアクセスです。天高は2500mmです。耐震性は新耐震となっている、最寄駅から駅近で便利な中央区日本橋堀留町の賃貸オフィスです。
全フロア情報
更新日:2025年11月5日
| 階 | 面積 | 賃料 | 共益費 | 敷金 | 入居日 | お問合せ | お気に入り | |
|---|---|---|---|---|---|---|---|---|
| 1F |
108.37 坪 358.25 ㎡ |
※現在空室情報はございません |
※現在空室情報は 確認する |
|||||
|
2F
(203区画) |
16.48 坪 54.48 ㎡ |
※現在空室情報はございません |
※現在空室情報は 確認する |
|||||
|
2F
(204区画) |
16.48 坪 54.48 ㎡ |
※現在空室情報はございません |
※現在空室情報は 確認する |
|||||
|
2F
(205区画) |
19.91 坪 65.82 ㎡ |
相談 |
69,685 円 3,500 円(坪) |
12ヶ月 |
2026/03/01 |
|
|
|
| 4F |
147.87 坪 488.83 ㎡ |
※現在空室情報はございません |
※現在空室情報は 確認する |
|||||
| 5F |
147.87 坪 488.83 ㎡ |
※現在空室情報はございません |
※現在空室情報は 確認する |
|||||
| 6F |
147.87 坪 488.83 ㎡ |
※現在空室情報はございません |
※現在空室情報は 確認する |
|||||
|
6F
(1区画) |
118.4 坪 391.4 ㎡ |
※現在空室情報はございません |
※現在空室情報は 確認する |
|||||
|
6F
(2区画) |
21.8 坪 72.07 ㎡ |
※現在空室情報はございません |
※現在空室情報は 確認する |
|||||
| 7F |
147.87 坪 488.83 ㎡ |
※現在空室情報はございません |
※現在空室情報は 確認する |
|||||
|
7F
(1区画) |
118.4 坪 391.4 ㎡ |
※現在空室情報はございません |
※現在空室情報は 確認する |
|||||
|
7F
(2区画) |
21.8 坪 72.07 ㎡ |
※現在空室情報はございません |
※現在空室情報は 確認する |
|||||
| 8F |
86.29 坪 285.26 ㎡ |
※現在空室情報はございません |
※現在空室情報は 確認する |
|||||
| 9F |
86.29 坪 285.26 ㎡ |
※現在空室情報はございません |
※現在空室情報は 確認する |
|||||
お問い合わせ
似た条件の物件はこちら
-
箱崎YMビル
東京都中央区日本橋箱崎町44-7
坪数:81.76 坪
坪単価:17,123 円(坪)
-
日本橋ウッドフィールド
東京都中央区日本橋箱崎町34-4
坪数:67.9 坪
坪単価:9,000 円(坪)
-
セキグチビル
東京都中央区日本橋馬喰町1-6-15
坪数:74.3 坪
坪単価:8,479 円(坪)
-
日本橋小網町THビル
東京都中央区日本橋小網町18-4
坪数:67.6 坪
坪単価:16,000 円(坪)
-
岩清日本橋ビル
東京都中央区日本橋大伝馬町6-5
坪数:83 坪
坪単価:16,000 円(坪)
-
日本橋蛎殻町東急ビル
東京都中央区日本橋蛎殻町1-29-4
坪数:77.93 坪
坪単価:20,000 円(坪)
-
東成ビルディング
東京都中央区日本橋箱崎町18-10
坪数:94.04 坪
坪単価:8,500 円(坪)
-
タナベビル
東京都中央区日本橋小網町16-1
坪数:90 坪
坪単価:11,000 円(坪)
-
東益ビル
東京都中央区日本橋箱崎町16-1
坪数:73.66 坪
坪単価:10,500 円(坪)
-
セントピアビル
東京都中央区日本橋馬喰町2-3-2
坪数:94.34 坪
坪単価:16,000 円(坪)
関連エリアから探す
- 日本橋大伝馬町
- 日本橋蛎殻町
- 日本橋小網町
- 日本橋小伝馬町
- 日本橋小舟町
- 日本橋富沢町
- 日本橋人形町
- 日本橋箱崎町
- 日本橋堀留町
- 日本橋中洲
- 日本橋馬喰町
- 日本橋浜町
- 日本橋久松町
- 日本橋横山町
- 東日本橋