虎ノ門40MTビル(物件No:61387126)
虎ノ門40MTビルは、港区虎ノ門にある貸事務所物件です。最寄り駅は、東京メトロ銀座線、JR線の新橋駅、東京メトロ日比谷線の神谷町駅、東京メトロ銀座線の虎ノ門駅、都営三田線の内幸町駅、東京メトロ南北線の六本木一丁目駅、都営三田線の御成門駅、東京メトロ日比谷線の銀座駅、都営大江戸線の赤羽橋駅、都営大江戸線の大門駅、東京メトロ日比谷線、東京メトロ千代田線、東京メトロ丸ノ内線の霞ヶ関駅です。1982年竣工で、基準階が328坪の賃貸オフィスビルです。天高は2450mmで、床はOAフロアとなっております。空調は個別空調で、トイレは室外にあり、男女別です。機械警備で、エレベーターは3基あります。駐車場があり、複数路線利用可能な、アクセスの良い港区虎ノ門の貸事務所です。
| 階 | 面積 | 賃料 | 共益費 | 敷金 | 入居日 | お問合せ | お気に入り |
|---|---|---|---|---|---|---|---|
|
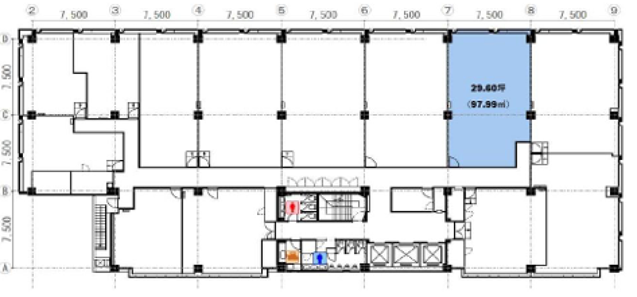
9F
(6区画) |
29.6 坪 97.85 ㎡ |
888,000 円 30,000 円(坪) |
込 |
10,656,000 円 12 ヶ月 |
2026/05/01 |
|
|
| 階 | 面積 | 賃料 | 共益費 | 敷金 | 入居日 | お問合せ | お気に入り |
|---|---|---|---|---|---|---|---|
|
9F
(6区画) |
29.6 坪 97.85 ㎡ |
888,000 円 30,000 円(坪) |
込 |
10,656,000 円 12 ヶ月 |
2026/05/01 |
|
|
-
物件情報
-
設備情報
- トイレ
- 室外男女別
- 床
- フリーアクセス
- 空調
- セントラル空調
- セキュリティ
- 有
- 駐車場
- 有
- 会議室
- -
- エレベーター
- 3基
- 天井高
- 2450mm
-
間取り図
-
近隣相場情報
虎ノ門5丁目(20~30坪)の相場
26947 円 (坪)
※ビルサク調べ
周辺施設情報
| コンビニ |
セブンイレブン/虎ノ門5丁目/96m(徒歩1分) ファミリーマート/神谷町駅前店/67m(徒歩1分) |
|---|---|
| 郵便局/銀行 |
三井住友銀行/ATM 神谷町出張所/[営業時間]平日 8:00~23:00 土曜日 8:00~23:00 日・祝日 8:00~21:00/130m(徒歩1分) 三菱UFJ銀行/ATM 神谷町駅前/[営業時間]平日 7:00~24:00 土曜日 7:00~24:00 日・祝日 7:00~24:00/10m(徒歩1分) |
| 飲食店 |
ジョナサン 神谷町店/6時30分~23時30分/170m(徒歩2分) Nobu Tokyo/11時30分~13時45分18時00分~21時45分/600m(徒歩7分) |
| カフェ |
スターバックス/TSUTAYA 神谷町駅前店/[営業時間]07:00~23:00 [休業日]不定休/140m(徒歩1分) ドトール/神谷町店/[営業時間]平 日:07:00 - 20:00 土曜日:08:00 - 16:00 日 祝:- [休業日]日曜、祝日/260m(徒歩3分) |
| コインパーキング |
タイムズ駐車場/ヒューリック神谷町ビル [料金] [料金] 通常料金 / 07:00-22:00 30分 400円 22:00-07:00 30分 100円 [最大料金] [全日]07:00-22:00 最大料金2800円 22:00-07:00 最大料金1000円 [台数]29 三井のリパーク/虎ノ門3丁目時間貸バイク駐車場 [料金] [料金]全日 00:00~24:00 60分/200円 [最大料金] 最大料金 【全日】最大料金入庫後24時間以内1000円 [台数]14 |
周辺地図
虎ノ門40MTビルは、港区虎ノ門にある貸事務所物件です。最寄り駅は、東京メトロ銀座線、JR線の新橋駅、東京メトロ日比谷線の神谷町駅、東京メトロ銀座線の虎ノ門駅、都営三田線の内幸町駅、東京メトロ南北線の六本木一丁目駅、都営三田線の御成門駅、東京メトロ日比谷線の銀座駅、都営大江戸線の赤羽橋駅、都営大江戸線の大門駅、東京メトロ日比谷線、東京メトロ千代田線、東京メトロ丸ノ内線の霞ヶ関駅です。1982年竣工で、基準階が328坪の賃貸オフィスビルです。天高は2450mmで、床はOAフロアとなっております。空調は個別空調で、トイレは室外にあり、男女別です。機械警備で、エレベーターは3基あります。駐車場があり、複数路線利用可能な、アクセスの良い港区虎ノ門の貸事務所です。
全フロア情報
更新日:2025年12月9日
| 階 | 面積 | 賃料 | 共益費 | 敷金 | 入居日 | お問合せ | お気に入り | |
|---|---|---|---|---|---|---|---|---|
|
2F
(別館区画) |
22.48 坪 74.33 ㎡ |
320,000 円 14,235 円(坪) |
無 |
2,500,000 円 8 ヶ月 |
即日 |
|
|
|
|
3F
(1区画) |
34 坪 112.4 ㎡ |
※現在空室情報はございません |
※現在空室情報は 確認する |
|||||
|
3F
(2区画) |
103.25 坪 341.32 ㎡ |
※現在空室情報はございません |
※現在空室情報は 確認する |
|||||
|
3F
(3区画) |
166.4 坪 550.08 ㎡ |
※現在空室情報はございません |
※現在空室情報は 確認する |
|||||
|
3F
(A区画) |
10.18 坪 33.65 ㎡ |
157,790 円 15,500 円(坪) |
15,779 円 1,550 円(坪) |
788,950 円 5 ヶ月 |
即日 |
|
|
|
|
3F
(別館区画) |
37.97 坪 125.52 ㎡ |
※現在空室情報はございません |
※現在空室情報は 確認する |
|||||
|
4F
(1区画) |
104.8 坪 346.45 ㎡ |
※現在空室情報はございません |
※現在空室情報は 確認する |
|||||
|
5F
(1区画) |
68.2 坪 225.45 ㎡ |
※現在空室情報はございません |
※現在空室情報は 確認する |
|||||
|
5F
(2区画) |
34.6 坪 114.38 ㎡ |
※現在空室情報はございません |
※現在空室情報は 確認する |
|||||
|
5F
(3区画) |
110.8 坪 366.28 ㎡ |
※現在空室情報はございません |
※現在空室情報は 確認する |
|||||
|
6F
(1区画) |
34.9 坪 115.37 ㎡ |
※現在空室情報はございません |
※現在空室情報は 確認する |
|||||
|
6F
(2区画) |
178.9 坪 591.4 ㎡ |
※現在空室情報はございません |
※現在空室情報は 確認する |
|||||
| 8F |
327.63 坪 1083.07 ㎡ |
※現在空室情報はございません |
※現在空室情報は 確認する |
|||||
|
9F
(1区画) |
50 坪 165.29 ㎡ |
※現在空室情報はございません |
※現在空室情報は 確認する |
|||||
|
9F
(2区画) |
19 坪 62.81 ㎡ |
※現在空室情報はございません |
※現在空室情報は 確認する |
|||||
|
9F
(3区画) |
21.8 坪 72.07 ㎡ |
※現在空室情報はございません |
※現在空室情報は 確認する |
|||||
|
9F
(4区画) |
30.6 坪 101.16 ㎡ |
※現在空室情報はございません |
※現在空室情報は 確認する |
|||||
|
9F
(5区画) |
30 坪 99.17 ㎡ |
※現在空室情報はございません |
※現在空室情報は 確認する |
|||||
|
9F
(6区画) |
29.6 坪 97.85 ㎡ |
888,000 円 30,000 円(坪) |
込 |
10,656,000 円 12 ヶ月 |
2026/05/01 |
|
|
|
お問い合わせ
似た条件の物件はこちら
-
代市ビル
東京都港区新橋5-8-3
坪数:38.61 坪
坪単価:15,000 円(坪)
-
日比谷パークビル
東京都港区西新橋2-23-2
坪数:21.98 坪
坪単価:18,004 円(坪)
-
桔梗備前ビル
東京都港区西新橋1-19-6
坪数:20.63 坪
坪単価:18,905 円(坪)
-
麻布台ヒルズ ガーデンプラザB
東京都港区虎ノ門5-9-1
坪数:27.2 坪
坪単価:50,000 円(坪)
-
丸万1号館
東京都港区西新橋1-11-1
坪数:24.44 坪
坪単価:15,000 円(坪)
-
新橋安達ビル
東京都港区新橋5-28-7
坪数:29.34 坪
坪単価:14,500 円(坪)
-
石井ビル
東京都港区新橋3-1-10
坪数:33.46 坪
坪単価:16,000 円(坪)
-
近鉄銀座中央通りビルⅢ
東京都港区新橋1-7-10
坪数:35.1 坪
坪単価:26,001 円(坪)
-
アヴァンセ虎ノ門ビル
東京都港区西新橋2-13-15
坪数:33.22 坪
坪単価:34,618 円(坪)
-
ル・グラシエルBLDG.5
東京都港区新橋5-20-1
坪数:27 坪
坪単価:10,500 円(坪)