KFIビル(物件No:61288194)
KFIビルは港区北青山にある地下1階、地上9階建ての賃貸事務所です。最寄駅は東京メトロ半蔵門線の表参道駅から徒歩2分、東京メトロ銀座線の表参道駅から徒歩2分、東京メトロ副都心線の明治神宮前〈原宿〉駅から徒歩9分です。1993年2月竣工の基準階面積が25.85坪の鉄骨鉄筋コンクリート造です。設備としては、エレベーターが1基あります。セキュリティは機械警備です。空調は個別空調です。床仕様はフリーアクセスです。天高は2485mmです。耐震設計となっている、複数路線利用可能なアクセスの良い港区北青山の賃貸オフィスです。
| 階 | 面積 | 賃料 | 共益費 | 敷金 | 入居日 | お問合せ | お気に入り |
|---|---|---|---|---|---|---|---|
| 4F |
25.85 坪 85.45 ㎡ |
904,750 円 35,000 円(坪) |
98,230 円 3,800 円(坪) |
10,857,000 円 12 ヶ月 |
2026/05/26 |
|
|
| 階 | 面積 | 賃料 | 共益費 | 敷金 | 入居日 | お問合せ | お気に入り |
|---|---|---|---|---|---|---|---|
| 4F |
25.85 坪 85.45 ㎡ |
904,750 円 35,000 円(坪) |
98,230 円 3,800 円(坪) |
10,857,000 円 12 ヶ月 |
2026/05/26 |
|
|
-
物件情報
-
設備情報
- トイレ
- -
- 床
- フリーアクセス
- 空調
- 個別空調
- セキュリティ
- 有
- 駐車場
- 無
- 会議室
- -
- エレベーター
- 1基
- 天井高
- 2485mm
-
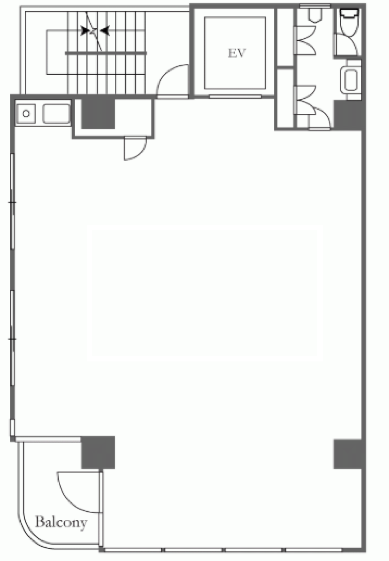
間取り図
-
近隣相場情報
北青山3丁目(20~30坪)の相場
29132 円 (坪)
※ビルサク調べ
周辺施設情報
| コンビニ |
ローソン/北青山三丁目/70m(徒歩1分) ファミリーマート/南青山六丁目店/750m(徒歩10分) |
|---|---|
| 郵便局/銀行 |
三菱UFJ銀行/ATM 表参道駅前/[営業時間] [ATM]平日 7:00~24:00 土曜日 7:00~24:00 日・祝日 7:00~24:00 *毎月第2土曜日の21:00~翌朝7:00はご利用いただけません/280m(徒歩4分) セブン銀行/港区北青山3丁目店/[営業時間]24時間営業 [備考]1 台/110m(徒歩1分) |
| 飲食店 |
表参道Harold&Co ?ハロルドアンドコー? テーブルアート発祥のお店/11時30分~20時00分/13m(徒歩1分) VIETNAMESE CYCLO Echika表参道/10時30分~23時00分/240m(徒歩3分) |
| カフェ |
スターバックス/アクセス表参道店/[営業時間]月~金:7:00~22:30 土:8:00~22:30 日祝:8:00~22:00 ※臨時休業のお知らせ 下記の日程で臨時休業いたします。2020年5月3日~2020年5月14日 [休業日]不定休 [備考]無線LAN:STARBUCKS/docomo/au/Wi2 300/75m(徒歩1分) デリフランス/表参道/[営業時間]7:30~22:00 日祝 8:00~21:00 [備考]カフェスペース/フリー Wi-Fi/禁煙/分煙/客席充電コンセント/客席USBポート/150m(徒歩2分) |
| コインパーキング |
ファインパーキング/南青山第1 [台数]4台 コインパーク/北青山3丁目 [料金] 【 全日 】 ■通常料金 【 オールタイム 】 20分/400円 [最大料金] 【 全日 】 ■最大料金 【 駐車後3時間以内(1回限り) 】 2800円 【 全日 】 ■最大料金 【00:00~8:00】500円 [台数][車: 4台] |
周辺地図
KFIビルは港区北青山にある地下1階、地上9階建ての賃貸事務所です。最寄駅は東京メトロ半蔵門線の表参道駅から徒歩2分、東京メトロ銀座線の表参道駅から徒歩2分、東京メトロ副都心線の明治神宮前〈原宿〉駅から徒歩9分です。1993年2月竣工の基準階面積が25.85坪の鉄骨鉄筋コンクリート造です。設備としては、エレベーターが1基あります。セキュリティは機械警備です。空調は個別空調です。床仕様はフリーアクセスです。天高は2485mmです。耐震設計となっている、複数路線利用可能なアクセスの良い港区北青山の賃貸オフィスです。
全フロア情報
更新日:2026年3月26日
| 階 | 面積 | 賃料 | 共益費 | 敷金 | 入居日 | お問合せ | お気に入り | |
|---|---|---|---|---|---|---|---|---|
| 1F |
18.54 坪 61.28 ㎡ |
相談 |
無 |
12ヶ月 |
相談 |
|
|
|
| 4F |
25.85 坪 85.45 ㎡ |
904,750 円 35,000 円(坪) |
98,230 円 3,800 円(坪) |
10,857,000 円 12 ヶ月 |
2026/05/26 |
|
|
|
| 7F |
25.85 坪 85.45 ㎡ |
※現在空室情報はございません |
※現在空室情報は 確認する |
|||||
| 8F |
25.85 坪 85.45 ㎡ |
※現在空室情報はございません |
※現在空室情報は 確認する |
|||||
お問い合わせ
似た条件の物件はこちら
-
南青山KFKビル
東京都南青山2-14-14
坪数:28.4 坪
坪単価:11,396 円(坪)
-
メゾン青山
東京都港区北青山2-7-26
坪数:18.75 坪
坪単価:20,267 円(坪)
-
たつむら青山マンション(青南吉川興産ビル)
東京都港区南青山5-4-35
坪数:21.29 坪
坪単価:21,982 円(坪)
-
KSビル
東京都港区南青山6-2-9
坪数:20.61 坪
坪単価:23,011 円(坪)
-
青山アレー
東京都港区南青山6-4-6
坪数:16.2 坪
坪単価:26,543 円(坪)
-
越山ビル
東京都港区南青山1-15-2
坪数:34.04 坪
坪単価:16,980 円(坪)
-
セントラル第二青山
東京都港区南青山4-1-1
坪数:20.09 坪
坪単価:15,630 円(坪)
-
クアルソ南青山
東京都港区南青山3-3-6
坪数:30.11 坪
坪単価:43,000 円(坪)
-
南青山ユニハイツ
東京都港区南青山6-12-3
坪数:18.31 坪
坪単価:18,569 円(坪)
-
ティアック青山
東京都港区北青山3-10-21
坪数:16.52 坪
坪単価:22,397 円(坪)