岩本町ビル(物件No:61188099)
岩本町ビルは、千代田区神田岩本町にある地上11階建ての貸店舗オフィスです。最寄駅は都営新宿線の岩本町駅から徒歩1分、つくばエクスプレスの秋葉原駅から徒歩3分、東京メトロ日比谷線の秋葉原駅から徒歩2分、JR線の秋葉原駅から徒歩2分です。1963年1月竣工の鉄筋コンクリート造です。設備としては、エレベーターが1基あります。トイレは室外男女別です。空調は個別空調です。床仕様はフリーアクセスです。天高は2500mmです。複数駅利用可能なアクセスの良い千代田区神田岩本町の貸店舗事務所です。
| 階 | 面積 | 賃料 | 共益費 | 敷金 | 入居日 | お問合せ | お気に入り |
|---|---|---|---|---|---|---|---|
|
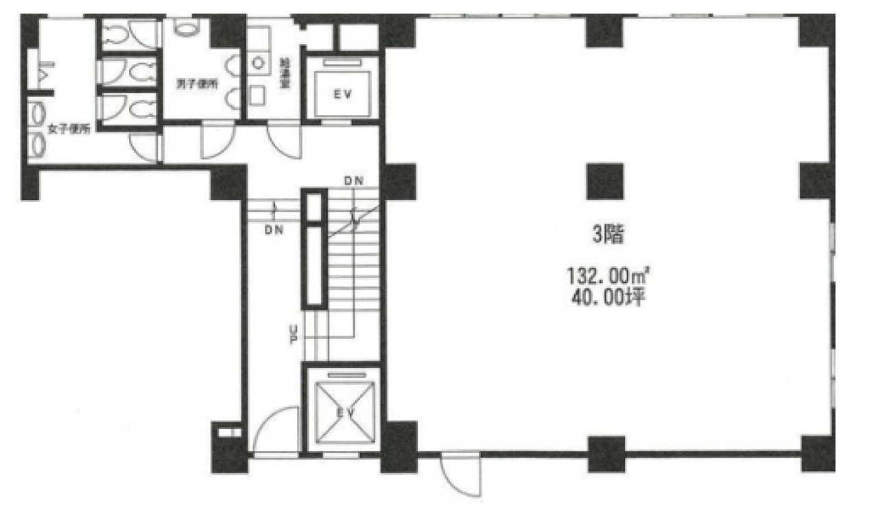
3F
(1区画) |
40 坪 132.23 ㎡ |
500,000 円 12,500 円(坪) |
90,000 円 2,250 円(坪) |
2,500,000 円 5 ヶ月 |
2026/01/15 |
|
|
| 階 | 面積 | 賃料 | 共益費 | 敷金 | 入居日 | お問合せ | お気に入り |
|---|---|---|---|---|---|---|---|
|
3F
(1区画) |
40 坪 132.23 ㎡ |
500,000 円 12,500 円(坪) |
90,000 円 2,250 円(坪) |
2,500,000 円 5 ヶ月 |
2026/01/15 |
|
|
-
物件情報
-
設備情報
- トイレ
- 室外男女別
- 床
- フリーアクセス
- 空調
- 個別空調
- セキュリティ
- 無
- 駐車場
- 無
- 会議室
- -
- エレベーター
- 1基
- 天井高
- -
-
間取り図
-
近隣相場情報
神田岩本町1丁目()の相場
26331 円 (坪)
※ビルサク調べ
周辺施設情報
| コンビニ |
セブンイレブン/神田岩本町/140m(徒歩2分) まいばすけっと/岩本町駅南店/220m(徒歩3分) |
|---|---|
| 郵便局/銀行 |
セブン銀行/神田岩本町店/[営業時間]24時間営業 [ATM台数]1/140m(徒歩2分) みずほ銀行/ATM まいばすけっと岩本町駅南店出張所/[営業時間]ATM 平日 /Monday - Friday 8:00~23:00 土曜日/Saturday 8:00~22:00 日曜日/Sunday 8:00~23:00 祝日・振替休日 /Public Holidays 曜日に準ずる 備考 通帳繰越機 設置なし/240m(徒歩3分) |
| 飲食店 |
永山本店/11時30分~15時00分、17時00分~0時00分/19m(徒歩1分) 和が家/16時30分~23時45分/7m(徒歩1分) |
| カフェ |
ドトール/秋葉原和泉橋店/[営業時間]平 日:06:50 - 21:30 土曜日:07:30 - 20:30 日 祝:08:00 - 19:30 [休業日]なし [備考]総席数:80 禁煙席:61 喫煙席:19/16m(徒歩1分) ベローチェ/岩本町駅前店/[営業時間]7:00~23:00/42m(徒歩1分) |
| コインパーキング |
タイムズ駐車場/神田須田町第3 [料金] [月~土]通常料金 / 07:00-22:00 12分 300円 22:00-07:00 60分 100円 [日・祝]通常料金 / 07:00-22:00 12分 300円 22:00-07:00 60分 100円 [最大料金] [日・祝]当日1日最大料金2800円(24時迄) [台数]5 三井のリパーク/神田須田町2丁目第3 [料金] 全日 08:00~00:00 20分/400円 全日 00:00~08:00 60分/100円 [台数]2 |
周辺地図
岩本町ビルは、千代田区神田岩本町にある地上11階建ての貸店舗オフィスです。最寄駅は都営新宿線の岩本町駅から徒歩1分、つくばエクスプレスの秋葉原駅から徒歩3分、東京メトロ日比谷線の秋葉原駅から徒歩2分、JR線の秋葉原駅から徒歩2分です。1963年1月竣工の鉄筋コンクリート造です。設備としては、エレベーターが1基あります。トイレは室外男女別です。空調は個別空調です。床仕様はフリーアクセスです。天高は2500mmです。複数駅利用可能なアクセスの良い千代田区神田岩本町の貸店舗事務所です。
全フロア情報
更新日:2025年10月30日
| 階 | 面積 | 賃料 | 共益費 | 敷金 | 入居日 | お問合せ | お気に入り | |
|---|---|---|---|---|---|---|---|---|
| 2F |
85 坪 280.99 ㎡ |
※現在空室情報はございません |
※現在空室情報は 確認する |
|||||
|
3F
(1区画) |
40 坪 132.23 ㎡ |
500,000 円 12,500 円(坪) |
90,000 円 2,250 円(坪) |
2,500,000 円 5 ヶ月 |
2026/01/15 |
|
|
|
|
3F
(2区画) |
33 坪 109.09 ㎡ |
※現在空室情報はございません |
※現在空室情報は 確認する |
|||||
|
3F
(301区画) |
27.98 坪 92.5 ㎡ |
※現在空室情報はございません |
※現在空室情報は 確認する |
|||||
|
3F
(303区画) |
12 坪 39.67 ㎡ |
※現在空室情報はございません |
※現在空室情報は 確認する |
|||||
|
4F
(1区画) |
20 坪 66.12 ㎡ |
※現在空室情報はございません |
※現在空室情報は 確認する |
|||||
| 5F |
62.55 坪 206.78 ㎡ |
※現在空室情報はございません |
※現在空室情報は 確認する |
|||||
| 6F |
13.04 坪 43.11 ㎡ |
※現在空室情報はございません |
※現在空室情報は 確認する |
|||||
|
8F
(88区画) |
14.41 坪 47.64 ㎡ |
165,715 円 11,500 円(坪) |
7,205 円 500 円(坪) |
497,145 円 3 ヶ月 |
2026/01 |
|
|
|
お問い合わせ
似た条件の物件はこちら
-
大手町ゲートビルディング
東京都千代田区内神田1-31-11
坪数:48.55 坪
坪単価:70,031 円(坪)
-
NTビル
東京都千代田区内神田1-9-12
坪数:42.58 坪
坪単価:24,507 円(坪)
-
新八光ビル
東京都千代田区内神田3-22-9
坪数:44.17 坪
坪単価:20,000 円(坪)
-
神田松楠ビル
東京都千代田区内神田2-7-10
坪数:37.07 坪
坪単価:15,000 円(坪)
-
KSKビル
東京都千代田区外神田5-1-15
坪数:39.4 坪
坪単価:16,000 円(坪)
-
エスポワールビル
東京都千代田区神田紺屋町38
坪数:36.67 坪
坪単価:13,000 円(坪)
-
ism神田
東京都千代田区神田東松下町48
坪数:31.72 坪
坪単価:16,000 円(坪)
-
神田荒木ビル
東京都千代田区神田須田町1-14-6
坪数:30.03 坪
坪単価:18,000 円(坪)
-
大栄堂ビル
東京都千代田区神田小川町3-6
坪数:30 坪
坪単価:20,000 円(坪)
-
藤和内神田ビル
東京都千代田区内神田2-4-4
坪数:44.42 坪
坪単価:13,997 円(坪)
関連エリアから探す
- 内神田
- 神田淡路町
- 神田小川町
- 神田鍛冶町
- 神田須田町
- 神田駿河台
- 神田多町
- 神田司町
- 神田錦町
- 神田美土代町
- 岩本町
- 鍛冶町
- 神田岩本町
- 神田北乗物町
- 神田紺屋町
- 神田富山町
- 神田西福田町
- 神田東松下町
- 神田東紺屋町
- 神田美倉町
- 東神田
- 神田相生町
- 神田和泉町
- 神田佐久間町
- 神田佐久間河岸
- 神田練塀町
- 神田花岡町
- 神田松永町
- 外神田
- 神田平河町