アソルティ小伝馬町Liens(物件No:61186161)
アソルティ小伝馬町Liensは、中央区日本橋小伝馬町にある貸事務所物件です。最寄り駅は東京メトロ日比谷線小伝馬町駅、都営新宿線馬喰横山駅、JR総武線馬喰町駅です。1987年竣工で基準階が55.94坪の賃貸オフィスビルです。床はOAフロアで、天井の高さは3000mm。トイレは男女別で、空調は個別空調です。エレベーターは1基あり、セキュリティは機械警備となっています。駐車場が利用可能です。複数路線利用可能で交通アクセスの良い、中央区日本橋小伝馬町の貸事務所です。
| 階 | 面積 | 賃料 | 共益費 | 敷金 | 入居日 | お問合せ | お気に入り |
|---|---|---|---|---|---|---|---|
|
2F
(B区画) |
20.55 坪 67.93 ㎡ |
493,200 円 24,000 円(坪) |
込 |
1,972,800 円 4 ヶ月 |
即日 |
|
|
| 階 | 面積 | 賃料 | 共益費 | 敷金 | 入居日 | お問合せ | お気に入り |
|---|---|---|---|---|---|---|---|
|
2F
(B区画) |
20.55 坪 67.93 ㎡ |
493,200 円 24,000 円(坪) |
込 |
1,972,800 円 4 ヶ月 |
即日 |
|
|
-
物件情報
-
設備情報
- トイレ
- 室内男女別
- 床
- フリーアクセス
- 空調
- 個別空調
- セキュリティ
- 有
- 駐車場
- 有
- 会議室
- -
- エレベーター
- 1基
- 天井高
- 3000mm
-
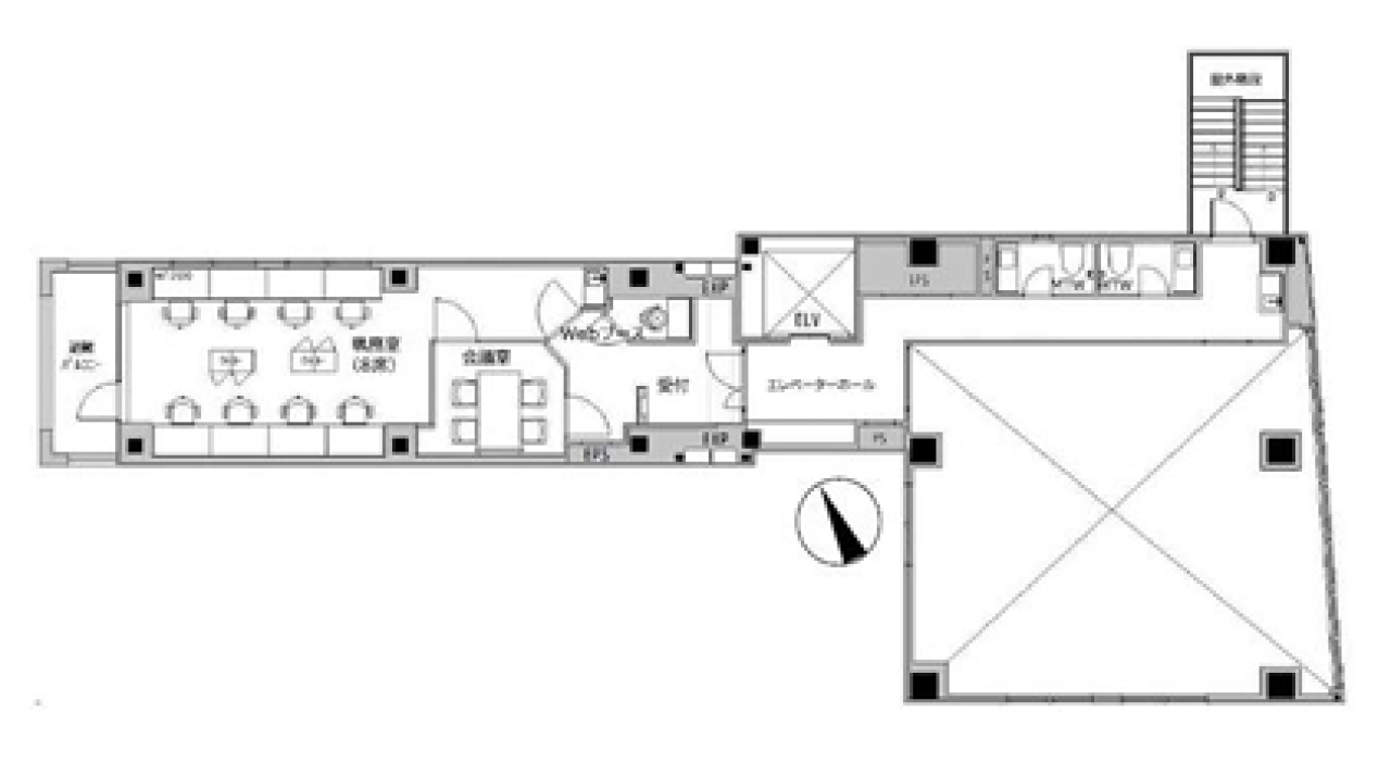
間取り図
-
近隣相場情報
日本橋小伝馬町14丁目(20~30坪)の相場
17000 円 (坪)
※ビルサク調べ
周辺施設情報
| コンビニ |
ファミリーマート/小伝馬町大門通り店/120m(徒歩1分) ローソン/日本橋横山町/130m(徒歩2分) |
|---|---|
| 郵便局/銀行 |
みずほ銀行/横山町支店/窓口 平日9:00~15:00 ATM 平日 6:00~26:00 土曜日 8:00~22:00 日曜日 8:00~21:00 祝日・振替休日 8:00~21:00/130m(徒歩2分) 郵便局/小伝馬町/平日 9:00-18:00 土曜 - 日曜・祝日 - [ATM]平日 9:00-19:00 土曜 9:00-17:00 日曜・祝日 -/160m(徒歩2分) |
| 飲食店 |
ワイン食堂KABU/11:30~14:00 17:00~23:00/5m(徒歩1分) 揚げ三兄弟 小伝馬町店/11時30分~15時00分、17時00分~0時00分/20m(徒歩1分) |
| カフェ |
ドトール/小伝馬町店/[営業時間]平 日:07:00 - 18:00 土曜日:07:00 - 16:00 日 祝:- [休業日]日曜、祝日 [備考]総席数:31 禁煙席:19 喫煙席:12/90m(徒歩1分) ベローチェ/小伝馬町店/[営業時間]7:00~22:00 [休業日]無 [備考]137席/120m(徒歩1分) |
| コインパーキング |
NPC24H/日本橋馬喰町第2 [料金] 30分/400円(7時~21時) 60分/100円(21時~7時) [最大料金] 月~土 12時間毎 3800円 日祝 12時間毎 1800円 [台数]8台 三井のリパーク/日本橋馬喰町1丁目第2 [料金] 平日 08:00~22:00 25分/300円、平日 22:00~08:00 60分/100円 日祝 08:00~22:00 20分/100円、日祝 22:00~08:00 60分/100円 [最大料金] 【全日】1・3番車室のみ入庫後4時間以内1500円 [台数]3 |
周辺地図
アソルティ小伝馬町Liensは、中央区日本橋小伝馬町にある貸事務所物件です。最寄り駅は東京メトロ日比谷線小伝馬町駅、都営新宿線馬喰横山駅、JR総武線馬喰町駅です。1987年竣工で基準階が55.94坪の賃貸オフィスビルです。床はOAフロアで、天井の高さは3000mm。トイレは男女別で、空調は個別空調です。エレベーターは1基あり、セキュリティは機械警備となっています。駐車場が利用可能です。複数路線利用可能で交通アクセスの良い、中央区日本橋小伝馬町の貸事務所です。
全フロア情報
更新日:2026年3月13日
| 階 | 面積 | 賃料 | 共益費 | 敷金 | 入居日 | お問合せ | お気に入り | |
|---|---|---|---|---|---|---|---|---|
| 1F |
17.56 坪 58.05 ㎡ |
※現在空室情報はございません |
※現在空室情報は 確認する |
|||||
|
2F
(B区画) |
20.55 坪 67.93 ㎡ |
493,200 円 24,000 円(坪) |
込 |
1,972,800 円 4 ヶ月 |
即日 |
|
|
|
|
3F
(A区画) |
25.39 坪 83.93 ㎡ |
※現在空室情報はございません |
※現在空室情報は 確認する |
|||||
|
3F
(B区画) |
20.55 坪 67.93 ㎡ |
※現在空室情報はございません |
※現在空室情報は 確認する |
|||||
|
4F
(A区画) |
25.39 坪 83.95 ㎡ |
※現在空室情報はございません |
※現在空室情報は 確認する |
|||||
|
4F
(B区画) |
20.55 坪 67.93 ㎡ |
※現在空室情報はございません |
※現在空室情報は 確認する |
|||||
|
5F
(A区画) |
25.39 坪 83.93 ㎡ |
※現在空室情報はございません |
※現在空室情報は 確認する |
|||||
|
5F
(B区画) |
20.55 坪 67.93 ㎡ |
※現在空室情報はございません |
※現在空室情報は 確認する |
|||||
| 6F |
28.92 坪 95.6 ㎡ |
※現在空室情報はございません |
※現在空室情報は 確認する |
|||||
| 8F |
28.92 坪 95.6 ㎡ |
※現在空室情報はございません |
※現在空室情報は 確認する |
|||||
| 9F |
28.92 坪 95.61 ㎡ |
※現在空室情報はございません |
※現在空室情報は 確認する |
|||||
| 10F |
28.92 坪 95.6 ㎡ |
※現在空室情報はございません |
※現在空室情報は 確認する |
|||||
| 12F |
28.92 坪 95.6 ㎡ |
※現在空室情報はございません |
※現在空室情報は 確認する |
|||||
お問い合わせ
似た条件の物件はこちら
-
グリーンパーク日本橋参番館
東京都中央区日本橋大伝馬町6-2
坪数:16.35 坪
坪単価:23,242 円(坪)
-
横山町ビル
東京都中央区日本橋横山町1-1
坪数:21.35 坪
坪単価:23,419 円(坪)
-
ACE日本橋ビル
東京都中央区日本橋久松町13-5
坪数:17 坪
坪単価:13,000 円(坪)
-
茄子倉ビル
東京都中央区日本橋馬喰町1-9-8
坪数:17.79 坪
坪単価:12,000 円(坪)
-
PORT ONE 茅場町
東京都中央区日本橋箱崎町5-15
坪数:16.75 坪
坪単価:24,000 円(坪)
-
オーキッドプレイス蛎殻町ビル
東京都中央区日本橋蛎殻町1-4-1
坪数:24.87 坪
坪単価:16,000 円(坪)
-
FSビル
東京都中央区日本橋人形町2-21-1
坪数:22.05 坪
坪単価:11,000 円(坪)
-
Ikigai Bashi ビル
東京都中央区日本橋大伝馬町1-7
坪数:21.86 坪
坪単価:22,000 円(坪)
-
エムジー小伝馬町ビル
東京都中央区日本橋小伝馬町7-10
坪数:24.71 坪
坪単価:10,500 円(坪)
-
メゾン日本橋
東京都中央区日本橋浜町2-11-2
坪数:21.06 坪
坪単価:11,396 円(坪)
関連エリアから探す
- 日本橋大伝馬町
- 日本橋蛎殻町
- 日本橋小網町
- 日本橋小伝馬町
- 日本橋小舟町
- 日本橋富沢町
- 日本橋人形町
- 日本橋箱崎町
- 日本橋堀留町
- 日本橋中洲
- 日本橋馬喰町
- 日本橋浜町
- 日本橋久松町
- 日本橋横山町
- 東日本橋