TMSビル(物件No:61185035)
TMSビルは、渋谷区渋谷にある貸事務所物件です。最寄駅は各線渋谷駅です。1984年竣工で基準階が44.68坪の賃貸オフィスビルです。天井の高さは2450mmとなっています。トイレは室外男女別で、空調は個別空調です。エレベーターは1基あります。渋谷駅の近くで数多くの店舗が立ち並び、交通アクセスもよく利便性の高い渋谷区渋谷の貸事務所です。
| 階 | 面積 | 賃料 | 共益費 | 敷金 | 入居日 | お問合せ | お気に入り |
|---|---|---|---|---|---|---|---|
| 8F |
42.88 坪 141.75 ㎡ |
986,240 円 23,000 円(坪) |
無 |
9,862,400 円 10 ヶ月 |
即日 |
|
|
| 階 | 面積 | 賃料 | 共益費 | 敷金 | 入居日 | お問合せ | お気に入り |
|---|---|---|---|---|---|---|---|
| 8F |
42.88 坪 141.75 ㎡ |
986,240 円 23,000 円(坪) |
無 |
9,862,400 円 10 ヶ月 |
即日 |
|
|
-
物件情報
-
設備情報
- トイレ
- 室外男女別
- 床
- -
- 空調
- 個別空調
- セキュリティ
- 無
- 駐車場
- 無
- 会議室
- -
- エレベーター
- 1基
- 天井高
- 2450mm
-
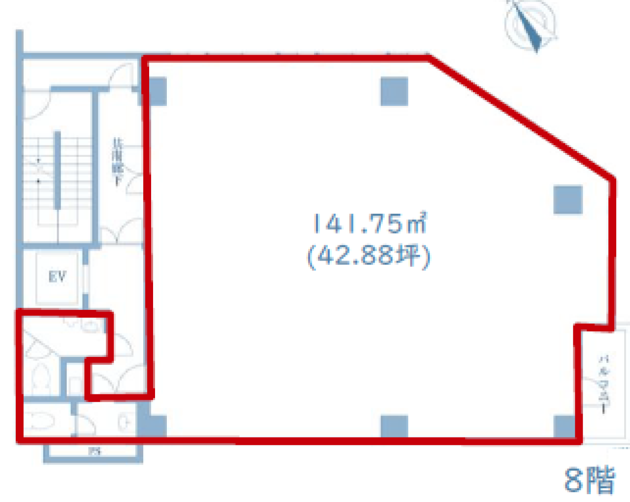
間取り図
-
近隣相場情報
渋谷3丁目(40~50坪)の相場
24000 円 (坪)
※ビルサク調べ
周辺施設情報
| コンビニ |
ローソン/渋谷二丁目/300m(徒歩4分) ファミリーマート/渋谷クロスタワー店/350m(徒歩4分) |
|---|---|
| 郵便局/銀行 |
信用組合/警視庁職員信用組合 渋谷支店/450m(徒歩5分) 西武信用金庫/渋谷東支店/500m(徒歩6分) |
| 飲食店 |
横浜家系ラーメン 侍 渋谷本店/10時00分~15時00分/550m(徒歩7分) わたら瀬/11時30分~14時00分、17時00分~0時00分/550m(徒歩7分) |
| カフェ |
カフェドクリエ/渋谷3丁目店/[営業時間]【平日】7:00~21:00【土日祝】7:00~21:00 [備考]加熱式たばこ・喫煙専用室あり/500m(徒歩6分) スターバックス/渋谷ヒカリエ ShinQs店/[営業時間]7:30~21:00 [休業日]不定休 [備考]無線LAN:STARBUCKS/au/Wi2 300/700m(徒歩9分) |
| コインパーキング |
ユアー・パーキング/渋谷区東第4 [料金] 【全日】 08時~20時 20分/300円 【全日】20時~08時 60分/100円 [最大料金] 月~土:昼間最大(08時~20時の間)2,600円 日 祝:昼間最大(08時~20時の間)1,500円 全日:夜間最大(20時~08時の間)500円 [台数]5 ユアーズ・パーキング/渋谷3丁目 [料金] 8~24時 400円/30分 [台数]2台 |
周辺地図
TMSビルは、渋谷区渋谷にある貸事務所物件です。最寄駅は各線渋谷駅です。1984年竣工で基準階が44.68坪の賃貸オフィスビルです。天井の高さは2450mmとなっています。トイレは室外男女別で、空調は個別空調です。エレベーターは1基あります。渋谷駅の近くで数多くの店舗が立ち並び、交通アクセスもよく利便性の高い渋谷区渋谷の貸事務所です。
全フロア情報
更新日:2026年1月6日
| 階 | 面積 | 賃料 | 共益費 | 敷金 | 入居日 | お問合せ | お気に入り | |
|---|---|---|---|---|---|---|---|---|
| 1F |
25 坪 82.64 ㎡ |
※現在空室情報はございません |
※現在空室情報は 確認する |
|||||
|
2F
(201区画) |
41.04 坪 135.67 ㎡ |
※現在空室情報はございません |
※現在空室情報は 確認する |
|||||
|
3F
(301区画) |
44.67 坪 147.67 ㎡ |
※現在空室情報はございません |
※現在空室情報は 確認する |
|||||
|
4F
(401区画) |
44.68 坪 147.7 ㎡ |
1,027,640 円 23,000 円(坪) |
相談 |
10,276,400 円 10 ヶ月 |
2026/04 |
|
|
|
| 5F |
44.67 坪 147.67 ㎡ |
※現在空室情報はございません |
※現在空室情報は 確認する |
|||||
| 6F |
44.68 坪 147.7 ㎡ |
1,027,640 円 23,000 円(坪) |
相談 |
10,276,400 円 10 ヶ月 |
2026/04 |
|
|
|
| 7F |
44.67 坪 135.67 ㎡ |
1,027,410 円 23,000 円(坪) |
無 |
10,274,100 円 10 ヶ月 |
即日 |
|
|
|
|
7F
(701区画) |
44.67 坪 135.67 ㎡ |
1,094,415 円 24,500 円(坪) |
0 円 0 円(坪) |
10,944,150 円 10 ヶ月 |
相談 |
|
|
|
| 8F |
42.88 坪 141.75 ㎡ |
986,240 円 23,000 円(坪) |
無 |
9,862,400 円 10 ヶ月 |
即日 |
|
|
|
|
8F
(801区画) |
42.88 坪 141.75 ㎡ |
1,050,560 円 24,500 円(坪) |
0 円 0 円(坪) |
10,505,600 円 10 ヶ月 |
相談 |
|
|
|
|
9F
(901区画) |
44.67 坪 147.67 ㎡ |
※現在空室情報はございません |
※現在空室情報は 確認する |
|||||
お問い合わせ
似た条件の物件はこちら
-
冨貴ビル
東京都渋谷区神宮前6-9-1
坪数:47.25 坪
坪単価:27,937 円(坪)
-
倉島渋谷ビル
東京都渋谷区渋谷2-3-8
坪数:49.26 坪
坪単価:18,000 円(坪)
-
コエル渋谷公園通り
東京都渋谷区神南1-20-8
坪数:50.75 坪
坪単価:43,000 円(坪)
-
モドマルシェ渋谷桜丘
東京都渋谷区桜丘町10-4
坪数:33.71 坪
坪単価:18,000 円(坪)
-
桑原ビル
東京都渋谷区神宮前3-24-3
坪数:42.20 坪
坪単価:16,000 円(坪)
-
丸栄ビル
東京都渋谷区神南1-9-7
坪数:32.83 坪
坪単価:16,601 円(坪)
-
ABC-MART公園通りビル
東京都渋谷区神南1-20-9
坪数:39.22 坪
坪単価:33,000 円(坪)
-
第3田中ビル
東京都渋谷区宇田川町31-3
坪数:39 坪
坪単価:38,974 円(坪)
-
(仮称)S-Frontier渋谷青山通り
東京都渋谷区渋谷2-10-15
坪数:34.17 坪
坪単価:43,000 円(坪)
-
グリーン・ファンタジアビル
東京都渋谷区神宮前1-11-11
坪数:36.11 坪
坪単価:13,847 円(坪)