ワールドビジネスセンター新宿(物件No:61181166)
ワールドビジネスセンター新宿は新宿区大久保にある地上10階建ての賃貸事務所です。最寄駅はJR線の新大久保駅から徒歩9分、都営大江戸線の東新宿駅から徒歩4分、東京メトロ副都心線の東新宿駅から徒歩2分、東京メトロ副都心線の西早稲田駅から徒歩10分、西武新宿線の西武新宿駅から徒歩11分です。1990年竣工の鉄骨鉄筋コンクリート造です。耐震設計となっている、複数路線利用可能なアクセスの良い新宿区大久保の賃貸オフィスです。
| 階 | 面積 | 賃料 | 共益費 | 敷金 | 入居日 | お問合せ | お気に入り |
|---|---|---|---|---|---|---|---|
|
5F
(502区画) |
14.9 坪 49.25 ㎡ |
160,000 円 10,738 円(坪) |
10,000 円 671 円(坪) |
800,000 円 5 ヶ月 |
即日 |
|
|
| 階 | 面積 | 賃料 | 共益費 | 敷金 | 入居日 | お問合せ | お気に入り |
|---|---|---|---|---|---|---|---|
|
5F
(502区画) |
14.9 坪 49.25 ㎡ |
160,000 円 10,738 円(坪) |
10,000 円 671 円(坪) |
800,000 円 5 ヶ月 |
即日 |
|
|
-
物件情報
-
設備情報
- トイレ
- -
- 床
- -
- 空調
- -
- セキュリティ
- -
- 駐車場
- -
- 会議室
- -
- エレベーター
- -
- 天井高
- -
-
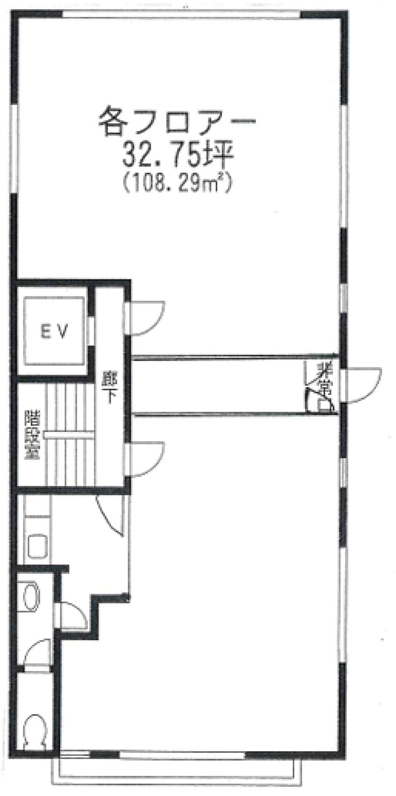
間取り図
-
近隣相場情報
大久保1丁目(20坪以下)の相場
19094 円 (坪)
※ビルサク調べ
周辺施設情報
| コンビニ |
ファミリーマート/新宿大久保一丁目店/68m(徒歩1分) ローソン/新大久保/160m(徒歩2分) |
|---|---|
| 郵便局/銀行 |
ゆうちょ/ATM 本店 ファミリーマート新宿大久保一丁目店内出張所/[ATM]平日 0:05~23:55 土曜日 0:05~23:55 日曜日・休日 0:05~23:55/68m(徒歩1分) ローソン銀行/新大久保共同出張所/[営業時間]24時間/160m(徒歩2分) |
| 飲食店 |
すき家 大久保二丁目店/24 時間営業/75m(徒歩1分) 水産市場/15時30分~21時00分/120m(徒歩2分) |
| カフェ |
タリーズ/イーホテル東新宿店/[営業時間]平日:7:30~19:00 土:7:30~19:00 日祝:7:30~19:00 /450m(徒歩6分) ドトール/西武新宿北口店/■通常営業時間 平日 7:00~21:00 土曜 8:00~20:00 日祝 8:00~20:00/1000m(徒歩12分) |
| コインパーキング |
タイムズ/大久保第7 [料金] [全日]通常料金 / 8:00~19:00 20分 220円 19:00~8:00 30分 220円 [最大料金] 8:00~19:00 最大料金1650円 19:00~8:00 最大料金550円| [台数]6 エコロパーク/大久保第32 [料金] [料金]全日 昼 8時~22時 10分200円, 全日 夜 22時~8時 60分100円 [最大料金] 全日 12時間 最大2600円, [台数]3 |
周辺地図
ワールドビジネスセンター新宿は新宿区大久保にある地上10階建ての賃貸事務所です。最寄駅はJR線の新大久保駅から徒歩9分、都営大江戸線の東新宿駅から徒歩4分、東京メトロ副都心線の東新宿駅から徒歩2分、東京メトロ副都心線の西早稲田駅から徒歩10分、西武新宿線の西武新宿駅から徒歩11分です。1990年竣工の鉄骨鉄筋コンクリート造です。耐震設計となっている、複数路線利用可能なアクセスの良い新宿区大久保の賃貸オフィスです。
全フロア情報
更新日:2026年1月23日
| 階 | 面積 | 賃料 | 共益費 | 敷金 | 入居日 | お問合せ | お気に入り | |
|---|---|---|---|---|---|---|---|---|
|
3F
(302区画) |
12.87 坪 42.55 ㎡ |
※現在空室情報はございません |
※現在空室情報は 確認する |
|||||
|
5F
(502区画) |
14.9 坪 49.25 ㎡ |
160,000 円 10,738 円(坪) |
10,000 円 671 円(坪) |
800,000 円 5 ヶ月 |
即日 |
|
|
|
|
9F
(901区画) |
32.75 坪 108.26 ㎡ |
※現在空室情報はございません |
※現在空室情報は 確認する |
|||||
|
10F
(1001区画) |
32.75 坪 108.26 ㎡ |
※現在空室情報はございません |
※現在空室情報は 確認する |
|||||
お問い合わせ
似た条件の物件はこちら
-
ストークプラザ諏訪台
東京都新宿区高田馬場1-20-10
坪数:11.2 坪
坪単価:10,714 円(坪)
-
縄田ビル
東京都新宿区高田馬場1-34-2
坪数:10.1 坪
坪単価:15,000 円(坪)
-
高田馬場ビル
東京都新宿区高田馬場1-26-12
坪数:11.65 坪
坪単価:12,876 円(坪)
-
大久保フジビル
東京都新宿区大久保2-7-1
坪数:14.43 坪
坪単価:13,423 円(坪)
-
TFT高田馬場駅前ビル
東京都新宿区高田馬場1-33-15
坪数:17.94 坪
坪単価:26,350 円(坪)
-
ラ・ヴニール目白
東京都新宿区下落合3-6-13
坪数:17.03 坪
坪単価:12,449 円(坪)
-
プラザ新大樹
東京都新宿区大久保2-1-8
坪数:16.5 坪
坪単価:17,500 円(坪)
-
平和相互ビル
東京都新宿区高田馬場1-33-6
坪数:18 坪
坪単価:15,000 円(坪)
-
NOBU西早稲田
東京都新宿区西早稲田1-8-14
坪数:18.22 坪
坪単価:16,465 円(坪)
-
SSTビル
東京都新宿区高田馬場4-2-31
坪数:10.89 坪
坪単価:18,365 円(坪)