グロービル青山(物件No:61080195)
グロービル青山は港区南青山にある地下1階、地上9階建ての貸店舗事務所です。最寄駅は東京メトロ千代田線の表参道駅から徒歩10分、東京メトロ銀座線の表参道駅から徒歩10分、東京メトロ半蔵門線の表参道駅から徒歩10分です。1991年竣工の鉄骨鉄筋コンクリート造です。設備としては、エレベーターが1基あります。空調は個別空調です。耐震設計となっている、複数路線利用可能なアクセスの良い港区南青山の貸店舗事務所です。
-
物件情報
-
設備情報
- トイレ
- 室内男女共用
- 床
- -
- 空調
- 個別空調
- セキュリティ
- -
- 駐車場
- -
- 会議室
- -
- エレベーター
- 1基
- 天井高
- -
-
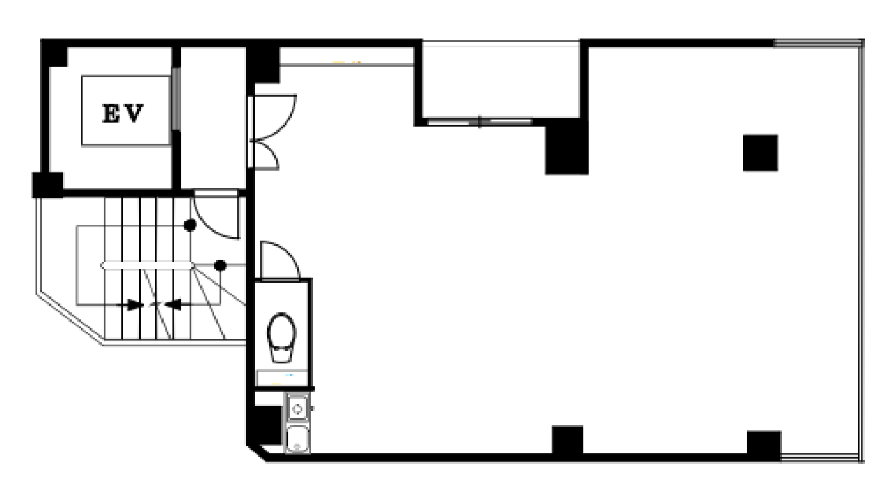
間取り図
-
近隣相場情報
南青山6丁目(20坪以下)の相場
24336 円 (坪)
※ビルサク調べ
周辺施設情報
コンビニ |
セブンイレブン/渋谷東4丁目/900m(徒歩12分) ファミリーマート/南青山六丁目店/200m(徒歩2分) |
---|---|
郵便局/銀行 |
郵便局/ATM ファミリーマート西麻布霞町店内出張所/[駐車場]なし [取扱]ATM/カードATM/500m(徒歩6分) 三菱UFJ銀行/ATM 広尾ガーデンヒルズ/[営業時間] [ATM]平日 7:00~24:00 土曜日 7:00~24:00 日・祝日 7:00~24:00 *毎月第2土曜日の21:00~翌朝7:00はご利用いただけません/900m(徒歩12分) |
飲食店 |
リストランテ濱﨑/[木~土]12:00~14:00、18:00~21:30 [月~水]18:00~21:30/1100m(徒歩14分) 美寿/12時00分~14時00分、18時00分~23時00分/450m(徒歩6分) |
カフェ |
タリーズ/日本赤十字社医療センター店/[営業時間]平日:8:00~20:00 土 :9:00~19:00 日祝:9:00~19:00 [備考]Tully's Wi-Fi/750m(徒歩10分) Rainy Day Bookstore & Cafe/11時00分~19時00分/300m(徒歩4分) |
コインパーキング |
ナビパーク/渋谷第2 [料金] 全曜日 24:00~24:00 15分/400円 [最大料金] オールタイム 当日最大(日・祝)2,600円 夜間最大(全曜日)18:00~8:00 600円 繰返し有 [台数]5台 三井のリパーク/西麻布2丁目第8 [料金] 平日 08:00~00:00 15分/400円 平日 00:00~08:00 60分/100円 土日祝 08:00~00:00 15分/400円 土日祝 00:00~08:00 60分/100円 [最大料金] 【月~金】8:00~0:00以内 最大料金2000円 【土日祝】8:00~0:00以内 最大料金2000円 [台数]10 |
周辺地図
グロービル青山は港区南青山にある地下1階、地上9階建ての貸店舗事務所です。最寄駅は東京メトロ千代田線の表参道駅から徒歩10分、東京メトロ銀座線の表参道駅から徒歩10分、東京メトロ半蔵門線の表参道駅から徒歩10分です。1991年竣工の鉄骨鉄筋コンクリート造です。設備としては、エレベーターが1基あります。空調は個別空調です。耐震設計となっている、複数路線利用可能なアクセスの良い港区南青山の貸店舗事務所です。
全フロア情報
更新日:2025年10月17日
階 | 面積 | 賃料 | 共益費 | 敷金 | 入居日 | お問合せ | お気に入り | |
---|---|---|---|---|---|---|---|---|
1-2F |
30.03 坪 99.27 ㎡ |
1,500,000 円 49,950 円(坪) |
20,000 円 666 円(坪) |
3,000,000 円 2 ヶ月 |
相談 |
|
|
|
3F |
17.67 坪 58.4 ㎡ |
※現在空室情報はございません |
※現在空室情報は 確認する |
|||||
5F |
9.22 坪 30.48 ㎡ |
※現在空室情報はございません |
※現在空室情報は 確認する |
お問い合わせ
似た条件の物件はこちら
-
青山アレー
東京都港区南青山6-4-6
坪数:19.33 坪
坪単価:23,280 円(坪)
-
カーサ青山
東京都港区南青山3-15-4
坪数:16.64 坪
坪単価:16,390 円(坪)
-
ベルメーゾン
東京都港区南青山1-14-7
坪数:21.46 坪
坪単価:20,334 円(坪)
-
ティアック青山
東京都港区北青山3-10-21
坪数:16.52 坪
坪単価:22,397 円(坪)
-
Uビル
東京都港区北青山2-12-23
坪数:17.46 坪
坪単価:16,609 円(坪)
-
アヌシー青山
東京都港区南青山2-6-12
坪数:17.31 坪
坪単価:23,000 円(坪)
-
リーラ乃木坂
東京都港区南青山1-15-18
坪数:17.2 坪
坪単価:18,000 円(坪)
-
Mビル
東京都港区南青山1-23-13
坪数:16.47 坪
坪単価:13,358 円(坪)
-
シャトー青山第3
東京都港区南青山4-2-4
坪数:20.78 坪
坪単価:13,715 円(坪)
-
ウィン青山BIZ+
東京都港区南青山2-2-15
坪数:16.08 坪
坪単価:24,000 円(坪)