神宮前董友ビルⅠ(物件No:52913327)
神宮前董友ビルⅠ(旧:原宿董友ビル)は、渋谷区神宮前にある地下1階、地上8階建ての賃貸事務所です。最寄駅は東京メトロ千代田線の明治神宮前〈原宿〉駅から徒歩3分、JR山手線の原宿駅から徒歩6分、東京メトロ副都心線の明治神宮前〈原宿〉駅から徒歩3分です。1986年9月竣工の基準階面積が52.7坪の鉄骨鉄筋コンクリート造です。設備としては、エレベーターが1基あります。セキュリティは機械警備です。トイレは室内男女別です。空調は個別空調です。天高は2650mmです。耐震設計となっている、最寄駅から近くて便利な渋谷区神宮前の賃貸オフィスです。
| 階 | 面積 | 賃料 | 共益費 | 敷金 | 入居日 | お問合せ | お気に入り |
|---|---|---|---|---|---|---|---|
| 8F |
54.44 坪 179.97 ㎡ |
相談 |
217,760 円 4,000 円(坪) |
12ヶ月 |
2026/04/01 |
|
|
| 階 | 面積 | 賃料 | 共益費 | 敷金 | 入居日 | お問合せ | お気に入り |
|---|---|---|---|---|---|---|---|
| 8F |
54.44 坪 179.97 ㎡ |
相談 |
217,760 円 4,000 円(坪) |
12ヶ月 |
2026/04/01 |
|
|
-
物件情報
- 住所
- 東京都渋谷区神宮前6-10-9
- 最寄り駅
-
東京メトロ千代田線
明治神宮前〈原宿〉駅
徒歩3分
JR山手線 原宿駅 徒歩6分
東京メトロ副都心線 明治神宮前〈原宿〉駅 徒歩3分
- 竣工
- 1986年
- 耐震
- 新耐震基準
- 規模・構造
- B1F - 8F 鉄骨鉄筋コンクリート造
-
設備情報
- トイレ
- 室内男女別
- 床
- フリーアクセス
- 空調
- 個別空調
- セキュリティ
- 有
- 駐車場
- -
- 会議室
- -
- エレベーター
- 1基
- 天井高
- 3255mm
-
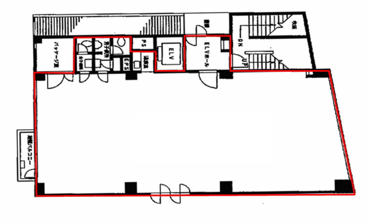
間取り図
-
近隣相場情報
神宮前6丁目(50~100坪)の相場
30275 円 (坪)
※ビルサク調べ
周辺施設情報
| コンビニ |
ファミリーマート/神宮前店/300m(徒歩4分) ミニストップ/神宮前1丁目店/400m(徒歩5分) |
|---|---|
| 郵便局/銀行 |
みずほ銀行/ATM 原宿駅前出張所/[営業時間] [ATM]平日 0:00~24:00 土曜日 0:00~22:00 日曜日 8:00~21:00 祝日・振替休日 曜日に準ずる 備考 *月曜日の0:00~7:00はご利用いただけません。*第1・第4土曜日の3:00~5:00はご利用いただけません。*通帳はご利用いただけません/300m(徒歩5分) イーネット/ファミリーマート表参道南/[営業時間]0:00~24:00/270m(徒歩3分) |
| 飲食店 |
三代目鳥メロ 原宿店/16時00分~21時00分/400m(徒歩7分) 京橋千疋屋 表参道原宿店/11時00分~21時00分/350m(徒歩4分) |
| カフェ |
CAFE SEE MORE GLASS/12時00分~18時00分/250m(徒歩3分) ラルフズ コーヒー 表参道/10時00分~19時00分/400m(徒歩5分) |
| コインパーキング |
TOBU PARK/神宮前6丁目 [料金] オールタイム 200円/12分 [最大料金] 入庫後6時間最大 2,400円 24:00~8:00 夜間最大 400円 ※最大料金は繰り返し適用となります [台数]2台 三井のリパーク/神宮前6丁目 [料金] 全日 02:00~08:00 30分/100円 全日 08:00~02:00 10分/300円 [台数]9 |
周辺地図
神宮前董友ビルⅠ(旧:原宿董友ビル)は、渋谷区神宮前にある地下1階、地上8階建ての賃貸事務所です。最寄駅は東京メトロ千代田線の明治神宮前〈原宿〉駅から徒歩3分、JR山手線の原宿駅から徒歩6分、東京メトロ副都心線の明治神宮前〈原宿〉駅から徒歩3分です。1986年9月竣工の基準階面積が52.7坪の鉄骨鉄筋コンクリート造です。設備としては、エレベーターが1基あります。セキュリティは機械警備です。トイレは室内男女別です。空調は個別空調です。天高は2650mmです。耐震設計となっている、最寄駅から近くて便利な渋谷区神宮前の賃貸オフィスです。
全フロア情報
更新日:2026年3月10日
| 階 | 面積 | 賃料 | 共益費 | 敷金 | 入居日 | お問合せ | お気に入り | |
|---|---|---|---|---|---|---|---|---|
| 1F |
52.7 坪 174.21 ㎡ |
※現在空室情報はございません |
※現在空室情報は 確認する |
|||||
| 3F |
52.7 坪 174.21 ㎡ |
※現在空室情報はございません |
※現在空室情報は 確認する |
|||||
| 4F |
52.7 坪 174.21 ㎡ |
※現在空室情報はございません |
※現在空室情報は 確認する |
|||||
| 6F |
52.7 坪 174.21 ㎡ |
※現在空室情報はございません |
※現在空室情報は 確認する |
|||||
| 7F |
54.44 坪 179.97 ㎡ |
相談 |
217,760 円 4,000 円(坪) |
12ヶ月 |
2026/07/01 |
|
|
|
| 8F |
54.44 坪 179.97 ㎡ |
相談 |
217,760 円 4,000 円(坪) |
12ヶ月 |
2026/04/01 |
|
|
|
お問い合わせ
似た条件の物件はこちら
-
オンデンフラット
東京都渋谷区神宮前1-10-9
坪数:39.15 坪
坪単価:19,970 円(坪)
-
第一暁ビルディング
東京都渋谷区道玄坂1-19-9
坪数:58.6 坪
坪単価:25,341 円(坪)
-
倉島渋谷ビル
東京都渋谷区渋谷2-3-8
坪数:49.26 坪
坪単価:18,000 円(坪)
-
コエル渋谷公園通り
東京都渋谷区神南1-20-8
坪数:50.75 坪
坪単価:43,000 円(坪)
-
ステージ神宮前Ⅱ
東京都渋谷区神宮前2-12-2
坪数:53.34 坪
坪単価:20,000 円(坪)
-
小林ビルディング
東京都渋谷区渋谷1-14-11
坪数:62.1 坪
坪単価:28,986 円(坪)
-
池田ビル
東京都渋谷区桜丘町21-2
坪数:45.76 坪
坪単価:20,000 円(坪)
-
桑原ビル
東京都渋谷区神宮前3-24-3
坪数:42.20 坪
坪単価:16,000 円(坪)
-
原宿山田ビル
東京都渋谷区神宮前6-12-23
坪数:41.5 坪
坪単価:23,000 円(坪)
-
ABC-MART公園通りビル
東京都渋谷区神南1-20-9
坪数:39.22 坪
坪単価:33,000 円(坪)