佐竹(物件No:52035364)
佐竹は、渋谷区元代々木町にある貸事務所物件です。最寄り駅は、東京メトロ千代田線、小田急小田原線の代々木上原駅です。1991年竣工の賃貸オフィスビルです。床はタイルカーペットとなっております。空調は個別空調で、トイレは室外にあります。エレベーターは1基あります。代々木上原駅から徒歩3分の、渋谷区元代々木町にある貸事務所です。
| 階 | 面積 | 賃料 | 共益費 | 敷金 | 入居日 | お問合せ | お気に入り | |
|---|---|---|---|---|---|---|---|---|
|
2F
(201区画) |
43.23 坪 142.91 ㎡ |
※現在空室情報はございません |
※現在空室情報は 確認する |
|||||
-
物件情報
-
設備情報
- トイレ
- 室外
- 床
- タイルカーペット
- 空調
- 個別空調
- セキュリティ
- -
- 駐車場
- -
- 会議室
- -
- エレベーター
- 1基
- 天井高
- -
-
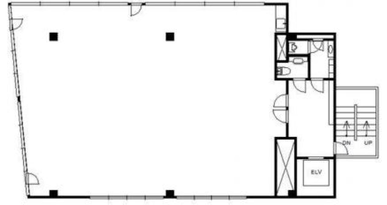
間取り図
-
近隣相場情報
元代々木町12丁目(40~50坪)の相場
調査中
周辺施設情報
| コンビニ |
まいばすけっと/代々木八幡駅西店/250m(徒歩3分) ファミリーマート/代々木上原駅前店/400m(徒歩5分) |
|---|---|
| 郵便局/銀行 |
セブン銀行/上原店/[営業時間]24時間営業 [備考]1 台/500m(徒歩6分) みずほ銀行/ATM 代々木上原駅前出張所/[営業時間] [ATM]平日 6:00~26:00 土曜日 8:00~22:00 日曜日 8:00~21:00 祝日・振替休日 8:00~21:00 備考 *月曜日の6:00~7:00はご利用いただけません/300m(徒歩4分) |
| 飲食店 |
Nine stories/ 縁家とりつぎ/11時30分~14時00分、17時30分~23時00分/140m(徒歩2分) |
| カフェ |
押競満寿/9時00分~17時00分/280m(徒歩3分) シガニーベイクアンドコーヒー/10時00分~21時00分/300m(徒歩4分) |
| コインパーキング |
NTTル・パルク/元代々木町第1 [料金] 昼間 7:00-22:00 30分 500円 夜間 22:00-7:00 60分 100円 [最大料金] 夜間最大 500円(繰返しOK) [台数]:3台 コインパーク/元代々木町 [料金] 【月~土】■通常料金【オールタイム [24時間]】15分/300円 【日祝】■通常料金【オールタイム [24時間]】15分/300円 [最大料金] 【月~土】■最大料金【8:00~19:00】3800円【19:00~8:00】600円 【日祝】■最大料金【8:00~19:00】2400円【19:00~8:00】600円 [台数] [車: 6台] |
周辺地図
佐竹は、渋谷区元代々木町にある貸事務所物件です。最寄り駅は、東京メトロ千代田線、小田急小田原線の代々木上原駅です。1991年竣工の賃貸オフィスビルです。床はタイルカーペットとなっております。空調は個別空調で、トイレは室外にあります。エレベーターは1基あります。代々木上原駅から徒歩3分の、渋谷区元代々木町にある貸事務所です。
全フロア情報
更新日:2025年11月10日
| 階 | 面積 | 賃料 | 共益費 | 敷金 | 入居日 | お問合せ | お気に入り | |
|---|---|---|---|---|---|---|---|---|
|
2F
(201区画) |
43.23 坪 142.91 ㎡ |
※現在空室情報はございません |
※現在空室情報は 確認する |
|||||
お問い合わせ
似た条件の物件はこちら
-
富ヶ谷テラス
東京都渋谷区富ヶ谷2-21-8
坪数:47.18 坪
坪単価:28,499 円(坪)
-
初台共同ビル
東京都渋谷区本町1-13-3
坪数:42.8 坪
坪単価:16,799 円(坪)
-
TRUST VALUE 代々木上原
東京都渋谷区上原3-1-16
坪数:39.28 坪
坪単価:20,000 円(坪)
-
代々木上原ウエストビル
東京都渋谷区大山町45-18
坪数:48.74 坪
坪単価:17,000 円(坪)
-
ラビアンヌビル
東京都渋谷区神山町6-4
坪数:43.65 坪
坪単価:35,000 円(坪)
-
オークハウス
東京都渋谷区上原3-6-6
坪数:34.2 坪
坪単価:15,000 円(坪)
-
第30田中ビル
東京都渋谷区初台1-49-1
坪数:34.97 坪
坪単価:12,868 円(坪)
-
東和富ヶ谷ビル
東京都渋谷区富ヶ谷1-18-4
坪数:45.22 坪
坪単価:28,000 円(坪)
-
ユースクエア渋谷神山町
東京都渋谷区神山町7-12
坪数:33.45 坪
坪単価:33,000 円(坪)
-
P.Bビル
東京都渋谷区富ヶ谷2-24-2
坪数:51.48 坪
坪単価:21,368 円(坪)