木坂ビル(物件No:51986129)
木坂ビルは台東区下谷にある地下1階、地上7階建ての賃貸事務所です。最寄駅は東京メトロ日比谷線の入谷駅から徒歩5分、JR線の鶯谷駅から徒歩5分です。1993年2月竣工の鉄骨鉄筋コンクリート造です。設備としては、エレベーターが1基あり、駐車場もあります。耐震設計となっている、ビジネス街として人気のある台東区下谷の賃貸オフィスです。
-
物件情報
-
設備情報
- トイレ
- 室内男女別
- 床
- -
- 空調
- -
- セキュリティ
- -
- 駐車場
- 有
- 会議室
- -
- エレベーター
- 1基
- 天井高
- -
-
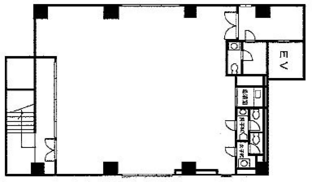
間取り図
-
近隣相場情報
下谷1丁目(30~40坪)の相場
17936 円 (坪)
※ビルサク調べ
周辺地図
木坂ビルは台東区下谷にある地下1階、地上7階建ての賃貸事務所です。最寄駅は東京メトロ日比谷線の入谷駅から徒歩5分、JR線の鶯谷駅から徒歩5分です。1993年2月竣工の鉄骨鉄筋コンクリート造です。設備としては、エレベーターが1基あり、駐車場もあります。耐震設計となっている、ビジネス街として人気のある台東区下谷の賃貸オフィスです。
全フロア情報
更新日:2025年10月29日
| 階 | 面積 | 賃料 | 共益費 | 敷金 | 入居日 | お問合せ | お気に入り | |
|---|---|---|---|---|---|---|---|---|
| B1F |
37.21 坪 123.01 ㎡ |
※現在空室情報はございません |
※現在空室情報は 確認する |
|||||
| 3F |
56.44 坪 186.58 ㎡ |
※現在空室情報はございません |
※現在空室情報は 確認する |
|||||
| 7F |
40.77 坪 134.78 ㎡ |
※現在空室情報はございません |
※現在空室情報は 確認する |
|||||
お問い合わせ
似た条件の物件はこちら
-
メックワンビル
東京都台東区入谷1-24-8
坪数:31.65 坪
坪単価:6,825 円(坪)
-
(仮称)竜泉2丁目ビル
東京都台東区竜泉2-20-6
坪数:31.74 坪
坪単価:19,000 円(坪)
-
小林ビル
東京都台東区根岸3-6-3
坪数:35.94 坪
坪単価:22,259 円(坪)
-
メゾン根岸
東京都台東区根岸3-3-18
坪数:40.67 坪
坪単価:12,294 円(坪)
-
K・Kビル
東京都台東区入谷1-2-3
坪数:36.85 坪
坪単価:9,819 円(坪)
-
根岸クロスタワー
東京都台東区下谷1-13-8
坪数:36.24 坪
坪単価:17,936 円(坪)
-
コージーサンブン
東京都台東区下谷3-5-1
坪数:45.85 坪
坪単価:7,931 円(坪)