新宿野村ビル(物件No:51983197)
新宿野村ビルは、新宿区西新宿にある貸事務所物件で最寄り駅は各線新宿駅と地下鉄大江戸線都庁前駅、丸ノ内線西新宿駅です。西武新宿線西武新宿駅も利用可能です。1978年竣工で、基準階が381坪の賃貸オフィスビルです。床はOAフロアで天井の高さは2525mm。トイレは男女別で、空調はセントラル空調です。エレベーターは28基あり、セキュリティは有人警備、機械警備となっています。駐車場が利用可能です。新宿駅近くで交通アクセスが良く、多種多様な店舗が立ち並んでおり非常に利便性の高い立地が特長の新宿区西新宿の貸事務所です。
| 階 | 面積 | 賃料 | 共益費 | 敷金 | 入居日 | お問合せ | お気に入り |
|---|---|---|---|---|---|---|---|
|
26F
(2603区画) |
45.3 坪 149.75 ㎡ |
相談 |
相談 |
相談 |
2026/04/01 |
|
|
| 階 | 面積 | 賃料 | 共益費 | 敷金 | 入居日 | お問合せ | お気に入り |
|---|---|---|---|---|---|---|---|
|
26F
(2603区画) |
45.3 坪 149.75 ㎡ |
相談 |
相談 |
相談 |
2026/04/01 |
|
|
-
物件情報
-
設備情報
- トイレ
- -
- 床
- フリーアクセス
- 空調
- セントラル空調
- セキュリティ
- 有
- 駐車場
- 有
- 会議室
- 有
- エレベーター
- 28基
- 天井高
- 2525mm
-
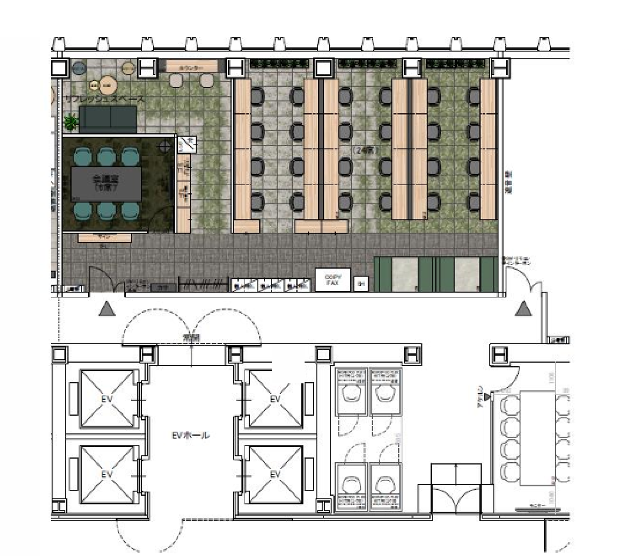
間取り図
-
近隣相場情報
西新宿1丁目(40~50坪)の相場
34002 円 (坪)
※ビルサク調べ
周辺施設情報
| コンビニ |
ファミリーマート/新宿野村ビル店/24m(徒歩1分) ローソン/新宿センタービル西/350m(徒歩4分) |
|---|---|
| 郵便局/銀行 |
伊予銀行/新宿支店/[窓口]平日 9:00~15:00 土 日祝 [ATM]平日 8:45~17:00 土 日祝/120m(徒歩1分) 郵便局/ATM ファミリーマート新宿損保ジャパン店内出張所/[ATM]平日0:05~23:55、土曜0:05~23:55、日曜0:05~23:55/220m(徒歩3分) |
| 飲食店 |
土佐料理 祢保希/11時30分~14時30分、16時30分~22時30分/24m(徒歩1分) 創采ダイニング 卯乃家 西新宿野村ビル店/11時30分~14時30分、17時00分~23時30分/21m(徒歩1分) |
| カフェ |
ドトール/新宿野村ビル店/[営業時間]平 日:07:00 - 21:00 土曜日:08:00 - 19:00 日 祝:08:00 - 18:00 [休業日]なし [備考]総席数:22 禁煙席:- 喫煙席:22/2m(徒歩1分) スターバックス/新宿野村ビル店/[営業時間]月~金: 07:00~21:00 土: 08:00~20:00 日祝: 09:00~20:00 [休業日]不定休 [備考]無線LAN:STARBUCKS/docomo/Softbank/au/Wi2 300/ |
| コインパーキング |
三井のリパーク/モード学園コクーンタワー駐車場 [料金] 全日 07:00~23:00 30分/250円 全日 23:00~07:00 60分/100円 [最大料金] 【全日】最大料金入庫当日24時まで2000円 [台数]160 NPC24H/西新宿7丁目第3 [料金] 20分/400円(8時~24時) 60分/100円(0時~8時) [最大料金] No.1・6のみ 12時間毎 3200円 [台数]9台 |
周辺地図
新宿野村ビルは、新宿区西新宿にある貸事務所物件で最寄り駅は各線新宿駅と地下鉄大江戸線都庁前駅、丸ノ内線西新宿駅です。西武新宿線西武新宿駅も利用可能です。1978年竣工で、基準階が381坪の賃貸オフィスビルです。床はOAフロアで天井の高さは2525mm。トイレは男女別で、空調はセントラル空調です。エレベーターは28基あり、セキュリティは有人警備、機械警備となっています。駐車場が利用可能です。新宿駅近くで交通アクセスが良く、多種多様な店舗が立ち並んでおり非常に利便性の高い立地が特長の新宿区西新宿の貸事務所です。
全フロア情報
更新日:2026年3月5日
| 階 | 面積 | 賃料 | 共益費 | 敷金 | 入居日 | お問合せ | お気に入り | |
|---|---|---|---|---|---|---|---|---|
|
B2F
(216区画) |
17.95 坪 59.34 ㎡ |
※現在空室情報はございません |
※現在空室情報は 確認する |
|||||
|
B1F
(111区画) |
50.53 坪 167.04 ㎡ |
※現在空室情報はございません |
※現在空室情報は 確認する |
|||||
| 5東F |
178.36 坪 589.62 ㎡ |
※現在空室情報はございません |
※現在空室情報は 確認する |
|||||
|
5西F
(11-14区画) |
40.62 坪 134.28 ㎡ |
※現在空室情報はございません |
※現在空室情報は 確認する |
|||||
|
5西F
(7-9区画) |
15.69 坪 51.87 ㎡ |
※現在空室情報はございません |
※現在空室情報は 確認する |
|||||
|
5西F
(9-11区画) |
17.69 坪 58.48 ㎡ |
※現在空室情報はございません |
※現在空室情報は 確認する |
|||||
|
5西F
(9-14区画) |
58.32 坪 192.79 ㎡ |
※現在空室情報はございません |
※現在空室情報は 確認する |
|||||
| 8東F |
96.47 坪 318.91 ㎡ |
※現在空室情報はございません |
※現在空室情報は 確認する |
|||||
| 9F |
81.89 坪 270.71 ㎡ |
※現在空室情報はございません |
※現在空室情報は 確認する |
|||||
|
9東F
(15-22区画) |
72.57 坪 239.9 ㎡ |
相談 |
相談 |
相談 |
2027/09/01 |
|
|
|
| 9西F |
173.11 坪 572.26 ㎡ |
相談 |
相談 |
相談 |
2027/09/01 |
|
|
|
|
9西F
(5-13区画) |
81.89 坪 270.71 ㎡ |
※現在空室情報はございません |
※現在空室情報は 確認する |
|||||
|
10東F
(12-22区画) |
105.79 坪 349.72 ㎡ |
※現在空室情報はございません |
※現在空室情報は 確認する |
|||||
|
10西F
(15-22区画) |
67.32 坪 222.55 ㎡ |
※現在空室情報はございません |
※現在空室情報は 確認する |
|||||
|
10西F
(5-15区画) |
105.79 坪 349.72 ㎡ |
※現在空室情報はございません |
※現在空室情報は 確認する |
|||||
|
11東F
(12-22区画) |
105.79 坪 349.72 ㎡ |
※現在空室情報はございません |
※現在空室情報は 確認する |
|||||
|
11東F
(5-12区画) |
72.57 坪 239.9 ㎡ |
※現在空室情報はございません |
※現在空室情報は 確認する |
|||||
| 11西F |
173.11 坪 572.26 ㎡ |
※現在空室情報はございません |
※現在空室情報は 確認する |
|||||
|
12東F
(12-22区画) |
100.53 坪 332.33 ㎡ |
※現在空室情報はございません |
※現在空室情報は 確認する |
|||||
|
12東F
(5-12区画) |
72.58 坪 239.93 ㎡ |
※現在空室情報はございません |
※現在空室情報は 確認する |
|||||
| 13F |
351.48 坪 1161.92 ㎡ |
※現在空室情報はございません |
※現在空室情報は 確認する |
|||||
|
14東F
(12-22区画) |
100.53 坪 332.33 ㎡ |
※現在空室情報はございません |
※現在空室情報は 確認する |
|||||
|
14西F
(15-22区画) |
72.57 坪 239.9 ㎡ |
※現在空室情報はございません |
※現在空室情報は 確認する |
|||||
|
14西F
(5-15区画) |
105.79 坪 349.72 ㎡ |
※現在空室情報はございません |
※現在空室情報は 確認する |
|||||
| 15東F |
72.57 坪 239.9 ㎡ |
※現在空室情報はございません |
※現在空室情報は 確認する |
|||||
|
15東F
(12-22区画) |
100.53 坪 332.33 ㎡ |
※現在空室情報はございません |
※現在空室情報は 確認する |
|||||
|
15東F
(5-12区画) |
72.57 坪 239.9 ㎡ |
相談 |
相談 |
相談 |
即日 |
|
|
|
| 15西F |
173.11 坪 572.26 ㎡ |
※現在空室情報はございません |
※現在空室情報は 確認する |
|||||
|
15西F
(15-22区画) |
67.62 坪 223.54 ㎡ |
※現在空室情報はございません |
※現在空室情報は 確認する |
|||||
|
15西F
(5-15区画) |
105.48 坪 348.69 ㎡ |
※現在空室情報はございません |
※現在空室情報は 確認する |
|||||
| 17F |
361.61 坪 1195.4 ㎡ |
※現在空室情報はございません |
※現在空室情報は 確認する |
|||||
| 18F |
361.61 坪 1195.4 ㎡ |
※現在空室情報はございません |
※現在空室情報は 確認する |
|||||
| 18東F |
173.11 坪 572.26 ㎡ |
※現在空室情報はございません |
※現在空室情報は 確認する |
|||||
| 21F |
361.61 坪 1195.4 ㎡ |
※現在空室情報はございません |
※現在空室情報は 確認する |
|||||
|
23東F
(5-12区画) |
72.57 坪 239.9 ㎡ |
※現在空室情報はございません |
※現在空室情報は 確認する |
|||||
|
23西F
(5-15区画) |
100.53 坪 332.33 ㎡ |
※現在空室情報はございません |
※現在空室情報は 確認する |
|||||
| 24西F |
183.24 坪 605.75 ㎡ |
※現在空室情報はございません |
※現在空室情報は 確認する |
|||||
|
25東F
(12-22区画) |
115.92 坪 383.21 ㎡ |
※現在空室情報はございません |
※現在空室情報は 確認する |
|||||
|
26F
(2601区画) |
48.48 坪 160.26 ㎡ |
相談 |
相談 |
相談 |
2026/04/01 |
|
|
|
|
26F
(2602区画) |
27.18 坪 89.85 ㎡ |
相談 |
相談 |
相談 |
2026/04/01 |
|
|
|
|
26F
(2603区画) |
45.3 坪 149.75 ㎡ |
相談 |
相談 |
相談 |
2026/04/01 |
|
|
|
|
26F
(2604区画) |
57.54 坪 190.21 ㎡ |
相談 |
相談 |
相談 |
2026/04/01 |
|
|
|
|
26F
(2606区画) |
36.24 坪 119.8 ㎡ |
相談 |
相談 |
相談 |
2026/04/01 |
|
|
|
|
26F
(2607区画) |
45.3 坪 149.75 ㎡ |
相談 |
相談 |
相談 |
2026/04/01 |
|
|
|
|
26F
(2608区画) |
57.54 坪 190.21 ㎡ |
相談 |
相談 |
相談 |
2026/05/01 |
|
|
|
|
27F
(2701区画) |
48.48 坪 160.26 ㎡ |
※現在空室情報はございません |
※現在空室情報は 確認する |
|||||
|
27F
(2702区画) |
27.18 坪 89.85 ㎡ |
※現在空室情報はございません |
※現在空室情報は 確認する |
|||||
|
27F
(2703区画) |
45.3 坪 149.75 ㎡ |
※現在空室情報はございません |
※現在空室情報は 確認する |
|||||
|
27F
(2704区画) |
57.54 坪 190.21 ㎡ |
※現在空室情報はございません |
※現在空室情報は 確認する |
|||||
|
27F
(2705区画) |
37.17 坪 122.88 ㎡ |
※現在空室情報はございません |
※現在空室情報は 確認する |
|||||
|
27F
(2706区画) |
36.24 坪 119.8 ㎡ |
※現在空室情報はございません |
※現在空室情報は 確認する |
|||||
|
27F
(2707区画) |
45.3 坪 149.75 ㎡ |
※現在空室情報はございません |
※現在空室情報は 確認する |
|||||
|
27F
(2708区画) |
57.54 坪 190.21 ㎡ |
※現在空室情報はございません |
※現在空室情報は 確認する |
|||||
|
28東F
(12-22区画) |
72.57 坪 239.9 ㎡ |
※現在空室情報はございません |
※現在空室情報は 確認する |
|||||
|
28東F
(5-12区画) |
72.57 坪 239.9 ㎡ |
※現在空室情報はございません |
※現在空室情報は 確認する |
|||||
|
28西F
(5-13区画) |
81.89 坪 270.71 ㎡ |
※現在空室情報はございません |
※現在空室情報は 確認する |
|||||
| 29東F |
183.24 坪 605.75 ㎡ |
※現在空室情報はございません |
※現在空室情報は 確認する |
|||||
|
29西F
(5-16区画) |
109.86 坪 363.17 ㎡ |
※現在空室情報はございません |
※現在空室情報は 確認する |
|||||
| 30西F |
188.49 坪 623.11 ㎡ |
※現在空室情報はございません |
※現在空室情報は 確認する |
|||||
| 31F |
381.86 坪 1262.35 ㎡ |
※現在空室情報はございません |
※現在空室情報は 確認する |
|||||
|
31東F
(12-22区画) |
110.66 坪 365.82 ㎡ |
※現在空室情報はございません |
※現在空室情報は 確認する |
|||||
|
31東F
(5-12区画) |
72.57 坪 239.9 ㎡ |
※現在空室情報はございません |
※現在空室情報は 確認する |
|||||
|
31西F
(15-22区画) |
82.7 坪 273.39 ㎡ |
※現在空室情報はございません |
※現在空室情報は 確認する |
|||||
|
31西F
(5-15区画) |
115.92 坪 383.21 ㎡ |
※現在空室情報はございません |
※現在空室情報は 確認する |
|||||
|
31西F
(5-18区画) |
198.62 坪 656.59 ㎡ |
※現在空室情報はございません |
※現在空室情報は 確認する |
|||||
| 32東F |
183.24 坪 605.75 ㎡ |
※現在空室情報はございません |
※現在空室情報は 確認する |
|||||
|
32東F
(12-22区画) |
110.66 坪 365.82 ㎡ |
※現在空室情報はございません |
※現在空室情報は 確認する |
|||||
|
33東F
(12-22区画) |
72.57 坪 239.9 ㎡ |
※現在空室情報はございません |
※現在空室情報は 確認する |
|||||
|
33東F
(15-12区画) |
72.57 坪 239.9 ㎡ |
※現在空室情報はございません |
※現在空室情報は 確認する |
|||||
| 34F |
381.86 坪 1262.35 ㎡ |
相談 |
相談 |
12ヵ月 |
2026/03/01 |
|
|
|
|
34西F
(15-22区画) |
82.7 坪 273.39 ㎡ |
※現在空室情報はございません |
※現在空室情報は 確認する |
|||||
| 35F |
381.86 坪 1262.35 ㎡ |
※現在空室情報はございません |
※現在空室情報は 確認する |
|||||
| 37F |
381.86 坪 1262.35 ㎡ |
相談 |
相談 |
12ヵ月 |
2026/03 |
|
|
|
| 38F |
391.99 坪 1295.83 ㎡ |
相談 |
込 |
12ヵ月 |
2026/04/01 |
|
|
|
| 39F |
391.99 坪 1295.83 ㎡ |
※現在空室情報はございません |
※現在空室情報は 確認する |
|||||
|
39西F
(15-22区画) |
82.7 坪 273.39 ㎡ |
相談 |
相談 |
相談 |
即日 |
|
|
|
|
39西F
(5-15区画) |
110.66 坪 365.82 ㎡ |
相談 |
相談 |
相談 |
即日 |
|
|
|
| 41F |
386.73 坪 1278.45 ㎡ |
相談 |
相談 |
相談 |
2027/02/01 |
|
|
|
| 42F |
391.99 坪 1295.83 ㎡ |
相談 |
相談 |
相談 |
2027/03/01 |
|
|
|
| 43F |
391.99 坪 1295.83 ㎡ |
相談 |
相談 |
相談 |
2027/01/01 |
|
|
|
| 45F |
391.99 坪 1295.83 ㎡ |
※現在空室情報はございません |
※現在空室情報は 確認する |
|||||
|
45F
(西区画) |
297 坪 981.82 ㎡ |
相談 |
相談 |
相談 |
2026/11/01 |
|
|
|
| 45東F |
193.36 坪 639.21 ㎡ |
相談 |
相談 |
相談 |
2026/11/01 |
|
|
|
| 45西F |
198.62 坪 656.6 ㎡ |
相談 |
相談 |
相談 |
2026/11/01 |
|
|
|
| 46F |
402.11 坪 1329.29 ㎡ |
※現在空室情報はございません |
※現在空室情報は 確認する |
|||||
|
48東F
(4805区画) |
13.68 坪 45.22 ㎡ |
相談 |
相談 |
相談 |
2026/07/01 |
|
|
|
|
48東F
(4806区画) |
15.17 坪 50.15 ㎡ |
※現在空室情報はございません |
※現在空室情報は 確認する |
|||||
|
48東F
(4807区画) |
15.17 坪 50.15 ㎡ |
※現在空室情報はございません |
※現在空室情報は 確認する |
|||||
|
48東F
(4808区画) |
14.78 坪 48.86 ㎡ |
※現在空室情報はございません |
※現在空室情報は 確認する |
|||||
|
48東F
(4809区画) |
20.55 坪 67.93 ㎡ |
※現在空室情報はございません |
※現在空室情報は 確認する |
|||||
|
48東F
(4810区画) |
21.91 坪 72.43 ㎡ |
※現在空室情報はございません |
※現在空室情報は 確認する |
|||||
お問い合わせ
似た条件の物件はこちら
-
西新宿小林ビル
東京都新宿区西新宿7-10-6
坪数:42.8 坪
坪単価:19,500 円(坪)
-
宝ビル
東京都新宿区西新宿1-4-11
坪数:39.24 坪
坪単価:20,000 円(坪)
-
西新宿ハイホーム
東京都新宿区西新宿4-16-2
坪数:44.58 坪
坪単価:13,000 円(坪)
-
The Corner SHINJUKU
東京都新宿区新宿5-10-15
坪数:45.76 坪
坪単価:25,000 円(坪)
-
西新宿ユニオンビル
東京都新宿区西新宿1-18-6
坪数:46.98 坪
坪単価:22,209 円(坪)
-
GOWA西新宿ビル
東京都新宿区西新宿7-5-8
坪数:41.37 坪
坪単価:16,000 円(坪)
-
西新宿MKビル
東京都新宿区西新宿4-16-13
坪数:41.84 坪
坪単価:22,000 円(坪)
-
新宿セントランドビル
東京都新宿区西新宿3-5-1
坪数:37.83 坪
坪単価:18,500 円(坪)
-
西新宿PARKWEST
東京都新宿区西新宿6-12-1
坪数:42.43 坪
坪単価:20,000 円(坪)
-
菅野ビル
東京都新宿区西新宿6-2-16
坪数:48.46 坪
坪単価:19,500 円(坪)