T&G浜松町ビル(物件No:51981103)
T&G浜松町ビルは港区芝大門にある地下1階、地上9階建ての賃貸事務所です。最寄駅は都営浅草線の大門駅から徒歩4分、JR線の浜松町駅から徒歩5分、都営大江戸線の大門駅から徒歩4分です。1988年12月竣工の基準階面積が86.4坪の鉄骨鉄筋コンクリート造です。設備としては、エレベーターが2基、駐車場もあります。セキュリティは機械警備です。トイレは室外男女別です。空調は個別空調です。床仕様はフリーアクセスです。耐震設計となっている、複数路線利用可能なアクセスの良い港区芝大門の賃貸オフィスです。
-
物件情報
-
設備情報
- トイレ
- 室外男女別
- 床
- フリーアクセス
- 空調
- 個別空調
- セキュリティ
- 有
- 駐車場
- 有
- 会議室
- -
- エレベーター
- 2基
- 天井高
- 2490mm
-
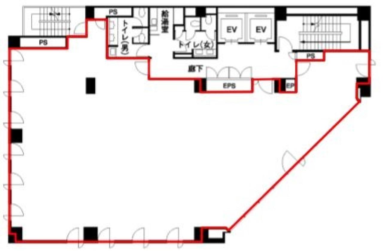
間取り図
-
近隣相場情報
芝大門2丁目(50~100坪)の相場
25714 円 (坪)
※ビルサク調べ
周辺施設情報
| コンビニ |
セブンイレブン/芝大門2丁目/31m(徒歩1分) ファミリーマート/浜松町駅前店/200m(徒歩2分) |
|---|---|
| 郵便局/銀行 |
きらぼし銀行/浜松町支店/[営業時間]店舗 平日 9:00~15:00 土曜日 - 日・祝日 - ATM 平日 8:45~19:00 土曜日 - 日・祝日 -/11m(徒歩1分) セブン銀行/芝大門2丁目店/[営業時間]24時間営業 [ATM台数]1/32m(徒歩1分) |
| 飲食店 |
麺屋 帆のる 浜松町店/11時30分~15時00分、17時00分~22時00分/100m(徒歩1分) 松屋 芝大門店/24 時間営業/450m(徒歩5分) |
| カフェ |
ドトール/浜松町2丁目店/[営業時間]平 日:06:30 - 20:00 土曜日:07:30 - 18:30 日 祝:07:30 - 18:30 [休業日]なし [備考]総席数:64 禁煙席:30 喫煙席:34/190m(徒歩2分) タリーズ/芝二丁目店/[営業時間]平日:7:30~20:00 土 :休業日 日祝:休業日 [備考]Tully's Wi-Fi、喫煙ルーム/140m(徒歩2分) |
| コインパーキング |
公社駐車場/芝大門二丁目 [料金] 30分400円(8:00~22:00) 60分100円(22:00~8:00) [最大料金] 夜間最大500円 [台数]2台 パークジャパン/芝大門第4 [料金] 8:00~22:00 400円/30分 22:00~8:00 100円/60分 [台数]3台 |
周辺地図
T&G浜松町ビルは港区芝大門にある地下1階、地上9階建ての賃貸事務所です。最寄駅は都営浅草線の大門駅から徒歩4分、JR線の浜松町駅から徒歩5分、都営大江戸線の大門駅から徒歩4分です。1988年12月竣工の基準階面積が86.4坪の鉄骨鉄筋コンクリート造です。設備としては、エレベーターが2基、駐車場もあります。セキュリティは機械警備です。トイレは室外男女別です。空調は個別空調です。床仕様はフリーアクセスです。耐震設計となっている、複数路線利用可能なアクセスの良い港区芝大門の賃貸オフィスです。
全フロア情報
更新日:2026年3月9日
| 階 | 面積 | 賃料 | 共益費 | 敷金 | 入居日 | お問合せ | お気に入り | |
|---|---|---|---|---|---|---|---|---|
| 1F |
60.19 坪 198.97 ㎡ |
※現在空室情報はございません |
※現在空室情報は 確認する |
|||||
|
2F
(1区画) |
55.78 坪 184.4 ㎡ |
※現在空室情報はございません |
※現在空室情報は 確認する |
|||||
| 3F |
74 坪 244.63 ㎡ |
相談 |
259,000 円 3,500 円(坪) |
12ヶ月 |
2026/07/22 |
|
|
|
| 4F |
73.71 坪 243.67 ㎡ |
※現在空室情報はございません |
※現在空室情報は 確認する |
|||||
| 5F |
74.76 坪 247.14 ㎡ |
※現在空室情報はございません |
※現在空室情報は 確認する |
|||||
お問い合わせ
似た条件の物件はこちら
-
岡家寿ビル
東京都港区芝浦1-7-14
坪数:62.95 坪
坪単価:13,000 円(坪)
-
専売ビル
東京都港区芝5-26-30
坪数:69.1 坪
坪単価:20,501 円(坪)
-
MAビル三田Ⅱ
東京都港区芝5-1-13
坪数:59.88 坪
坪単価:18,000 円(坪)
-
プレクスビルディング
東京都港区三田3-12-17
坪数:74.56 坪
坪単価:11,500 円(坪)
-
TTD PLAZA
東京都港区三田1-2-18
坪数:69.86 坪
坪単価:16,000 円(坪)
-
+SHIFT SHIBADAIMON
東京都港区芝大門2-1-16
坪数:77.89 坪
坪単価:30,000 円(坪)
-
第一ビル
東京都港区浜松町1-7-3
坪数:80.13 坪
坪単価:12,000 円(坪)
-
花井ビル
東京都港区芝公園1-2-9
坪数:61.45 坪
坪単価:16,000 円(坪)
-
苔香園ビル
東京都港区芝公園1-3-8
坪数:73.88 坪
坪単価:19,750 円(坪)
-
八大浜松町ビル
東京都港区浜松町1-27-13
坪数:71.44 坪
坪単価:24,000 円(坪)