いろいろ聞いてみる

馬場下町の賃貸オフィス

メトロシティ早稲田(物件No:51980175)

早稲田駅前ビルは新宿区馬場下町にある地下1階、地上7階建ての賃貸事務所です。最寄駅は東京メトロ東西線の早稲田駅から徒歩2分、都営大江戸線の牛込柳町駅から徒歩11分、都電荒川線の早稲田駅から徒歩8分、都電荒川線の面影橋駅から徒歩12分、都営大江戸線の若松河田駅から徒歩10分です。1992年8月竣工の基準階面積が136.55坪の鉄骨鉄筋コンクリート造です。設備としてはエレベーターが2基あり、駐車場もあります。機械警備もあります。トイレは男女別です。空調は個別空調です。床仕様はフリーアクセスです。天高は2600mmです。耐震性は新耐震となっている、複数路線利用可能な新宿区馬場下町の賃貸オフィスです。

面積 賃料 共益費 敷金 入居日 お問合せ お気に入り
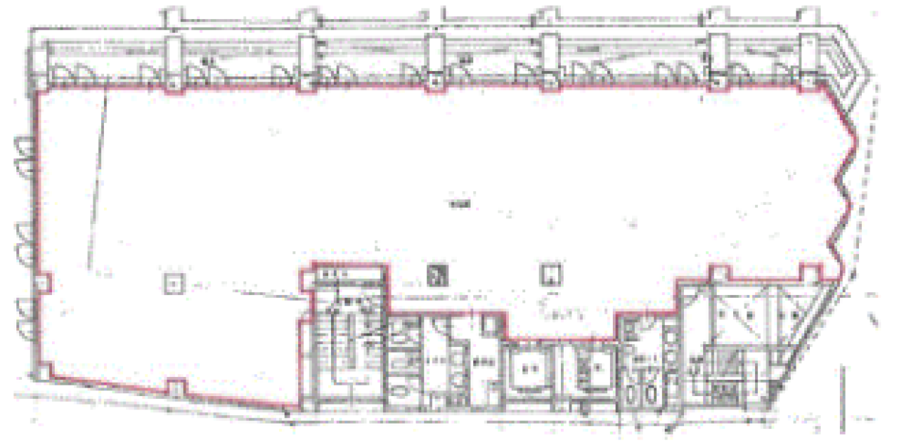
5F

94.89 坪

313.7 ㎡

※現在空室情報はございません

※現在空室情報は
ございません

最新情報を
確認する
  • メトロシティ早稲田
  • メトロシティ早稲田
  • メトロシティ早稲田
  • メトロシティ早稲田
面積 賃料 共益費 敷金 入居日 お問合せ お気に入り
5F

94.89 坪

313.7 ㎡

※現在空室情報はございません

※現在空室情報は
ございません

最新情報を
確認する

周辺施設情報

コンビニ

ファミリーマート/早稲田駅前店/1m(徒歩4分)

ローソン/新宿馬場下町/27m(徒歩1分)

郵便局/銀行

ローソン銀行/新宿馬場下町共同出張所/[営業時間]24時間/27m(徒歩1分)

ゆうちょ/新宿馬場下郵便局/[営業時間] [窓口]平日 9:00~16:00 土曜日 - 日曜日・休日 -/44m(徒歩4分)

飲食店

違う家/11時00分~23時30分/44m(徒歩1分)

えび豚骨拉麺 希家 早稲田店/11時00分~21時00分/1m(徒歩1分)

カフェ

ドトール/早稲田店/■通常営業時間 平日 7:30~21:00 土曜 8:00~20:00 日祝 8:00~20:00/84m(徒歩5分)

ルノアール/早稲田駅前店/[営業時間]全日: 8:00~22:00/83m(徒歩1分)

コインパーキング

PARKS PARK/新宿区喜久井町

[料金]

料金]【昼間】8:00~22:00 200円 / 20分【夜間】22:00~8:00 100円 / 60分

[最大料金]

【当日最大料金】全日 昼間最大 1500円(繰り返し可)【夜間最大料金】全日 400円(繰り返し可)

[台数]19台

名鉄協商パーキング/新宿第11早稲田駅

[料金]

[料金]全日 7:00~22:00 15分 100円 22:00~7:00 60分 100円 入庫より12時間まで 2,000円

[台数]5台

周辺地図

早稲田駅前ビルは新宿区馬場下町にある地下1階、地上7階建ての賃貸事務所です。最寄駅は東京メトロ東西線の早稲田駅から徒歩2分、都営大江戸線の牛込柳町駅から徒歩11分、都電荒川線の早稲田駅から徒歩8分、都電荒川線の面影橋駅から徒歩12分、都営大江戸線の若松河田駅から徒歩10分です。1992年8月竣工の基準階面積が136.55坪の鉄骨鉄筋コンクリート造です。設備としてはエレベーターが2基あり、駐車場もあります。機械警備もあります。トイレは男女別です。空調は個別空調です。床仕様はフリーアクセスです。天高は2600mmです。耐震性は新耐震となっている、複数路線利用可能な新宿区馬場下町の賃貸オフィスです。

全フロア情報

更新日:2026年1月26日

面積 賃料 共益費 敷金 入居日 お問合せ お気に入り
3F

(301区画)

136.55 坪

451.4 ㎡

※現在空室情報はございません

※現在空室情報は
ございません

最新情報を
確認する
4F

(1区画)

136.55 坪

451.4 ㎡

相談

2026/07/01 お問い合わせ お気に入り
4F

(401区画)

94.89 坪

313.7 ㎡

※現在空室情報はございません

※現在空室情報は
ございません

最新情報を
確認する
5F

94.89 坪

313.7 ㎡

※現在空室情報はございません

※現在空室情報は
ございません

最新情報を
確認する
6-7F

54.53 坪

180.28 ㎡

※現在空室情報はございません

※現在空室情報は
ございません

最新情報を
確認する

お問い合わせ

必須
必須
必須
必須
必須

似た条件の物件はこちら

関連エリアから探す

駅から探す

お問い合わせ

物件に関してのお問い合わせ

「失敗しないオフィス移転サポート」物件探しから移転までスムーズで担当者様がとにかく楽になるサービスです。

050-7587-0049平日 9:00~18:00

メールでお問い合わせ

フリーワード検索