FORECAST新宿SOUTH(物件No:51889136)
FORECAST新宿SOUTHは新宿区新宿にある地下1階、地上8階建ての賃貸事務所です。最寄駅は東京メトロ副都心線の新宿三丁目駅から徒歩1分、JR線の新宿駅から徒歩5分、東京メトロ丸ノ内線の新宿三丁目駅から徒歩3分です。1980年10月竣工の基準階面積が539.83坪の鉄筋コンクリート造です。設備としては、エレベーターが4基あり、駐車場もあります。トイレは室外男女別です。床仕様はフリーアクセスです。耐震設計となっている、複数路線利用可能なアクセスの良い新宿区新宿の賃貸オフィスです。
-
物件情報
-
設備情報
- トイレ
- 室外男女別
- 床
- -
- 空調
- 個別空調
- セキュリティ
- 有
- 駐車場
- 有
- 会議室
- -
- エレベーター
- 4基
- 天井高
- 2650mm
-
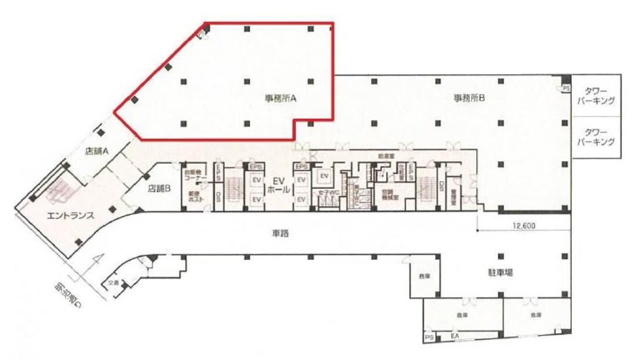
間取り図
-
近隣相場情報
新宿4丁目(100坪以上)の相場
45000 円 (坪)
※ビルサク調べ
周辺施設情報
| コンビニ |
ファミリーマート/新宿四丁目交差点前店/150m(徒歩2分) ローソン/新宿四丁目/110m(徒歩1分) |
|---|---|
| 郵便局/銀行 |
ローソン銀行/新宿四丁目共同出張所/[営業時間]24時間/110m(徒歩1分) 西京信用金庫/本店営業部/電話番号03-3356-7111/40m(徒歩1分) |
| 飲食店 |
星巴克/不定休/40m(徒歩1分) 黒豚しゃぶしゃぶ 島津/11時30分~14時30分 16時00分~22時00分/74m(徒歩1分) |
| カフェ |
J.S.パンケーキ カフェ/J.S. BURGERS CAFE 新宿店/[営業時間]11:30~20:00(LO:19:30)/240m(徒歩3分) サンマルクカフェ/新宿新南口店/[営業時間]7:00~22:00/180m(徒歩2分) |
| コインパーキング |
タイムズ/新宿4丁目第2 [料金] [全日]通常料金 / 8:00~0:00 15分 330円 0:00~8:00 30分 110円 [台数]6 タイムズ/新宿南口交通ターミナル(B2) [料金] [料金] [全日]通常料金 / 0:00~0:00 30分 300円 [台数]23 |
周辺地図
FORECAST新宿SOUTHは新宿区新宿にある地下1階、地上8階建ての賃貸事務所です。最寄駅は東京メトロ副都心線の新宿三丁目駅から徒歩1分、JR線の新宿駅から徒歩5分、東京メトロ丸ノ内線の新宿三丁目駅から徒歩3分です。1980年10月竣工の基準階面積が539.83坪の鉄筋コンクリート造です。設備としては、エレベーターが4基あり、駐車場もあります。トイレは室外男女別です。床仕様はフリーアクセスです。耐震設計となっている、複数路線利用可能なアクセスの良い新宿区新宿の賃貸オフィスです。
全フロア情報
更新日:2025年9月29日
| 階 | 面積 | 賃料 | 共益費 | 敷金 | 入居日 | お問合せ | お気に入り | |
|---|---|---|---|---|---|---|---|---|
| 1F |
13.28 坪 43.9 ㎡ |
※現在空室情報はございません |
※現在空室情報は 確認する |
|||||
|
1F
(B区画) |
109.8 坪 362.97 ㎡ |
※現在空室情報はございません |
※現在空室情報は 確認する |
|||||
|
2F
(1区画) |
118.18 坪 390.68 ㎡ |
※現在空室情報はございません |
※現在空室情報は 確認する |
|||||
| 3F |
190.27 坪 628.99 ㎡ |
※現在空室情報はございません |
※現在空室情報は 確認する |
|||||
| 4F |
118.18 坪 390.68 ㎡ |
※現在空室情報はございません |
※現在空室情報は 確認する |
|||||
| 5F |
158 坪 522.31 ㎡ |
※現在空室情報はございません |
※現在空室情報は 確認する |
|||||
|
5F
(1区画) |
135.85 坪 449.09 ㎡ |
※現在空室情報はございません |
※現在空室情報は 確認する |
|||||
|
5F
(2区画) |
127.01 坪 419.87 ㎡ |
※現在空室情報はございません |
※現在空室情報は 確認する |
|||||
| 6F |
164.17 坪 542.71 ㎡ |
※現在空室情報はございません |
※現在空室情報は 確認する |
|||||
|
7F
(1区画) |
127.01 坪 419.87 ㎡ |
※現在空室情報はございません |
※現在空室情報は 確認する |
|||||
お問い合わせ
似た条件の物件はこちら
-
西新宿KNビル
東京都新宿区西新宿7-22-27
坪数:99.95 坪
坪単価:14,400 円(坪)
-
西新宿PARKWEST
東京都新宿区西新宿6-12-1
坪数:127.29 坪
坪単価:20,000 円(坪)
-
新宿タツミビル
東京都新宿区西新宿6-16-6
坪数:112.29 坪
坪単価:14,500 円(坪)
-
新宿御苑ビル
東京都新宿区新宿2-3-10
坪数:110.56 坪
坪単価:18,000 円(坪)
-
西新宿高木ビル
東京都新宿区西新宿1-20-3
坪数:106.44 坪
坪単価:26,000 円(坪)
-
CIRCLES西新宿
東京都新宿区西新宿3-6-4
坪数:123.21 坪
坪単価:24,000 円(坪)
-
THE PORTAL 新宿御苑
東京都新宿区新宿1-23-1
坪数:116.5 坪
坪単価:28,000 円(坪)
-
モアセンタービル
東京都新宿区新宿3-24-8
坪数:89.86 坪
坪単価:86,802 円(坪)
-
NEWNO・GS新宿
東京都新宿区新宿3-24-1
坪数:88.58 坪
坪単価:45,000 円(坪)
-
コアロード西新宿
東京都新宿区西新宿6-12-6
坪数:91.4 坪
坪単価:11,000 円(坪)